Nous sommes Immprove, une grande équipe de plus de 200 experts en immobilier d’entreprise, implantés localement avec plus de 20 agences sur tout le territoire.Depuis 2009, notre proximité, notre ét ...
En savoir plus

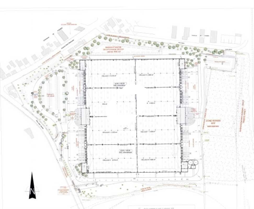
19 612 m² divisible dès 9 806 m²
HT HC
Location activité/entrepôt - 19612 m²
Marly-la-Ville (95670)
Dernière mise à jour : Il y a 16 jours
Immprove vous propose à la location sur la commune de Marly la Ville, un bâtiment indépendant de 19 612 m², au pied de l'A1. Prestations logistiques de qualités : Grande hauteur, places VL, PL et accès à quais. Autorisation ICPE 1510. Ce site est divisible à partir de 9806 m²d'entrepot dont 470 m² de bureaux.
Impôt Foncier : 10,75 €//m²/an HT
Régime Fiscal : T.V.A. (20%)
Dépôt de garantie : 3 mois de loyer TTC
Honoraires : 15 % HT du loyer annuel HT HC à la charge du preneur
Taxe Bureau : 1,47 €/m²/an
Information sur le Bail :
GAPD Bancaire Assurance 1.05 /m²/an HT Honoraires de gestion : 1euros/m²/an HT
Prestations :
Accessibilité:
RER RER D : Station Fosses Survilliers (5 min)
Route D317
Autoroute A1
Les informations sur les risques auxquels ce bien est exposé sont disponibles sur le site Géorisques : www.georisques.gouv.fr
| Étage | Type | Surfaces | Dispo | Loyer | Charges | Type de bailRév. annuelle |
|---|---|---|---|---|---|---|
| RDC | Entrepôts | 9248 | 01/07/2023 | selon l'indice des loyers des activités tertiaires (ILAT) | ||
| RDC | Bureaux | 470 | 01/07/2023 | selon l'indice des loyers des activités tertiaires (ILAT) | ||
| RDC | Activités | 88 | selon l'indice des loyers des activités tertiaires (ILAT) | |||
| Total Cellule | Activités | 9806 | Immédiate | 64 m²/an HT HC | 10,5 m²/an HT | Bail Commercial 3-6-9 ansselon l'indice des loyers des activités tertiaires (ILAT) |
| RDC | Entrepôts | 9336 | selon l'indice des loyers des activités tertiaires (ILAT) | |||
| RDC | Bureaux | 470 | selon l'indice des loyers des activités tertiaires (ILAT) | |||
| Total Cellule | Entrepôts | 9806 | 1er juillet 2026 | 64 m²/an HT HC | 10,5 m²/an HT | Bail Commercial 3-6-9 ansselon l'indice des loyers des activités tertiaires (ILAT) |
Impôt Foncier : 10,75 €//m²/an HT
Régime Fiscal : T.V.A. (20%)
Dépôt de garantie : 3 mois de loyer TTC
Honoraires : 15 % HT du loyer annuel HT HC à la charge du preneur
Taxe Bureau : 1,47 €/m²/an
Information sur le Bail :
GAPD Bancaire Assurance 1.05 /m²/an HT Honoraires de gestion : 1euros/m²/an HT
Prestations :
- Immeuble récent
- Façade en bardage double peau
- Accès PL / VL
- Aire de manoeuvre 35 mètres
- Bureaux cloisonnés
- Local technique
- Locaux sociaux
- Charges au sol : 5 tonnes / m²
- Hauteur libre : 9,8 mètres
- Accès quais : 20
- Accès plain pied : 1
- Eclairage LED
- ICPE: 1510/1530/1532/2663/2910/2925
- Surface RDC : 19612 m²
- Surface terrain : 0
Accessibilité:
RER RER D : Station Fosses Survilliers (5 min)
Route D317
Autoroute A1
Les informations sur les risques auxquels ce bien est exposé sont disponibles sur le site Géorisques : www.georisques.gouv.fr
Voir plus
Afficher les consommations énergétiques
Favoris
Exporter
Appeler
Contacter
Signaler cette annonce
