A l’appui d’un réseau leader à l’international, I&L Solutions est une équipe de plus de 70 professionnels spécialisés en immobilier Logistique et Industriel au service des investisseurs, des propri ...
En savoir plus

6 215 m²
HT HC
Location activité/entrepôt - 6215 m²
Margny-lès-Compiègne (60280)
Dernière mise à jour : Hier
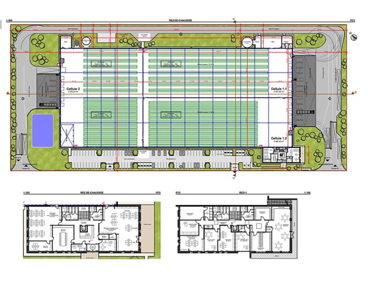
PBELLANGER/EFERNANDEZ : Terrain vendu à RAND FRERES, pour développer un entrepôt d'environ 18 000 m² en 3 cellules - livraison courant 2024
CBRE vous propose à louer un entrepôt/local d'activités neuf situé sur la commune de Margny-lès-Compiègne dans le département de l'Oise (60) et à proximité de l'autoroute A1. Ce local industriel dispose d'une belle hauteur libre de 10 mètres. Belle surface de 6 215 m² non divisibles. Location entrepôt idéal pour le développement de vos activités professionnelles. Bail commercial. Disponible immédiatement.
Si cet entrepôt/local d'activités à louer dans le 60 vous intéresse ou si vous souhaitez obtenir plus de renseignements, n'hésitez pas à me contacter aujourd'hui pour organiser une visite et bénéficier de toutes les informations nécessaires pour votreprojet immobilier.
En tant qu'expert en immobilier professionnel/industriel, je suis à votre disposition pour vous aider à trouver le bien adapté à vos activités professionnelles et à votre coeur de métier.
Régime Fiscal : T.V.A.
Honoraires : 15 % HT d'un loyer annuel HT/HC à la charge du preneur
Prestations :
Accessibilité:
Autoroute A 10 km de l'échangeur de l'A1
En bordure de la RD202
SNCF A 2 km de la gare de Compiègne
Aeroport A 100 m de l'aérodrome de Margny-lès-Compiègne
Les informations sur les risques auxquels ce bien est exposé sont disponibles sur le site Géorisques : www.georisques.gouv.fr
CBRE vous propose à louer un entrepôt/local d'activités neuf situé sur la commune de Margny-lès-Compiègne dans le département de l'Oise (60) et à proximité de l'autoroute A1. Ce local industriel dispose d'une belle hauteur libre de 10 mètres. Belle surface de 6 215 m² non divisibles. Location entrepôt idéal pour le développement de vos activités professionnelles. Bail commercial. Disponible immédiatement.
Si cet entrepôt/local d'activités à louer dans le 60 vous intéresse ou si vous souhaitez obtenir plus de renseignements, n'hésitez pas à me contacter aujourd'hui pour organiser une visite et bénéficier de toutes les informations nécessaires pour votreprojet immobilier.
En tant qu'expert en immobilier professionnel/industriel, je suis à votre disposition pour vous aider à trouver le bien adapté à vos activités professionnelles et à votre coeur de métier.
| Étage | Type | Surfaces | Dispo | Loyer | Charges | Type de bailRév. annuelle |
|---|---|---|---|---|---|---|
| Entrepôts | 6005 | Immédiate | 65 m²/an HT HC | 3-6-9-12 ansIndice ILAT | ||
| Entrepôts | 210 | Immédiate | 65 m²/an HT HC | 3-6-9-12 ansIndice ILAT |
Régime Fiscal : T.V.A.
Honoraires : 15 % HT d'un loyer annuel HT/HC à la charge du preneur
Prestations :
- Portes à quai
- Portes de plain-pied
- Surface terrain : 0
- Haut. libre max. ss poutre : 10 m
- Equipements entrepôts : SPECIFICATIONS :
Entrepôt mono-face
Bâtiment développant une surface totale de 18 086 m²
1 cellule d'environ 6 000 m² reste à commercialiser
Eclairage zénithal et désenfumage : 5 %
Température de consigne à 12 °C
STRUCTURE :
Hauteur utile : 10 m
Hauteur acrotère : 15 m
Charges au sol 5t/m²
Cour de débord
EQUIPEMENTS :
6 portes à quai
1 porte à niveau par pignon
Sprinkler
R.I.A.
Aire de manoeuvre environ 35 m avec quais et aire de béquillage
Parkings VL
Parkings PL - ICPE :
- Autorisations : 1510,1530
- Déclarations : 2910,2925
Accessibilité:
Autoroute A 10 km de l'échangeur de l'A1
En bordure de la RD202
SNCF A 2 km de la gare de Compiègne
Aeroport A 100 m de l'aérodrome de Margny-lès-Compiègne
Les informations sur les risques auxquels ce bien est exposé sont disponibles sur le site Géorisques : www.georisques.gouv.fr
Voir plus
Afficher les consommations énergétiques
Favoris
Exporter
Appeler
Contacter
Signaler cette annonce



