BNP Paribas Real Estate, N°1 de la transaction en immobilier d''entreprise en France, vous propose un accompagnement de qualité pour l''acquisition, la vente ou la location d''un bien immobilier.Vo ...
En savoir plus

20 030 m²
Loyer sur demande
Location activité/entrepôt - 20030 m²
Huningue (68330)
Dernière mise à jour : Il y a 4 jours
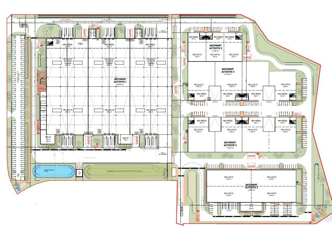
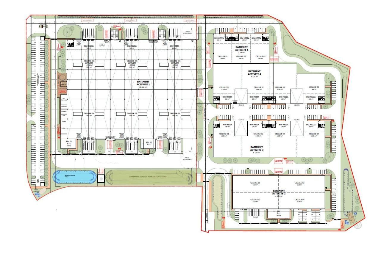
HUNINGUE (68) PROJET PARC D'ACTIVITE Nous vous proposons à la location un parc d'activité, situé à Huningue Sud (site frontalier Suisse) composé de 4 batiments avec des cellules de taille différentes. Le site dispose également d'une capacité d'extension pour des bureaux et du parking. Etat de construction: PC+ICPE Obtenus. Disponibilité : 12 mois après accord ICPE A : 1510, 1530, 1532, 2662, 2663-1, 2663-2
BNP PARIBAS REAL ESTATE vous propose à la location un parc d'activité, composé de 4 btiments et d'une surface totale d'environ 20 030 m². Le site est situé à Huningue (68), ville frontalière avec la Suisse, située à 10 minutes de l'aéroport international de Ble-Mulhouse et 35 minutes de Mulhouse.
Disponibilité : 12 mois après accord
Caractéristiques techniques
- Surface bureaux : 3 430 m²
- Site clôturé et sécurisé
Poste de garde
Portes d'accès à quai : 18
- Parking : 90 places VL / 13 places PL
- Certifications : BREEAM Excellent, BiodiverCity
ICPE
ICPE A : 1510, 1530, 1532, 2662, 2663-1, 2663-2
Accessibilité
- Accès routiers : A35
- Aéroport Bale Mulhouse à 8 km
Gare Mulhouse à 35 min
- Bus : Ligne 603 à 200 m
Pour toute information complémentaire, contactez-nous.
Disponibilité: 12 mois après accord
Honoraires: Nous consulter. à la signature du bail
| Fiche technique du bien | |
|---|---|
| Bus | Ligne 603 200 m |
| Desserte routière | Autoroute A35 1 km |
| Aéroport | Bale Mulhouse 8 km |
| Gare | Gare de Mulhouse 35 min |
| Autorisation d'exploiter | 2663-2 |
| Autorisation d'exploiter | 1510 |
| Autorisation d'exploiter | 2663-1 |
| Autorisation d'exploiter | 1532 |
| Autorisation d'exploiter | 2662 |
| Autorisation d'exploiter | 1530 |
| Parking(s) | 13 Places |
| Parking(s) | 90 Places |
| Autre élément bureau | Raccordement à la fibre |
| Porte(s) d'accès à quai | 18 |
Voir plus
Afficher les consommations énergétiques
Favoris
Exporter
Appeler
Contacter
Signaler cette annonce

