Conseil en immobilier d'entreprise, Cushman & Wakefield est un acteur incontournable au rayonnement international. Cushman & Wakefield offre des solutions dans toutes les étapes que comporte un p ...
En savoir plus

24 526 m² divisible dès 11 441 m²
HT HC
Location activité/entrepôt - 24526 m²
Buchères (10800)
Dernière mise à jour : Il y a 16 jours
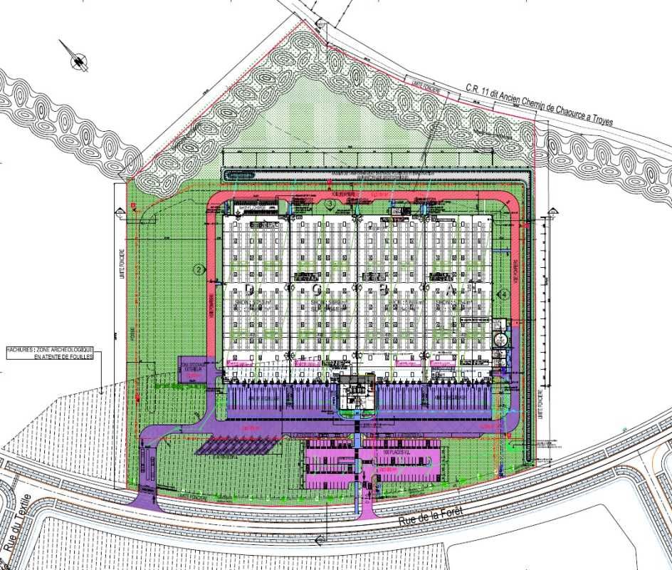
Entrepôt logistique indépendant de 24 000m² à Buchères, à proximité directe de Troyes
À LOUER - C&W vous propose cette plateforme logistique indépendante à Buchères (10), située au sein de la
ZAC du Parc Logistique de l'Aube.
Implantée à Buchères, au sein d'un parc logistique avec un accès direct à l'A5 (quelques minutes), cette plateforme indépendante offre une solution immobilière idéale pour les acteurs de la logistique et de la distribution et permet un rayonnement sur tout le centre-est de la France. Avec une surface totale de 24 526 m², divisible à partir de deux cellules, le site sera disponible dès décembre 2025.
Descriptif du site :
Entrepôt : 22 882 m² répartis en 4 cellules fonctionnelles, offrant une grande flexibilité d'exploitation
Bureaux : 1 644 m² en rez-de-chaussée, modulables selon les besoins des utilisateurs
Stationnement : 100 places disponibles pour véhicules légers
Divisibilité : possible à partir de deux cellules
État des locaux : bon état, permettant une mise en service rapide
Conditions financières :
Loyer : 50 euros/m²/an HT HC
Charges : 2,03 euros/m²/an
Bail : commercial 3/6/9 ans
Opportunité rare pour les utilisateurs en quête d'un site fonctionnel, accessible et évolutif, contactez-nous pour le visiter rapidement !
Impôt Foncier : 4,93 €//m²/an
Régime Fiscal : T.V.A.
Honoraires : à la charge du preneur
Prestations :
Accessibilité:
Autoroute A5 - A26
Accès routier D444
Les informations sur les risques auxquels ce bien est exposé sont disponibles sur le site Géorisques : www.georisques.gouv.fr
À LOUER - C&W vous propose cette plateforme logistique indépendante à Buchères (10), située au sein de la
ZAC du Parc Logistique de l'Aube.
Implantée à Buchères, au sein d'un parc logistique avec un accès direct à l'A5 (quelques minutes), cette plateforme indépendante offre une solution immobilière idéale pour les acteurs de la logistique et de la distribution et permet un rayonnement sur tout le centre-est de la France. Avec une surface totale de 24 526 m², divisible à partir de deux cellules, le site sera disponible dès décembre 2025.
Descriptif du site :
Entrepôt : 22 882 m² répartis en 4 cellules fonctionnelles, offrant une grande flexibilité d'exploitation
Bureaux : 1 644 m² en rez-de-chaussée, modulables selon les besoins des utilisateurs
Stationnement : 100 places disponibles pour véhicules légers
Divisibilité : possible à partir de deux cellules
État des locaux : bon état, permettant une mise en service rapide
Conditions financières :
Loyer : 50 euros/m²/an HT HC
Charges : 2,03 euros/m²/an
Bail : commercial 3/6/9 ans
Opportunité rare pour les utilisateurs en quête d'un site fonctionnel, accessible et évolutif, contactez-nous pour le visiter rapidement !
| Étage | Type | Surfaces | Dispo | Loyer | Charges | Type de bailRév. annuelle |
|---|---|---|---|---|---|---|
| RdC | Entrepôts | 22882 | 50 HT/HC/m²/an | 2,03 HT/m²/an | 3-6-9 ansSur l'indice ILAT | |
| RdC | Bureaux | 1644 | 50 HT/HC/m²/an | 2,03 HT/m²/an | 3-6-9 ansSur l'indice ILAT | |
| Parkings | 3-6-9 ansSur l'indice ILAT |
Impôt Foncier : 4,93 €//m²/an
Régime Fiscal : T.V.A.
Honoraires : à la charge du preneur
Prestations :
- Terrain : 83 995 m²
- Entrepôt de classe A
- 33 portes à quai
- ICPE : 1510, 1530, 1532 et 2663
- 100 places VL
- Surface RDC : 24526 m²
- Nbr de portes à quai : 33
Accessibilité:
Autoroute A5 - A26
Accès routier D444
Les informations sur les risques auxquels ce bien est exposé sont disponibles sur le site Géorisques : www.georisques.gouv.fr
Voir plus
Afficher les consommations énergétiques
Localisation et transport aux alentours
Favoris
Exporter
Appeler
Contacter
Signaler cette annonce
