L’agence CBRE Lille conseille et accompagne les chefs d’entreprise dans leurs projets immobiliers quels que soient leur taille et leur secteur d’activité. Spécialistes de la transaction de bureaux, ...
En savoir plus

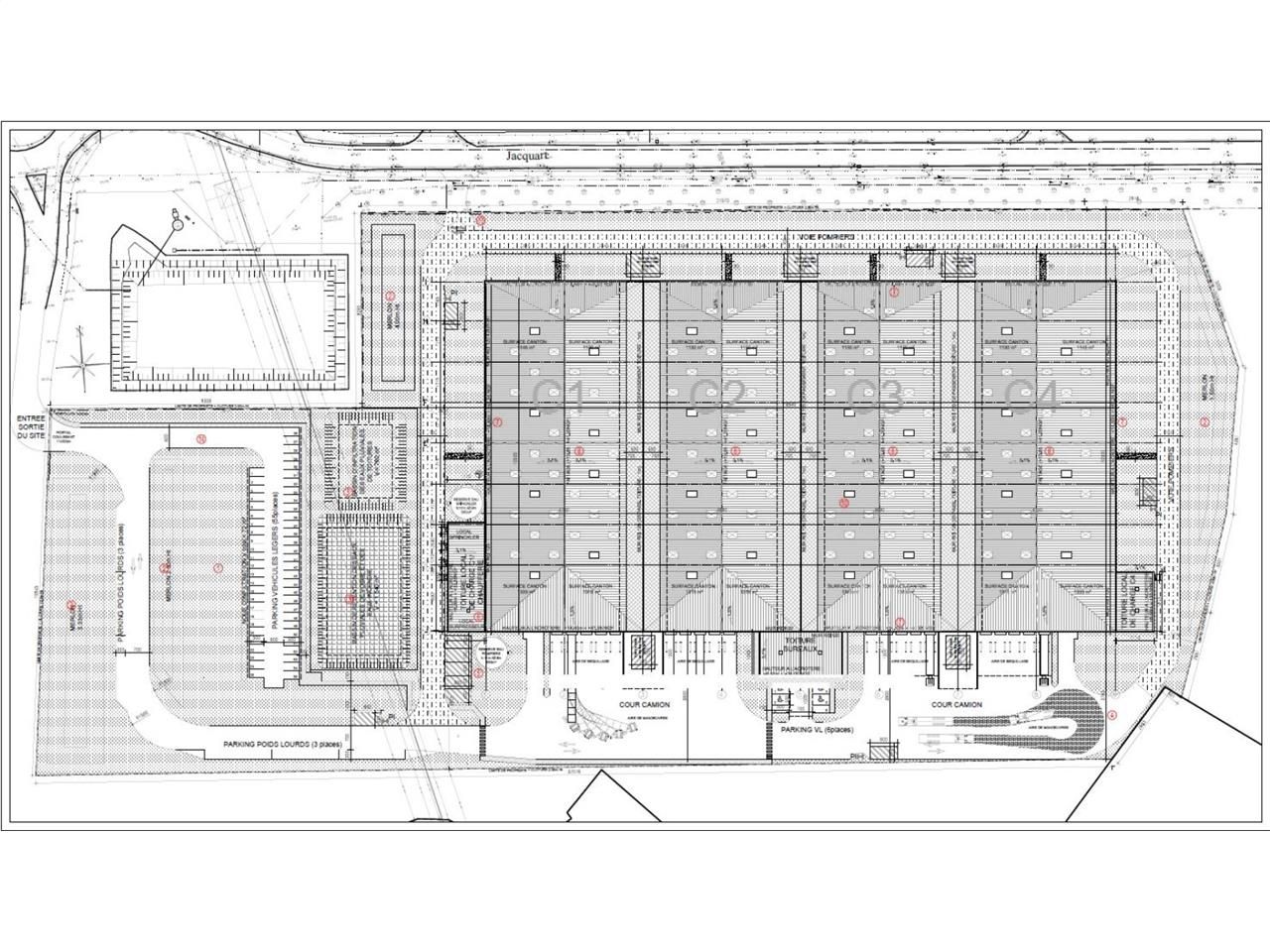
20 836 m² divisible dès 5 000 m²
HT HC
Location activité/entrepôt - 20836 m²
Harnes (62440)
Dernière mise à jour : Il y a 2 mois
CBRE vous propose à la location un entrepôt logistique idéalement situé à Harnes, au carrefour des autoroutes A1 et A21. Cet entrepôt neuf de 20 836 m² est composé de 4 cellules à usage d'entrepôt, possède 20 quais PL et 2 portes de plain-pied. Cet entrepôt nouvelle génération d'une hauteur libre de 11.6 m est certifié BREEAM Very Good.
Régime Fiscal : T.V.A.
Dépôt de garantie : 3 mois de loyer HT/HC
Paiement Loyer : trimestriel
Honoraires : 15% HT du loyer annuel HT HC à la charge du preneur
Prestations :
Accessibilité:
A proximité :
. Accès A1 sortie 18
. A21 sortie 12
. Future rocade sortie 15 sur A21
Les informations sur les risques auxquels ce bien est exposé sont disponibles sur le site Géorisques : www.georisques.gouv.fr
| Étage | Type | Surfaces | Dispo | Loyer | Charges | Type de bailRév. annuelle |
|---|---|---|---|---|---|---|
| 1 | Entrepôts | 312 | Janvier 2026 | 51 m²/an HT HC | 3-6-9 ansIndice ILAT | |
| Entrepôts | 19650 | Janvier 2026 | 51 m²/an HT HC | 3-6-9 ansIndice ILAT | ||
| Entrepôts | 562 | Janvier 2026 | 51 m²/an HT HC | 3-6-9 ansIndice ILAT | ||
| Entrepôts | 312 | Janvier 2026 | 51 m²/an HT HC | 3-6-9 ansIndice ILAT |
Régime Fiscal : T.V.A.
Dépôt de garantie : 3 mois de loyer HT/HC
Paiement Loyer : trimestriel
Honoraires : 15% HT du loyer annuel HT HC à la charge du preneur
Prestations :
- Haut. libre min. ss poutre : 11,6 m
- Résistance sol : 5 T/m²
- Accès bâtiment : - Site clos (clôture + portail)
- 6 places PL
- 61 places de parkings VL
- Cour camion de 38m - Nbr de portes à quai : 20
- Nbr de portes plain pied : 2
- Equipements entrepôts : - 20 portes à quai avec niveleurs, sas, guides roues, aire de béquillage béton
- 2 portes de plain-pied 4x4,50m
- 2 locaux de charge
- Eclairage zénithal de 4% dans l'entrepôt + bandeaux translucides en façade
- Trame : 23 x 12m, charpente béton, murs CF béton
- Hauteur libre : 11,60m minimum en zone de racks
- Dallage : charge répartie 5T/m², poinçonnement 7T/platine 225mm
- Isolation renforcée pour limiter la consommation d'énergie
- Chaudière gaz et aérothermes eau chaude (11° pour -7° extérieur)
- Eclairage par LED piloté
- Sprinkler ESFR NFPA + RIA
- Certification environnementale BREEAM Pass - ICPE :
- Autorisations : 1510,1530,1532,2662,2663
Accessibilité:
A proximité :
. Accès A1 sortie 18
. A21 sortie 12
. Future rocade sortie 15 sur A21
Les informations sur les risques auxquels ce bien est exposé sont disponibles sur le site Géorisques : www.georisques.gouv.fr
Voir plus
Afficher les consommations énergétiques
Favoris
Exporter
Appeler
Contacter
Signaler cette annonce


