BNP Paribas Real Estate, N°1 de la transaction en immobilier d''entreprise en France, vous propose un accompagnement de qualité pour l''acquisition, la vente ou la location d''un bien immobilier.Vo ...
En savoir plus

10 556 m²
HT HC
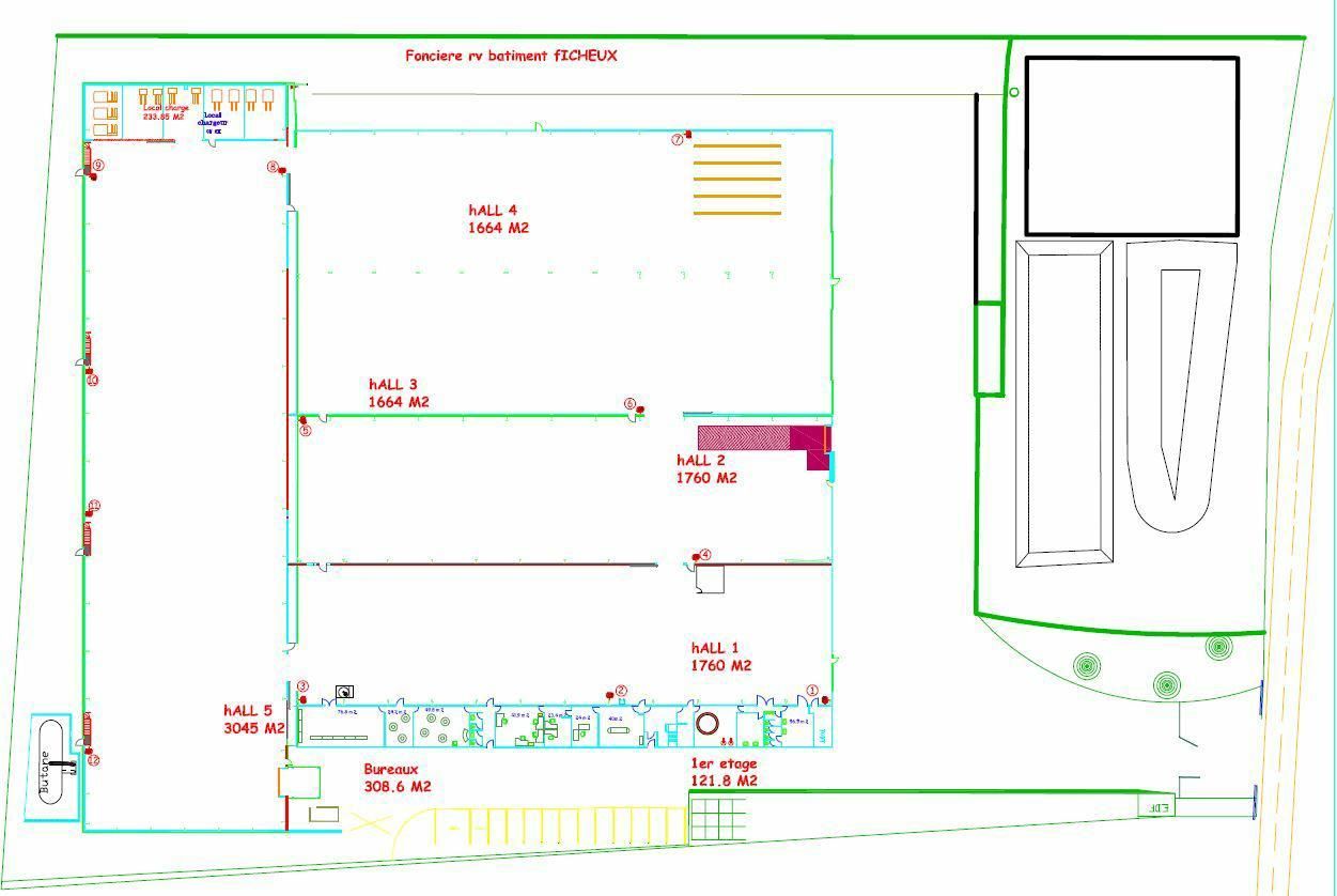
Location activité/entrepôt - 10556 m²
Ficheux (62173)
Dernière mise à jour : Il y a 2 jours
FICHEUX (62) Nous vous proposons un entrepôt indépendant d'une superficie de 10 556 m² environ sur la commune de Ficheux, en bordure de l'agglomération d'Arras et situé à 11km de l'accès à l'autoroute A1.
BNP PARIBAS REAL ESTATE vous propose, à la location, un entrepôt logistique indépendant d'une superficie de 10 556 m². Le btiment est situé à sur la commune de Ficheux (62), en bordure de l'agglomération d'Arras et situé à 11km de l'accès à l'autoroute A1.
Disponibilité : Immédiate
Caractéristiques techniques
Hauteur libre : 1
Porte d'accès à quai : 1
Porte d'accès plain-pied : 1
Accessibilité
Accès routiers : A1 à 11 km
Aéroport : Lille-Lesquin à 43 km
Pour toute information complémentaire, contactez-nous.
Honoraires: Nous consulter. à la signature du bail
| Fiche technique du bien | |
|---|---|
| Desserte routière | bordure de l'agglomération d'Arras et situé à 11km de l'accès à l'autoroute A1 |
| Etat de l'immeuble | Etat d'usage |
| Charpente | Métallique |
| Couverture | sèche |
| Murs | Bardage double peau |
| Hauteur libre | 11,00 mètre(s) |
| Porte(s) d'accès plain-pied | 1 |
| Porte(s) d'accès à quai | 1 |
| Eclairage intérieur | gamelle |
| Réseau Incendie Armé | Oui |
Afficher les consommations énergétiques
Favoris
Exporter
Appeler
Contacter
Signaler cette annonce

