Advenis Conseil et Transaction Sud Ouest est un cabinet de conseil dédié à l''immobilier d''entreprise. Dirigé par Williams Ranoux, Advenis Conseil et Transaction Sud Ouest est actif sur tout le cr ...
En savoir plus

288 m²
HT HC
Location activité/entrepôt - 288 m²
Beurlay (17250)
Dernière mise à jour : Hier
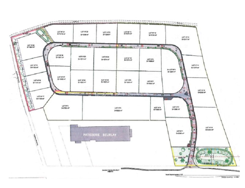
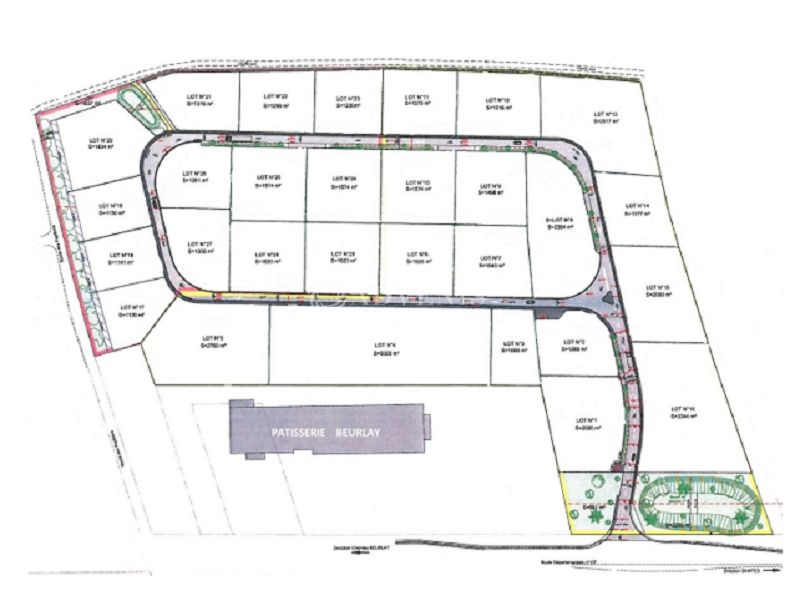
A louer entrepôt de 288 m² environ
Advenis Conseil vous propose à la location un local à usage d'entrepôt d'une surface de 288 m² environ
Les informations sur les risques auxquels ce bien est exposé sont disponibles sur le site Géorisques : www.georisques.gouv.fr
Livraison Mars 2023
Disponibilité : Mars 2023
Loyer annuel : 54.13 € HTHC / m2
Type de bail : Commercial
Dépôt de garantie : 3 mois
Honoraires à la charge du preneur : 30 % HT
Advenis Conseil vous propose à la location un local à usage d'entrepôt d'une surface de 288 m² environ
Les informations sur les risques auxquels ce bien est exposé sont disponibles sur le site Géorisques : www.georisques.gouv.fr
Livraison Mars 2023
Disponibilité : Mars 2023
Loyer annuel : 54.13 € HTHC / m2
Type de bail : Commercial
Dépôt de garantie : 3 mois
Honoraires à la charge du preneur : 30 % HT
| bât/lot | surface |
| 1 | 288 |
Voir plus
Afficher les consommations énergétiques
Localisation et transport aux alentours
Favoris
Exporter
Appeler
Contacter
Signaler cette annonce
