Nous sommes Immprove, une grande équipe de plus de 200 experts en immobilier d’entreprise, implantés localement avec plus de 20 agences sur tout le territoire.Depuis 2009, notre proximité, notre ét ...
En savoir plus

4 767 m²
HT HC
Location activité/entrepôt - 4767 m²
Houplines (59116)
Dernière mise à jour : Hier
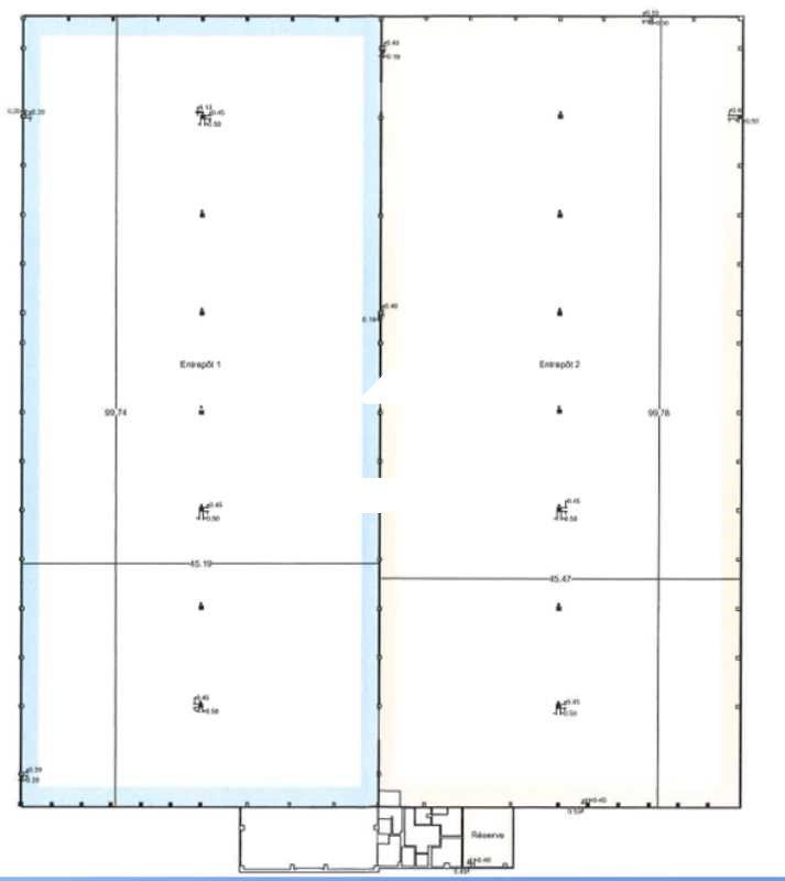
Immprove vous propose à HOUPLINES, dans la ZI des Moulins de la Lys, une cellule logistique de 4 767 m² à louer au sein d'un bâtiment indépendant de 9 515 m².
La cellule comprend 4 500 m² de stockage et 267 m² de bureaux, avec 6 quais, une hauteur de 12 m et une parcelle sécurisée de 25 000 m².
Bâtiment récent, classé ICPE, situé à 5 minutes de l'A25 et à 20 minutes de Lille.
Disponibilité immédiate
Régime Fiscal : T.V.A. (20%)
Dépôt de garantie : 3 mois de loyer HT HC
Honoraires : 15% HT du loyer annuel HT HC à la charge du preneur
Prestations :
Accessibilité:
Autoroute A25
Autoroute A1
Les informations sur les risques auxquels ce bien est exposé sont disponibles sur le site Géorisques : www.georisques.gouv.fr
La cellule comprend 4 500 m² de stockage et 267 m² de bureaux, avec 6 quais, une hauteur de 12 m et une parcelle sécurisée de 25 000 m².
Bâtiment récent, classé ICPE, situé à 5 minutes de l'A25 et à 20 minutes de Lille.
Disponibilité immédiate
| Étage | Type | Surfaces | Dispo | Loyer | Charges | Type de bailRév. annuelle |
|---|---|---|---|---|---|---|
| RDC | Entrepôts | 4500 | 55 m²/an HT HC | Bail Commercial 3-6-9 ansselon l'indice des loyers des activités tertiaires (ILAT) | ||
| RDC | Bureaux | 267 | 55 m²/an HT HC | Bail Commercial 3-6-9 ansselon l'indice des loyers des activités tertiaires (ILAT) | ||
| Total Cellule | Entrepôts | 4767 | septembre 2025 | 55 m²/an HT HC | Bail Commercial 3-6-9 ansselon l'indice des loyers des activités tertiaires (ILAT) |
Régime Fiscal : T.V.A. (20%)
Dépôt de garantie : 3 mois de loyer HT HC
Honoraires : 15% HT du loyer annuel HT HC à la charge du preneur
Prestations :
- Bâtiment indépendant
- Façade en bardage
- Accès véhicules légers
- Accès poids lourds
- Accès PMR
- Accès privatif sur rue
- Aire de manoeuvre
- Aire de chargement
- Portail d'accès
- Chauffage immeuble gaz
- Climatisation
- Fibre optique
- Bâtiment de 9515 m² divisé en deux cellules
- Site clos et sécurisé
- Parcelle foncière d'environ 25 000 m²
- Quais : 6
- Hauteur : 12 mètres
- Rubrique ICPE :
- 1510
- 1530
- 2663
- Surface RDC : 4767 m²
- Surface terrain : 0
Accessibilité:
Autoroute A25
Autoroute A1
Les informations sur les risques auxquels ce bien est exposé sont disponibles sur le site Géorisques : www.georisques.gouv.fr
Voir plus
Afficher les consommations énergétiques
Favoris
Exporter
Appeler
Contacter
Signaler cette annonce








