BNP Paribas Real Estate Lille, qui revendique plus de 40 ans de présence sur le marché lillois, est composé d''une équipe expérimentée aux expertises diversifiées. Elle est principalement composée ...
En savoir plus

615 m² divisible dès 115 m²
HT HC
Location bureau - 615 m²
Trith-Saint-Léger (59125)
Dernière mise à jour : Il y a 6 jours
Bureaux à louer à Trith-Saint-Léger BNP Paribas Real Estate Lille vous propose à la location ces bureaux fonctionnels dans la commune de Trith-Saint-Léger.
Nous vous proposons ces surfaces de bureaux à la location sur la commune de Trith-Saint-Léger.
Accessibilité :
- L'arrêt de bus " Hurtebise " à 2 min à pied
- Les gares " Trith-St-Léger " et " Le Poirier Universitaire " à 8 min en voiture
- Accès routiers et autoroutiers à proximité immédiate (A2, A23)
- Nombreux services et commerces à proximité : Station essence, hôtels, supermarché, magasins spécialisés, pharmacies, boulangeries, salle de sport, parcs, etc...
Prestations :
- Possibilité de regrouper les cellules
- Rénovation en base paysagère
Disponibilité : Immédiate
Toutes nos offres sur https://www.bnppre.fr/bureau/nord-59/
Disponibilité: ImmédiateHonoraires: Nous consulter. à la signature du bail
| Fiche technique du bien | |
|---|---|
| Bus | Arrêt de bus « Hurtebise » à 2 min à pied |
| Desserte routière | En bordure de l'A2 |
| Gare | Les gares « Trith-St-Léger » et « Le Poirier Universitaire » à 8 min en voiture |
| Charpente | Métallique |
| Couverture | Bac acier isolé |
| Murs | Béton |
| Sols du bâtiment | Béton |
| Aire de manoeuvre | Oui |
| Eclairage intérieur | LED |
| Locaux sociaux | Sanitaires |
Afficher les consommations énergétiques
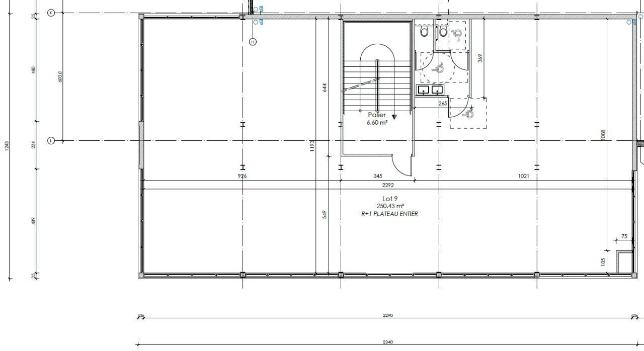
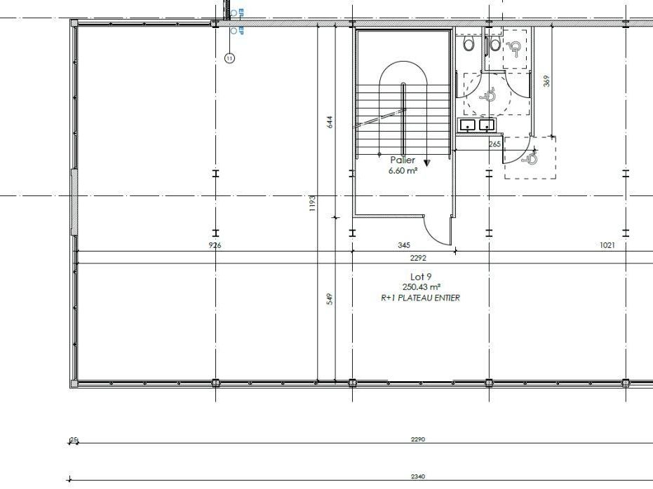
Surfaces divisibles : 3
| Surface | LoyerHT/HC/m²/an | Étage / Batiment | Infos complémentaires |
| 115 m² | N.C | RDC | RDC |
| 250 m² | N.C | R+1 | R+1 |
| 250 m² | N.C | R+2 | R+2 |
Localisation et transport aux alentours
Favoris
Exporter
Appeler
Contacter
Signaler cette annonce


