Prolocaux est un acteur de l'immobilier d'entreprise spécialisé dans la location, la vente et l'acquisition de biens professionnels en région.Présents depuis 2015 en Normandie, dans les Hauts-de-Fr ...
En savoir plus

300 m²
HT HC
Location bureau - 300 m²
Sotteville-lès-Rouen (76300)
Dernière mise à jour : Il y a 2 jours
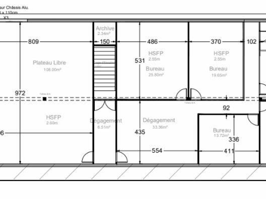
A louer bureaux d'environ 300m²
Les informations sur les risques auxquels ce bien est exposé sont disponibles sur le site Géorisques : www.georisques.gouv.fr
Sofia OLIVEIRA, agent commercial PROLOCAUX - inscrite au RSAC d'EVREUX sour le numéro 838 485 571
Bureaux d'environ 300m²:
site clos
compteur électrique
chauffage gaz
belle visibilité
parking
desservi par les transports en commun
Disponibilité : Immédiate
Loyer annuel : 18000 € HT
Charges annuelles : 900 €
Type de bail : Commercial
Dépôt de garantie : 3 mois
Montant de la taxe foncière : 2850 €
Honoraires à la charge du preneur : 15 % HT
A louer bureaux d'une superficie de 300 m², situés à l'étage sans ascenseur, répartis comme suit :
-5 pièces
-1 open-space
-1 cuisine
-sanitaires
Local situé dans un ensemble immobilier implanté dans ZI de Sotteville-les-Rouen
Les informations sur les risques auxquels ce bien est exposé sont disponibles sur le site Géorisques : www.georisques.gouv.fr
Sofia OLIVEIRA, agent commercial PROLOCAUX - inscrite au RSAC d'EVREUX sour le numéro 838 485 571
Bureaux d'environ 300m²:
site clos
compteur électrique
chauffage gaz
belle visibilité
parking
desservi par les transports en commun
Disponibilité : Immédiate
Loyer annuel : 18000 € HT
Charges annuelles : 900 €
Type de bail : Commercial
Dépôt de garantie : 3 mois
Montant de la taxe foncière : 2850 €
Honoraires à la charge du preneur : 15 % HT
Voir plus
Afficher les consommations énergétiques
Favoris
Exporter
Appeler
Contacter
Signaler cette annonce










