Pôle Implantation Entreprises est un service opérationnel dans toutes les régions de France pour accompagner les dirigeants d’entreprises dans leurs recherches immobilières, mais aussi sur l’ensemb ...
En savoir plus

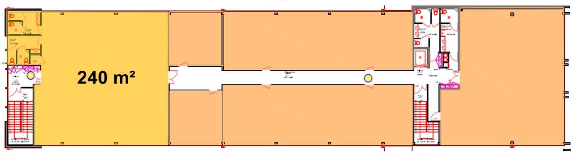
240 m²
HT HC
Location bureau - 240 m²
Soissons (02200)
Dernière mise à jour : Il y a 2 jours
Plateau tertiaire aménagé à louer - Soissons
Plateau de bureaux à louer à Soissons
Les informations sur les risques auxquels ce bien est exposé sont disponibles sur le site Géorisques : www.georisques.gouv.fr
Situation des bureauxAccès direct à la RN31 et RN2, connexion gratuite au Grand Paris en 45 min, raccordement à autoroutes A1 (Paris-Lille) / A4 (Paris-Strasbourg) / A26 (Lyon-Lille) en 30 minGares TGV les plus proches : Paris-CDG et Eurodisney en 40 min par la routeAccès à Paris par le train depuis la gare de Soissons en 1h (12 AR par jour)Gare de Soissons à 10 minAéroport international Paris-CDG en 45 min
Disponibilité :
Aménagements à étudier avec le propriétaire en fonction des besoins : cloisons, revêtement de sol, menuiseries, plafonds, électricité, peintures, chauffage-climatisation…Bâtiment adapté PMR, sécurisé, câblé (fibre optique)Parking aérien sur zone de 600 places gratuit en journéeServices sur zone : restauration, soins médicaux, banque-assurance, transports en commun, espace de coworking, hôtellerie…Sociétés présentes sur la zone : centre d'appels, soins, TIC…
Loyer annuel : 28800 €
surface : 240 m²
Plateau de bureaux à louer à Soissons
Situé sur une friche militaire réhabilitée par des architectes de renom, en cœur de ville.
Architecture contrastée entre site historique et bâtiments modernes.
Services aux salariés et entreprises : pépinière, espace coworking, habitat de standing, hôtellerie haut de gamme, conservatoire de musique…
Parc adaptés pour toute activité tertiaire, services, centre d'appels…
Aides mobilisables « Territoire Entrepreneur »
Les informations sur les risques auxquels ce bien est exposé sont disponibles sur le site Géorisques : www.georisques.gouv.fr
Situation des bureauxAccès direct à la RN31 et RN2, connexion gratuite au Grand Paris en 45 min, raccordement à autoroutes A1 (Paris-Lille) / A4 (Paris-Strasbourg) / A26 (Lyon-Lille) en 30 minGares TGV les plus proches : Paris-CDG et Eurodisney en 40 min par la routeAccès à Paris par le train depuis la gare de Soissons en 1h (12 AR par jour)Gare de Soissons à 10 minAéroport international Paris-CDG en 45 min
Disponibilité :
Aménagements à étudier avec le propriétaire en fonction des besoins : cloisons, revêtement de sol, menuiseries, plafonds, électricité, peintures, chauffage-climatisation…Bâtiment adapté PMR, sécurisé, câblé (fibre optique)Parking aérien sur zone de 600 places gratuit en journéeServices sur zone : restauration, soins médicaux, banque-assurance, transports en commun, espace de coworking, hôtellerie…Sociétés présentes sur la zone : centre d'appels, soins, TIC…
Loyer annuel : 28800 €
surface : 240 m²
Voir plus
Afficher les consommations énergétiques
Favoris
Exporter
Appeler
Contacter
Signaler cette annonce
