Nous sommes Immprove, une grande équipe de plus de 200 experts en immobilier d’entreprise, implantés localement avec plus de 20 agences sur tout le territoire.Depuis 2009, notre proximité, notre ét ...
En savoir plus



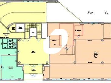
1 022 m² divisible dès 380 m²
HT HC
Location bureau - 1022 m²
Sèvres (92310)
Dernière mise à jour : Il y a 2 mois
Au coeur de la Cristallerie, à proximité immédiate des quais, des axes routiers et des transports, IMMPROVE vous propose une surface d'activité, offrant une belle hauteur sous plafond et un petit accès livraison.
Surface en rez-de-chaussée et sous-sol.
Au rez-de-chaussée, bel espace avec peu de contrainte porteuse et une hauteur sous plafond de 4 mètres. Au sous-sol, espace de vie, sanitaires et douche.
Impôt Foncier : 29,9 €/m²/an HT
Honoraires : 15% HT du loyer annuel HT HC à la charge du preneur
Taxe Bureau : 11 €/m²/an
Prestations :
Accessibilité:
Bus Bus : 169 - 171 - 179
Metro Pont de Sèvres (9)
Route N118
Tramway Musée de Sèvres (2)
Les informations sur les risques auxquels ce bien est exposé sont disponibles sur le site Géorisques : www.georisques.gouv.fr
Surface en rez-de-chaussée et sous-sol.
Au rez-de-chaussée, bel espace avec peu de contrainte porteuse et une hauteur sous plafond de 4 mètres. Au sous-sol, espace de vie, sanitaires et douche.
| Étage | Type | Surfaces | Dispo | Loyer | Charges | Type de bailRév. annuelle |
|---|---|---|---|---|---|---|
| 1 | Bureaux | 598 | Immédiate | 200 m²/an HT HC | 33 an HT | Bail Commercial 3-6-9 ans |
| RDC | Activités | 367,7 | Après accord | 170 m²/an HT HC | 33 an HT | Bail Commercial 3-6-9 ans |
| 1SS | Activités | 56,7 | Après accord | 170 m²/an HT HC | 33 an HT | Bail Commercial 3-6-9 ans |
| Parkings | Immédiate | 1200 place/an HT HC | Bail Commercial 3-6-9 ans |
Impôt Foncier : 29,9 €/m²/an HT
Honoraires : 15% HT du loyer annuel HT HC à la charge du preneur
Taxe Bureau : 11 €/m²/an
Prestations :
- Immeuble tertiaire récent
- Accès véhicules légers
- Accès PMR
- Ascenseur
- Monte-charge
- Interphone / Visiophone
- Accès sécurisé par badge
- Sas d'entrée
- Porte sectionnelle
- Linéaire de façade
- Plusieurs bureaux cloisonnées
- Monte-charge
- Climatisation
- Open space
- Espace détente
- Sanitaires.
- Très belle hauteur sous plafond
- Surface RDC : 367,7 m²
Accessibilité:
Bus Bus : 169 - 171 - 179
Metro Pont de Sèvres (9)
Route N118
Tramway Musée de Sèvres (2)
Les informations sur les risques auxquels ce bien est exposé sont disponibles sur le site Géorisques : www.georisques.gouv.fr
Voir plus
Afficher les consommations énergétiques
Favoris
Exporter
Appeler
Contacter
Signaler cette annonce










