Arthur Loyd est implantée depuis 1986 à Orléans, soit 35 ans de présence au quotidien sur le terrain et auprès des acteurs économiques du Loiret.Nous accompagnons les porteurs de projet, quelles qu ...
En savoir plus

241 m²
HT HC
Location bureau - 241 m²
Saint-Cyr-en-Val (45590)
Dernière mise à jour : Il y a 2 jours
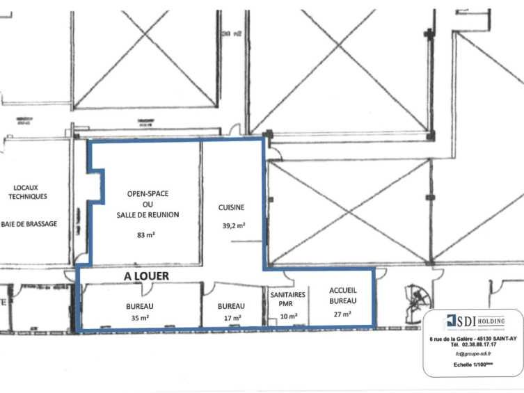
Bureaux d'environ 241 m2 offrant de nombreux stationnements - Orléans Sud (proche Limère)
Au sein d'un ensemble immobilier à usage mixte (bureaux et activités), Arthur loyd Orléans vous propose au sud de la métropole, un plateau de bureau situé au 1er étage du bâtiment LIMERE 1 d'une surface d'environ 241 m2 de bureaux. Cet ensemble se compose d'un accueil, d'un open-space ou d'une salle de réunion d'environ 83 m2 (possibilité de l'équiper de mobiliers), de 2 bureaux de 35 m2 et 17 m2, d'une cuisine, de vestiaires et de sanitaires.
Aire de stationnement commune d'environ 170 parkings comprises dans le loyer.
Impôt Foncier : 7 €/HT/m2/an en 2024
Régime Fiscal : T.V.A.
Dépôt de garantie : 1 trimestre de loyer
Honoraires : 15% HT du loyer annuel HT à la charge du preneur
Information sur le Bail :
Provision pour charges : 12 euros HT/m2/an comprenant le chauffage, la consommation d'eau et l'électricité au prorata de la surface louée.
Prestations :
Accessibilité:
Autoroute A71 - sortie 2 : Olivet
RD / RN RD 2020 (Sud)
SNCF Gare de Saint-Cyr-en-Val - La Source
Transports en commun Limère (Bus 1)
Transports en commun Pomme de Pin (Bus 2)
Transports en commun Petite Mérie (Bus 7)
Les informations sur les risques auxquels ce bien est exposé sont disponibles sur le site Géorisques : www.georisques.gouv.fr
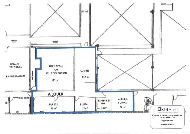
Au sein d'un ensemble immobilier à usage mixte (bureaux et activités), Arthur loyd Orléans vous propose au sud de la métropole, un plateau de bureau situé au 1er étage du bâtiment LIMERE 1 d'une surface d'environ 241 m2 de bureaux. Cet ensemble se compose d'un accueil, d'un open-space ou d'une salle de réunion d'environ 83 m2 (possibilité de l'équiper de mobiliers), de 2 bureaux de 35 m2 et 17 m2, d'une cuisine, de vestiaires et de sanitaires.
Aire de stationnement commune d'environ 170 parkings comprises dans le loyer.
| Étage | Type | Surfaces | Dispo | Loyer | Charges | Type de bailRév. annuelle |
|---|---|---|---|---|---|---|
| 1 | Bureaux | 241 | Immédiate | Bail commercial 3/6/9ILAT Indice des Loyers des Activités Tertiaires |
Impôt Foncier : 7 €/HT/m2/an en 2024
Régime Fiscal : T.V.A.
Dépôt de garantie : 1 trimestre de loyer
Honoraires : 15% HT du loyer annuel HT à la charge du preneur
Information sur le Bail :
Provision pour charges : 12 euros HT/m2/an comprenant le chauffage, la consommation d'eau et l'électricité au prorata de la surface louée.
Prestations :
- Climatisation réversible
- Fibre optique
Accessibilité:
Autoroute A71 - sortie 2 : Olivet
RD / RN RD 2020 (Sud)
SNCF Gare de Saint-Cyr-en-Val - La Source
Transports en commun Limère (Bus 1)
Transports en commun Pomme de Pin (Bus 2)
Transports en commun Petite Mérie (Bus 7)
Les informations sur les risques auxquels ce bien est exposé sont disponibles sur le site Géorisques : www.georisques.gouv.fr
Voir plus
Afficher les consommations énergétiques
Localisation et transport aux alentours
Favoris
Exporter
Appeler
Contacter
Signaler cette annonce



