L’agence CBRE Lille conseille et accompagne les chefs d’entreprise dans leurs projets immobiliers quels que soient leur taille et leur secteur d’activité. Spécialistes de la transaction de bureaux, ...
En savoir plus

95 m²
HT HC
Location bureau - 95 m²
Roncq (59223)
Dernière mise à jour : Il y a 2 jours
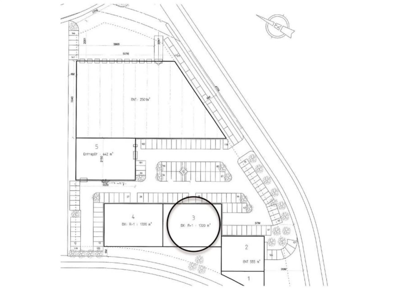
Différentes surfaces de bureaux, entièrement rénovées, sur le CIT de Roncq.
Le CIT de RONCQ se démarque par son adaptation et sa capacité d'évolution. Les sociétés de transports, majoritairement présentes sur la zone, permettent un turnover de 4.000 véhicules circulant chaque jour au sein du CIT.
Il offre 61 hectares dont 50 hectares de surfaces commerciales réservés aux activités de transport et de logistique (43 pour la réalisation de bâtiments d'entreposage, 7 pour hôtels, restaurants, station service, parking poids-lourds, etc).
Impôt Foncier : 9,89 €/m²/ an
Régime Fiscal : T.V.A.
Dépôt de garantie : 3 mois de loyer HT/HC
Honoraires : 15% HT du loyer annuel HT HC à la charge du preneur
Prestations :
Accessibilité:
. Autoroute A22
Les informations sur les risques auxquels ce bien est exposé sont disponibles sur le site Géorisques : www.georisques.gouv.fr
Le CIT de RONCQ se démarque par son adaptation et sa capacité d'évolution. Les sociétés de transports, majoritairement présentes sur la zone, permettent un turnover de 4.000 véhicules circulant chaque jour au sein du CIT.
Il offre 61 hectares dont 50 hectares de surfaces commerciales réservés aux activités de transport et de logistique (43 pour la réalisation de bâtiments d'entreposage, 7 pour hôtels, restaurants, station service, parking poids-lourds, etc).
| Étage | Type | Surfaces | Dispo | Loyer | Charges | Type de bailRév. annuelle |
|---|---|---|---|---|---|---|
| RDC | Bureaux | 95 | Immédiate | 120 m²/an HT HC | 12 m²/an HT | 3-6-9 ansIndice ILAT |
Impôt Foncier : 9,89 €/m²/ an
Régime Fiscal : T.V.A.
Dépôt de garantie : 3 mois de loyer HT/HC
Honoraires : 15% HT du loyer annuel HT HC à la charge du preneur
Prestations :
- Climatisation
- Cloisonnement sur mesure
- Chauffage par convecteur
- Câblage plinthes périphériques
- Faux plafond
- Alarme avec télétransmission au gardiennage du C.I.T
- Surface RDC : 95 m²
Accessibilité:
. Autoroute A22
Les informations sur les risques auxquels ce bien est exposé sont disponibles sur le site Géorisques : www.georisques.gouv.fr
Voir plus
Afficher les consommations énergétiques
Favoris
Exporter
Appeler
Contacter
Signaler cette annonce
