Conseil en immobilier d'entreprise, Cushman & Wakefield est un acteur incontournable au rayonnement international. Cushman & Wakefield offre des solutions dans toutes les étapes que comporte un p ...
En savoir plus

704 m²
HT HC
ECOPARC - Location bureau - 704 m²
Nanterre (92000)
Dernière mise à jour : Il y a 3 jours
ECOPARC
Immeuble ECOPARC
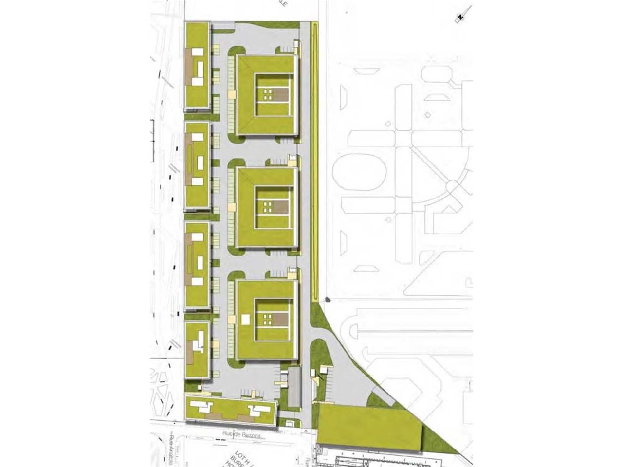
À Nanterre, "CW" propose une opportunité exceptionnelle pour les entreprises à la recherche d'espaces mixtes acti/bureaux de qualité, modernes et fonctionnels. Situé dans un campus neuf offrant un total de 8 035 m² d'espaces divisibles, à partir de 262 m², ces bureaux et ses surfaces d'activités offrent une flexibilité et une adaptabilité idéales pour tout type d'entreprise. Bénéficiant d'une localisation stratégique au coeur d'une zone dynamique, cet espace représente l'occasion parfaite pour développer et consolider son activité professionnelle. Ne manquez pas cette opportunité de louer un espace de travail de premier plan à Nanterre.
Label HQE Biosourcé.
Accès de plain-pied, aire de livraison, parking, stock, atelier de conception.
Bureaux en étage.
Proximité transports en commun RER A Nanterre Université, Transilien Ligne L Nanterre Université
Proximité A14 et A86
Voies cyclables urbaines et sur le site.
La Défense, coulée verte, espaces de vie.
Parc départemental du Chemin de l'île.
L'ensemble comprend plus de 300 emplacements de parkings, plus de 100 places deux roues et des abris Vélos.
Les services déployés comprennent un gardien, une salle de sport, de la Restauration et un centre de conférences.
Régime Fiscal : T.V.A.
Honoraires : à la charge du preneur
Information sur le Bail :
Loyer parking : 1 200 euros HT/HC/Un/an
Prestations :
Accessibilité:
RER Nanterre Université (RER A)
SNCF Gare de Nanterre Université (L)
Bus Lignes 259-304-378
Accès routier A14-A86
Les informations sur les risques auxquels ce bien est exposé sont disponibles sur le site Géorisques : www.georisques.gouv.fr
Immeuble ECOPARC
À Nanterre, "CW" propose une opportunité exceptionnelle pour les entreprises à la recherche d'espaces mixtes acti/bureaux de qualité, modernes et fonctionnels. Situé dans un campus neuf offrant un total de 8 035 m² d'espaces divisibles, à partir de 262 m², ces bureaux et ses surfaces d'activités offrent une flexibilité et une adaptabilité idéales pour tout type d'entreprise. Bénéficiant d'une localisation stratégique au coeur d'une zone dynamique, cet espace représente l'occasion parfaite pour développer et consolider son activité professionnelle. Ne manquez pas cette opportunité de louer un espace de travail de premier plan à Nanterre.
Label HQE Biosourcé.
Accès de plain-pied, aire de livraison, parking, stock, atelier de conception.
Bureaux en étage.
Proximité transports en commun RER A Nanterre Université, Transilien Ligne L Nanterre Université
Proximité A14 et A86
Voies cyclables urbaines et sur le site.
La Défense, coulée verte, espaces de vie.
Parc départemental du Chemin de l'île.
L'ensemble comprend plus de 300 emplacements de parkings, plus de 100 places deux roues et des abris Vélos.
Les services déployés comprennent un gardien, une salle de sport, de la Restauration et un centre de conférences.
| Étage | Type | Surfaces | Dispo | Loyer | Charges | Type de bailRév. annuelle |
|---|---|---|---|---|---|---|
| 1 | Bureaux | 350 | 215 | Sur l'indice ILAT | ||
| RdC | Activités | 315 | 215 | Sur l'indice ILAT | ||
| RdC | Bureaux | 39 | 215 | Sur l'indice ILAT | ||
| Total Cellule LOT 2 | Bureaux | 704 | 215 HT/HC/m²/an | 3-6-9 ansSur l'indice ILAT |
Régime Fiscal : T.V.A.
Honoraires : à la charge du preneur
Information sur le Bail :
Loyer parking : 1 200 euros HT/HC/Un/an
Prestations :
- Parc de 25 000 m² mixte activité et bureau
- 9 immeubles conçus selon un principe ultra fonctionnel pour combiner des activités industrielles, artisanales, de service et l'agrément du cadre de vie
- Architecture soignée / Label HQE biosourcé
- Entouré du parc du Chemin-de-l 'île, de la coulée verte, et de l'Arboretum, l'Écoparc Nanterre est au coeur d'un écosystème favorisant la mobilité et le bien-être
- 10 700 m² de bureaux
- 14 300 m² d'activités
- Restauration
- Gardien
- Toitures végétalisées
- Terrasses paysagères
- Centre de conférences
- Salle de sport
- Accès plain-pied
- Aires de livraison
- Parking véhicules : 300 places
- Deux roues : 100 places
- Abris vélos
- Activité :
- Structure poteau, poutre, et planchers en béton
- HSP : 3,6m sous poutre et 4,2m sous plancher sauf Bât. H 4,6m sous poutre et 5,2m sous plancher
- Porte de plain-pied par lot
- Résistance au sol : 1t/ m²
- Eclairage LED
- Chauffage par aérothermes électriques
- Bornes véhicules électriques possibles
- Bureaux :
- Structure poteau, poutre, et planchers en bois
- HSP : 3m sauf Bât. H (2,7m)
- Menuiseries extérieur en Alu
- Traitement en chaud et en froid des locaux par un système de climatisation intégré aux zones de circulation
- Eclairages Led suspendus 300 lux
- Décoration soignée
- Fibre optique en attente
- Surface RDC : 354 m²
Accessibilité:
RER Nanterre Université (RER A)
SNCF Gare de Nanterre Université (L)
Bus Lignes 259-304-378
Accès routier A14-A86
Les informations sur les risques auxquels ce bien est exposé sont disponibles sur le site Géorisques : www.georisques.gouv.fr
Voir plus
Afficher les consommations énergétiques
Localisation et transport aux alentours
Favoris
Exporter
Appeler
Contacter
Signaler cette annonce










