Conseil en immobilier d'entreprise, Cushman & Wakefield est un acteur incontournable au rayonnement international. Cushman & Wakefield offre des solutions dans toutes les étapes que comporte un p ...
En savoir plus



1 551 m² divisible dès 268 m²
HT HC
HUB - Location bureau - 1551 m²
Levallois-Perret (92300)
Dernière mise à jour : Il y a 4 mois
Immeuble de services - Vue dégagée sur Levallois-Perret
Immeuble HUB
Bureaux à louer de grande qualité - Levallois Perret - Aux Portes de Paris - Place de la Gare de Levallois Clichy.
Cushman & Wakefield vous propose des surfaces de bureaux à louer dans un immeuble construit en 2017 doté d'une situation centrale et stratégique.
L'immeuble dispose des certifications : HQE® - BREEAM - RT 2012-30%
L'accès à HUB est réellement multimodal. En voiture ou à vélo, à pieds et en transports en commun - notamment avec la gare de Levallois Clichy située au pied de l'immeuble.
Connexion immédiate à la Gare St Lazare et au Hub de la Défense. L'immeuble est proche de tous les axes stratégiques de Paris et de La Défense.
A proximité du centre commercial So Ouest et du périphérique.
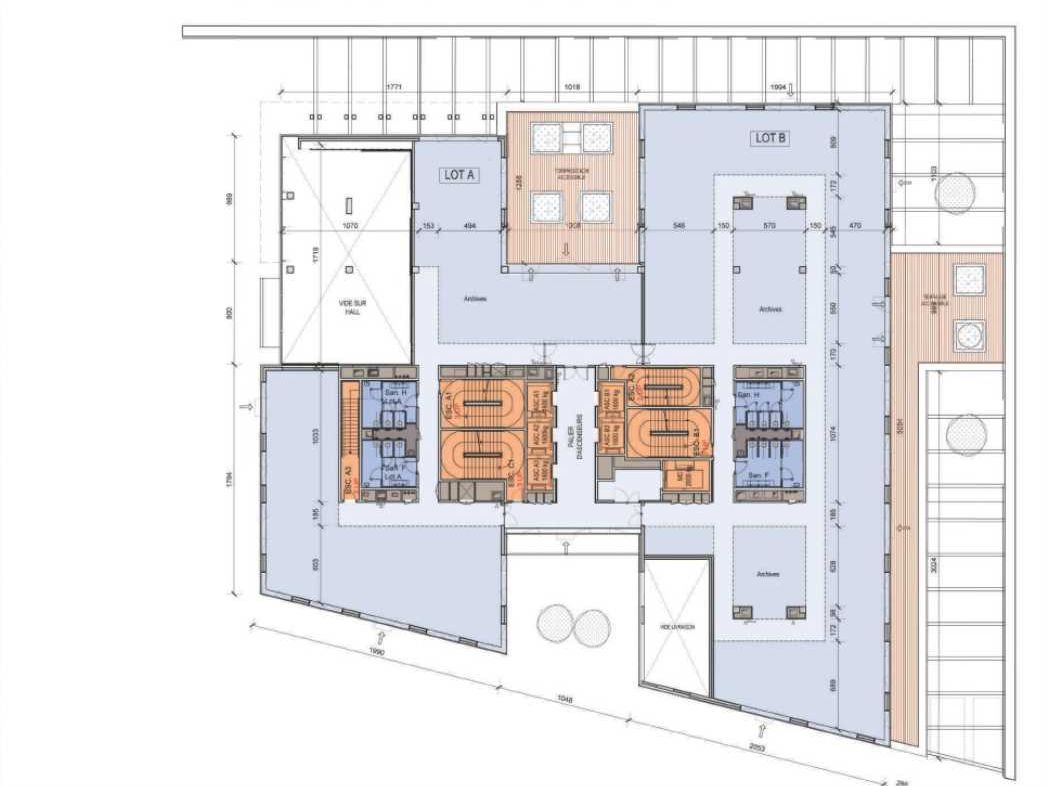
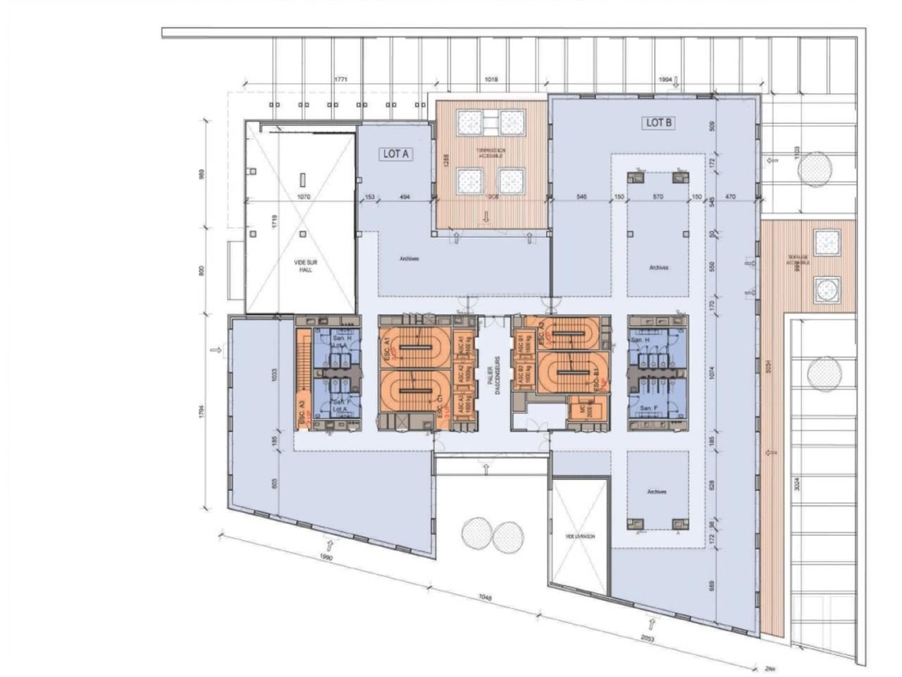
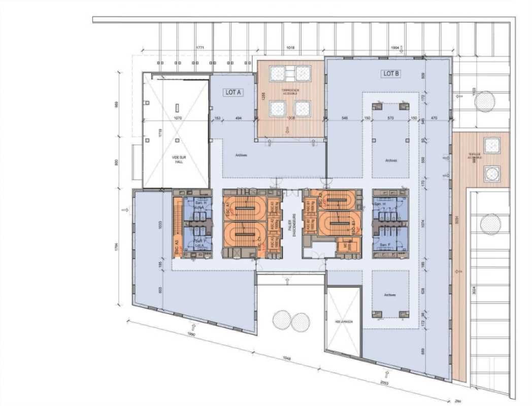
La configuration et la structure des plateaux permettent d'optimiser la surface de l'immeuble quels que soient les organisations souhaitées : open-space, bureaux séparés individuels ou partagés, salles de réunion, salons de réception.
Les circulations simples entre espaces privés et espaces communs - le vaste RIE, les salles de réunion, le hall d'accueil, les points de détente - favorisent les échanges et jouent la carte de la convivialité.
Un local vélo et des emplacements de parkings sont également disponibles dans l'immeuble.
Impôt Foncier : 24,58 €/HT/m²/an
Régime Fiscal : T.V.A.
Dépôt de garantie : 3 mois de loyer HT
Paiement Loyer : Trimestriel
Honoraires : à la charge du preneur
Taxe Bureau : 25,77 €/m²/an
Information sur le Bail :
Provision pour charges 2025 Le loyer inclut le RIE Prime d'assurance 2024 : 1,39 euros HT/m²/an Taxe de balayage 2024 : 0,49 euros HT/m²/an
Prestations :
Accessibilité:
SNCF Clichy-Levallois (L) au pied de l'immeuble
Bus Lignes 174-341
Accès routier Porte d'Asnières à 5 mn
Accès routier Accès Saint- Lazare en 6 mn et la Défense en 15 mn
Les informations sur les risques auxquels ce bien est exposé sont disponibles sur le site Géorisques : www.georisques.gouv.fr
Immeuble HUB
Bureaux à louer de grande qualité - Levallois Perret - Aux Portes de Paris - Place de la Gare de Levallois Clichy.
Cushman & Wakefield vous propose des surfaces de bureaux à louer dans un immeuble construit en 2017 doté d'une situation centrale et stratégique.
L'immeuble dispose des certifications : HQE® - BREEAM - RT 2012-30%
L'accès à HUB est réellement multimodal. En voiture ou à vélo, à pieds et en transports en commun - notamment avec la gare de Levallois Clichy située au pied de l'immeuble.
Connexion immédiate à la Gare St Lazare et au Hub de la Défense. L'immeuble est proche de tous les axes stratégiques de Paris et de La Défense.
A proximité du centre commercial So Ouest et du périphérique.
La configuration et la structure des plateaux permettent d'optimiser la surface de l'immeuble quels que soient les organisations souhaitées : open-space, bureaux séparés individuels ou partagés, salles de réunion, salons de réception.
Les circulations simples entre espaces privés et espaces communs - le vaste RIE, les salles de réunion, le hall d'accueil, les points de détente - favorisent les échanges et jouent la carte de la convivialité.
Un local vélo et des emplacements de parkings sont également disponibles dans l'immeuble.
| Étage | Type | Surfaces | Dispo | Loyer | Charges | Type de bailRév. annuelle |
|---|---|---|---|---|---|---|
| 1 | Bureaux | 948,6 | Immédiate | 400 HT/HC/m²/an | 76,87 HT/m²/an | 3-6-9 ans ou DérogatoireSur l'indice ILAT |
| 1 | Bureaux | 334,7 | Immédiate | 400 HT/HC/m²/an | 76,87 HT/m²/an | 3-6-9 ans ou DérogatoireSur l'indice ILAT |
| 1 | Bureaux | 268,1 | Immédiate | 400 HT/HC/m²/an | 76,87 HT/m²/an | 3-6-9 ans ou DérogatoireSur l'indice ILAT |
| Pkg Moto | Parkings | Immédiate | 800 HT/HC/place/an | 3-6-9 ans ou DérogatoireSur l'indice ILAT | ||
| SS | Parkings | Immédiate | 1600 HT/HC/place/an | 3-6-9 ans ou DérogatoireSur l'indice ILAT |
Impôt Foncier : 24,58 €/HT/m²/an
Régime Fiscal : T.V.A.
Dépôt de garantie : 3 mois de loyer HT
Paiement Loyer : Trimestriel
Honoraires : à la charge du preneur
Taxe Bureau : 25,77 €/m²/an
Information sur le Bail :
Provision pour charges 2025 Le loyer inclut le RIE Prime d'assurance 2024 : 1,39 euros HT/m²/an Taxe de balayage 2024 : 0,49 euros HT/m²/an
Prestations :
- Immeuble code du travail livré en 2017 face à la gare de Clichy - Levallois
- Entièrement rénové en 2025
- Ouverture à la Française sur l'ensemble de la façade
- Hall central double hauteur et socle de services en RdC entièrement rénovés et livrés fin 2024
- Labels et Certifications : HQE - Labélisation possible des espaces preneurs sur des labels de type OsmoZ ou BBCA exploitation
- Sécurité (contrôle d'accès, vidéosurveillance, détection intrusion)
- Eclairage LED
- Production de chaleur > 50 % en énergies renouvelables
- Nombreux emplacements de parking dans l'immeuble
- Emplacements véhicules électriques
- Local vélos et bagagerie
- Accès PMR
- HSP : 2,70 m
- Faux plancher & faux plafond
- Faux plafond
- Faux plancher
- HSP : 2,70 m
- Possibilité de louer en Plug&Play
- Immeuble indépendant
Accessibilité:
SNCF Clichy-Levallois (L) au pied de l'immeuble
Bus Lignes 174-341
Accès routier Porte d'Asnières à 5 mn
Accès routier Accès Saint- Lazare en 6 mn et la Défense en 15 mn
Les informations sur les risques auxquels ce bien est exposé sont disponibles sur le site Géorisques : www.georisques.gouv.fr
Voir plus
Afficher les consommations énergétiques
Localisation et transport aux alentours
- Clichy - Levallois155m (2min à pied)L
Favoris
Exporter
Appeler
Contacter
Signaler cette annonce










