Alex Bolton, société de conseil en immobilier d’entreprise est spécialisée dans la transaction locative et la vente d’immeubles de bureaux.Dotée d’une équipe de collaborateurs expérimentés, la soci ...
En savoir plus

261 m²
HT HC
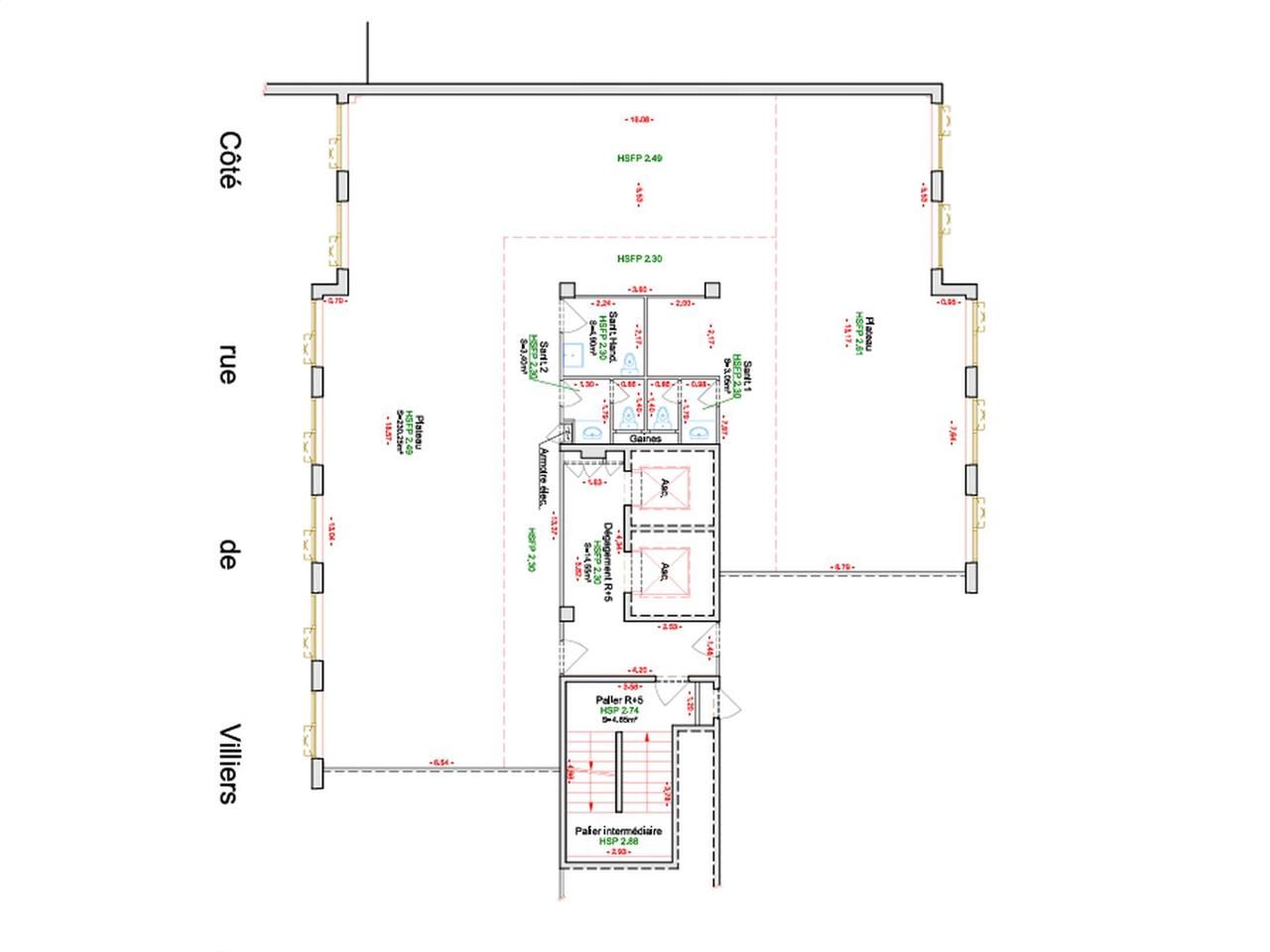
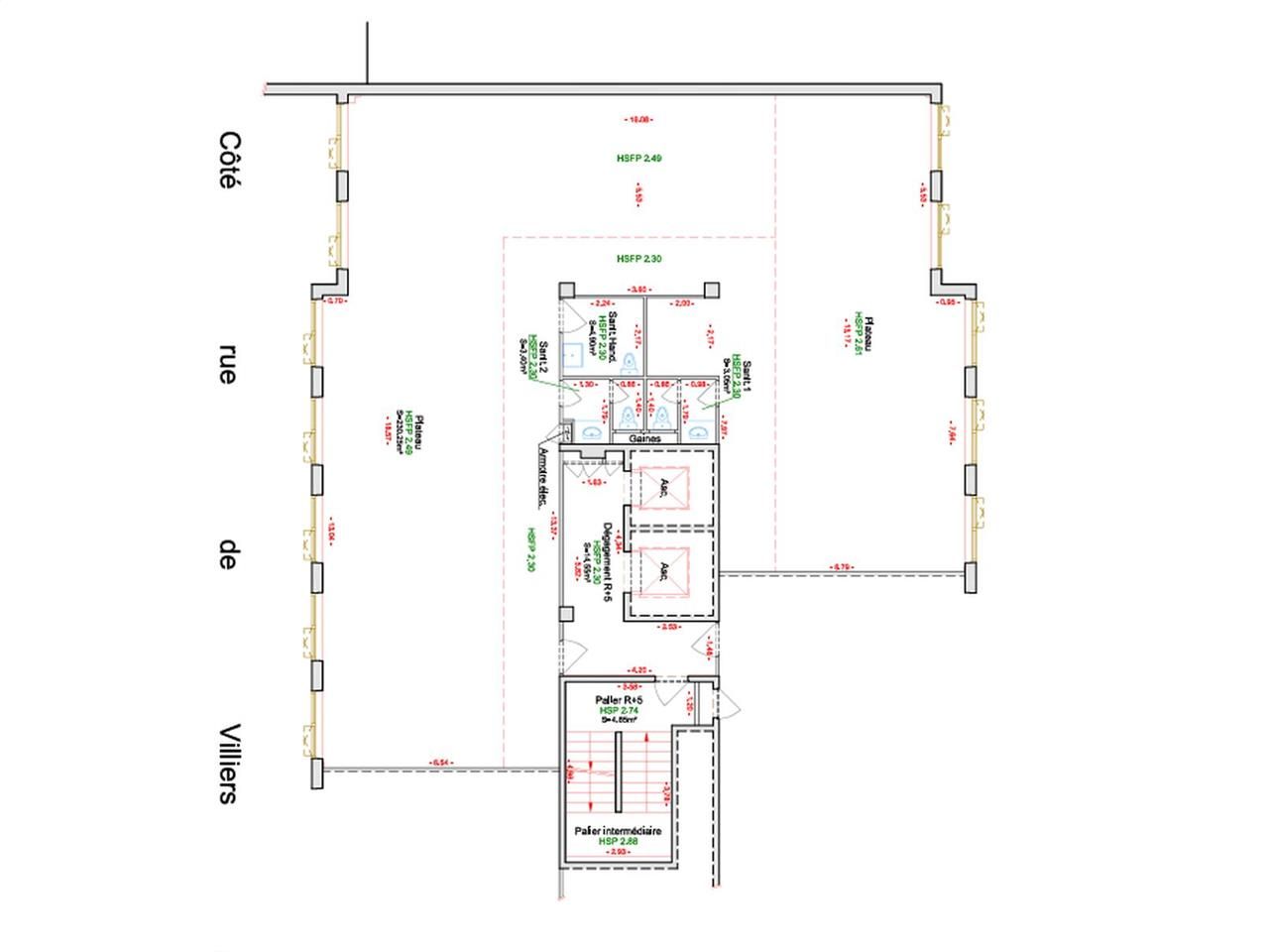
Location bureau - 261 m²
Levallois-Perret (92300)
Dernière mise à jour : Il y a 4 jours
A proximité immédiate de la station de métro Anatole France Alex Bolton vous propose à la location une surface d'environ 250 m² au sein d'un immeuble de standing bénéficiant d'une hôtesse d'accueil. .
Entièrement rénovée par le propriétaire, la surface offre une flexibilité d'aménagement et dispose de très peu de contraintes porteuses.
Votre contact pour toute visite : Jérémy MARCIANO / 07 81 98 5 2 36 / [email protected]
Régime Fiscal : T.V.A.
Dépôt de garantie : 3 mois de loyer HT/HC
Honoraires : 15 % HT du loyer annuel HT HC à la charge du preneur
Information sur le Bail :
- Fiscalité (taxe foncière + taxe bureaux) : 34,09 + 24,17 + 1,71 = 59,97 euros/m² - Assurance : 1,00 euros/m²
Prestations :
Accessibilité:
Bus Hôpital du Perpétuel Secours (93, 174), Résidence Greffulhe (274)
Grand Paris Express Bécon-les-Bruyères (L15 Horizon 2030)
Transilien Asnières-sur-Seine (TER)
Route A 13 (Entrée), A 13 (Sortie), N 1014 (Entrée A 14), N 1014 (Sortie A 14)
Métro Ligne 3 Anatole France
Les informations sur les risques auxquels ce bien est exposé sont disponibles sur le site Géorisques : www.georisques.gouv.fr
Entièrement rénovée par le propriétaire, la surface offre une flexibilité d'aménagement et dispose de très peu de contraintes porteuses.
Votre contact pour toute visite : Jérémy MARCIANO / 07 81 98 5 2 36 / [email protected]
| Étage | Type | Surfaces | Dispo | Loyer | Charges | Type de bailRév. annuelle |
|---|---|---|---|---|---|---|
| 5 | Bureaux | 261 | 1er mars 2026 | 320 HT/HC/m²/an | 72,61 m²/an HT | 3-6-9 ansILAT |
| SS | Parkings | 1er mars 2026 | 1200 HT/HC/place/an | 3-6-9 ansILAT |
Régime Fiscal : T.V.A.
Dépôt de garantie : 3 mois de loyer HT/HC
Honoraires : 15 % HT du loyer annuel HT HC à la charge du preneur
Information sur le Bail :
- Fiscalité (taxe foncière + taxe bureaux) : 34,09 + 24,17 + 1,71 = 59,97 euros/m² - Assurance : 1,00 euros/m²
Prestations :
- Immeuble de bon standing
- Hall d'accueil rénové
- Hôtesse d'accueil
- Surface rénovée par le propriétaire
- Travaux réalisés :
- Remise en Peinture
- Remplacement moquette
- Remplacement des Faux Plafonds
- Pose de dalles LED
- Décloisonnement
- Climatisation
- Fin des travaux prévus pour mars 2025
Accessibilité:
Bus Hôpital du Perpétuel Secours (93, 174), Résidence Greffulhe (274)
Grand Paris Express Bécon-les-Bruyères (L15 Horizon 2030)
Transilien Asnières-sur-Seine (TER)
Route A 13 (Entrée), A 13 (Sortie), N 1014 (Entrée A 14), N 1014 (Sortie A 14)
Métro Ligne 3 Anatole France
Les informations sur les risques auxquels ce bien est exposé sont disponibles sur le site Géorisques : www.georisques.gouv.fr
Voir plus
Afficher les consommations énergétiques
Localisation et transport aux alentours
Favoris
Exporter
Appeler
Contacter
Signaler cette annonce










