L’agence CBRE Lille conseille et accompagne les chefs d’entreprise dans leurs projets immobiliers quels que soient leur taille et leur secteur d’activité. Spécialistes de la transaction de bureaux, ...
En savoir plus

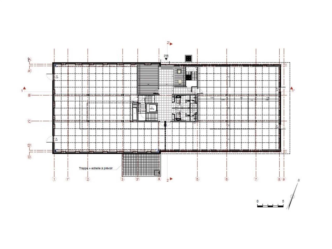
1 033 m² divisible dès 158 m²
HT HC
Location bureau - 1033 m²
Lesquin (59810)
Dernière mise à jour : Il y a 4 mois
A la croisée des axes autoroutiers, à côté du Parc de la Haute Borne, au sein d'un parc tertiaire 3ème génération, CBRE Lille vous propose plusieurs surfaces de bureaux offrant un cadre de travail exceptionnel.
Locaux situés entre Synergie Parc et le Parc Scientifique Européen de la Haute Borne, ARTEPARC représente une réelle opportunité pour les utilisateurs en quête d'accessibilité et de prestations innovantes.
Impôt Foncier : 23 €/m²/an
Régime Fiscal : T.V.A.
Dépôt de garantie : 3 mois de loyer HT/HC
Paiement Loyer : trimestriel
Honoraires : 15% HT du loyer annuel HT HC à la charge du preneur
Prestations :
Accessibilité:
Autoroute A1/A22/A23/A27
Metro Ligne 1 Station : 4 Cantons ligne 1 à 4 minutes en bus et en navette
Aeroport Lille Lesquin à 10 minutes
SNCF Gares Lille-Flandres et Lille-Europe, reliées directement au site en 13 minutes via le métro
Les informations sur les risques auxquels ce bien est exposé sont disponibles sur le site Géorisques : www.georisques.gouv.fr
Locaux situés entre Synergie Parc et le Parc Scientifique Européen de la Haute Borne, ARTEPARC représente une réelle opportunité pour les utilisateurs en quête d'accessibilité et de prestations innovantes.
| Étage | Type | Surfaces | Dispo | Loyer | Charges | Type de bailRév. annuelle |
|---|---|---|---|---|---|---|
| RDC | Bureaux | 174,94 | Immédiate | 150 m²/an HT HC | 36 HT/m²/an | 3-6-9 ansIndice ILAT |
| 1 | Bureaux | 367,97 | Immédiate | 150 m²/an HT HC | 36 m²/an HT | 3-6-9 ansIndice ILAT |
| 2 | Bureaux | 331,72 | Immédiate | 155 m²/an HT HC | 36 m²/an HT | 3-6-9 ansIndice ILAT |
| 2 | Bureaux | 158,46 | Immédiate | 150 m²/an HT HC | 36 m²/an HT | 6-9 ansIndice ILAT |
Impôt Foncier : 23 €/m²/an
Régime Fiscal : T.V.A.
Dépôt de garantie : 3 mois de loyer HT/HC
Paiement Loyer : trimestriel
Honoraires : 15% HT du loyer annuel HT HC à la charge du preneur
Prestations :
- Ascenseur
- Climatisation : pompe à chaleur air-air (comprise dans les charges)
- Chauffage réversible (inclus dans les charges)
- Cloisonnement à la charge du preneur
- Dalle LED
- Effinergie +
- Faux plafond
- Interphone
- Toiture équipée en modules photovoltaïques
- Parc sécurisé
- Les plateaux du R+2 disposent d'une terrasse privative de 47 m².
- Places de parking extérieur :
- Loyer : 250 euros HT HC/U/an
- Ratio : 1 pers/10 m²
- Surface RDC : 174,94 m²
Accessibilité:
Autoroute A1/A22/A23/A27
Metro Ligne 1 Station : 4 Cantons ligne 1 à 4 minutes en bus et en navette
Aeroport Lille Lesquin à 10 minutes
SNCF Gares Lille-Flandres et Lille-Europe, reliées directement au site en 13 minutes via le métro
Les informations sur les risques auxquels ce bien est exposé sont disponibles sur le site Géorisques : www.georisques.gouv.fr
Voir plus
Afficher les consommations énergétiques
Favoris
Exporter
Appeler
Contacter
Signaler cette annonce










