Arthur Loyd Bretagne est une société de conseil en immobilier d'entreprise de la métropole brestoise. Spécialiste de l’immobilier d’entreprise sur le Finistère, les Côtes-d’Armor, l’Ille et Vilaine ...
En savoir plus

157 m²
Loyer sur demande
Location bureau - 157 m²
Le Relecq-Kerhuon (29480)
Dernière mise à jour : Il y a 2 jours
A VENDRE / A LOUER - PLATEAU DE BUREAUX 157 M² - LE RELECQ KERHUON
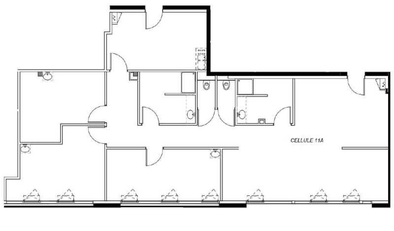
L'agence Arthur Loyd vous propose à la location ou à la vente un plateau de bureaux d'une superficie privative de 157 m², situé au premier étage d'un immeuble de copropriété au Relecq-Kerhuon. Ce plateau, idéalement situé et bien aménagé, offre un environnement professionnel et fonctionnel, parfait pour les entreprises cherchant à s'implanter dans un cadre de travail moderne et stratégique.
Superficie Totale : 157 m², offrant un espace spacieux et polyvalent pour vos activités professionnelles.
Configuration des Espaces :
Espace d'Accueil : 51,7 m².
Espace de Pause : 17,3 m².
Bureaux : Trois bureaux individuels de 16,0 m², 18,1 m² et 18,4 m².
Sanitaires : Un WC homme et un WC femme, assurant le confort de vos employés et visiteurs.
Vestiaires PMR : Deux vestiaires de 9,0 m² et 7,6 m², adaptés aux personnes à mobilité réduite.
Couloir : 16,1 m², facilitant la circulation dans les locaux.
Placard Technique : 0,2 m², pour le stockage des équipements techniques.
Pour plus d'informations ou pour organiser une visite, contactez-nous dès aujourd'hui. Ne manquez pas cette opportunité de vous installer dans un espace de bureaux bien équipé et adapté à vos besoins professionnels au Relecq-Kerhuon.
Dépôt de garantie : 2 mois de loyer HT/HC
Prestations :
Accessibilité:
Bus Lichou (25, 18)
Les informations sur les risques auxquels ce bien est exposé sont disponibles sur le site Géorisques : www.georisques.gouv.fr
L'agence Arthur Loyd vous propose à la location ou à la vente un plateau de bureaux d'une superficie privative de 157 m², situé au premier étage d'un immeuble de copropriété au Relecq-Kerhuon. Ce plateau, idéalement situé et bien aménagé, offre un environnement professionnel et fonctionnel, parfait pour les entreprises cherchant à s'implanter dans un cadre de travail moderne et stratégique.
Superficie Totale : 157 m², offrant un espace spacieux et polyvalent pour vos activités professionnelles.
Configuration des Espaces :
Espace d'Accueil : 51,7 m².
Espace de Pause : 17,3 m².
Bureaux : Trois bureaux individuels de 16,0 m², 18,1 m² et 18,4 m².
Sanitaires : Un WC homme et un WC femme, assurant le confort de vos employés et visiteurs.
Vestiaires PMR : Deux vestiaires de 9,0 m² et 7,6 m², adaptés aux personnes à mobilité réduite.
Couloir : 16,1 m², facilitant la circulation dans les locaux.
Placard Technique : 0,2 m², pour le stockage des équipements techniques.
Pour plus d'informations ou pour organiser une visite, contactez-nous dès aujourd'hui. Ne manquez pas cette opportunité de vous installer dans un espace de bureaux bien équipé et adapté à vos besoins professionnels au Relecq-Kerhuon.
| Étage | Type | Surfaces | Dispo | Loyer | Charges | Type de bailRév. annuelle |
|---|---|---|---|---|---|---|
| 1 | Bureaux | 157,1 | Immédiate |
Dépôt de garantie : 2 mois de loyer HT/HC
Prestations :
Accessibilité:
Bus Lichou (25, 18)
Les informations sur les risques auxquels ce bien est exposé sont disponibles sur le site Géorisques : www.georisques.gouv.fr
Voir plus
Afficher les consommations énergétiques
Favoris
Exporter
Appeler
Contacter
Signaler cette annonce
