Nous sommes Immprove, une grande équipe de plus de 200 experts en immobilier d’entreprise, implantés localement avec plus de 20 agences sur tout le territoire.Depuis 2009, notre proximité, notre ét ...
En savoir plus

5 549 m² divisible dès 421 m²
HT HC
Location bureau - 5549 m²
Issy-les-Moulineaux (92130)
Dernière mise à jour : Il y a 22 jours
IMMPROVE propose plusieurs solutions locatives à Technopolis : des bureaux avec terrasses privatives, déjà aménagés en plateau ; un plateau agencé en espace ouvert et bureaux individuels, idéal pour allier collaboration et confidentialité ; une surface d'activité avec porte sectionnelle, parfaite pour des besoins logistiques. Bail souple et monte-charge pour les étages disponibles pour faciliter l'accès et le transport.
Impôt Foncier : 33,4 €/m²/an/HT
Régime Fiscal : T.V.A. (20%)
Dépôt de garantie : 3 mois de loyer HT HC
Honoraires : 15% HT du loyer annuel HT HC à la charge du preneur
Taxe Bureau : 28 €/m²/an
Information sur le Bail :
Charges AFUL : 8 euros/m² HT Charges Ascenseur : 1.3 euros/m² HT
Prestations :
Accessibilité:
A proximité de Paris et de la Porte de Versailles
Metro Issy Ville (C)
Metro Mairie d'Issy (12)
Tramway Jacques-Henri Lartigue (2)
Bus Bus (lignes 39, 126, 123, 189, 290, 323, 389, 394)
Les informations sur les risques auxquels ce bien est exposé sont disponibles sur le site Géorisques : www.georisques.gouv.fr
| Étage | Type | Surfaces | Dispo | Loyer | Charges | Type de bailRév. annuelle |
|---|---|---|---|---|---|---|
| R+3 | Bureaux | 576 | Immédiate | 230 m²/an HT HC | 19,3 m²/an HT | Bail Commercial 3-6-9 ansselon l'indice des loyers des activités tertiaires (ILAT) |
| R+2 | Bureaux | 1083 | Immédiate | 230 m²/an HT HC | 19,3 m²/an HT | Bail Commercial 3-6-9 ansselon l'indice des loyers des activités tertiaires (ILAT) |
| R+2 | Bureaux | 576 | Immédiate | 230 m²/an HT HC | 19,3 m²/an HT | Bail Commercial 3-6-9 ansselon l'indice des loyers des activités tertiaires (ILAT) |
| R+2 | Bureaux | 421 | Immédiate | 230 m²/an HT HC | 19,3 m²/an HT | Bail Commercial 3-6-9 ansselon l'indice des loyers des activités tertiaires (ILAT) |
| R+1 | Activités | 1178 | Immédiate | 200 m²/an HT HC | 19,3 m²/an HT | Bail Commercial 3-6-9 ansselon l'indice des loyers des activités tertiaires (ILAT) |
| R+1 | Activités | 548 | Immédiate | 200 m²/an HT HC | 19,3 m²/an HT | Bail Commercial 3-6-9 ansselon l'indice des loyers des activités tertiaires (ILAT) |
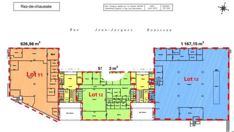
| RDC | Activités | 1167 | Immédiate | 200 m²/an HT HC | 19,3 m²/an HT | Bail Commercial 3-6-9 ansselon l'indice des loyers des activités tertiaires (ILAT) |
| SS | Parkings | Immédiate | 1200 U/an HT HC | Bail Commercial 3-6-9 ansselon l'indice des loyers des activités tertiaires (ILAT) |
Impôt Foncier : 33,4 €/m²/an/HT
Régime Fiscal : T.V.A. (20%)
Dépôt de garantie : 3 mois de loyer HT HC
Honoraires : 15% HT du loyer annuel HT HC à la charge du preneur
Taxe Bureau : 28 €/m²/an
Information sur le Bail :
Charges AFUL : 8 euros/m² HT Charges Ascenseur : 1.3 euros/m² HT
Prestations :
- Immeuble récent
- Accueil
- Superviseur
- Ascenseurs
- Monte-charge
- Accès badge piéton et voiture
- Climatisation double flux
- Surface traversante en excellent état et Plug & Play au 3e étage, avec open spaces, salles de réunion, espace détente. Et accès à une terrasse privative
- Plateau du 2e étage agencé avec des bureaux individuels et des open spaces
- Monte charge disponible pour chaque étage
- Au rdc, très belle surface d'activité, avec porte sectionnelle
- Surface RDC : 1167 m²
Accessibilité:
A proximité de Paris et de la Porte de Versailles
Metro Issy Ville (C)
Metro Mairie d'Issy (12)
Tramway Jacques-Henri Lartigue (2)
Bus Bus (lignes 39, 126, 123, 189, 290, 323, 389, 394)
Les informations sur les risques auxquels ce bien est exposé sont disponibles sur le site Géorisques : www.georisques.gouv.fr
Voir plus
Afficher les consommations énergétiques
Favoris
Exporter
Appeler
Contacter
Signaler cette annonce
