Conseil en immobilier d'entreprise, Cushman & Wakefield est un acteur incontournable au rayonnement international. Cushman & Wakefield offre des solutions dans toutes les étapes que comporte un p ...
En savoir plus

5 617 m² divisible dès 2 279 m²
HT HC
SHIFT - Location bureau - 5617 m²
Issy-les-Moulineaux (92130)
Dernière mise à jour : Il y a 1 mois
Plateau de bureaux Plug & Play - SHIFT, Issy-les-Moulineaux
Immeuble SHIFT
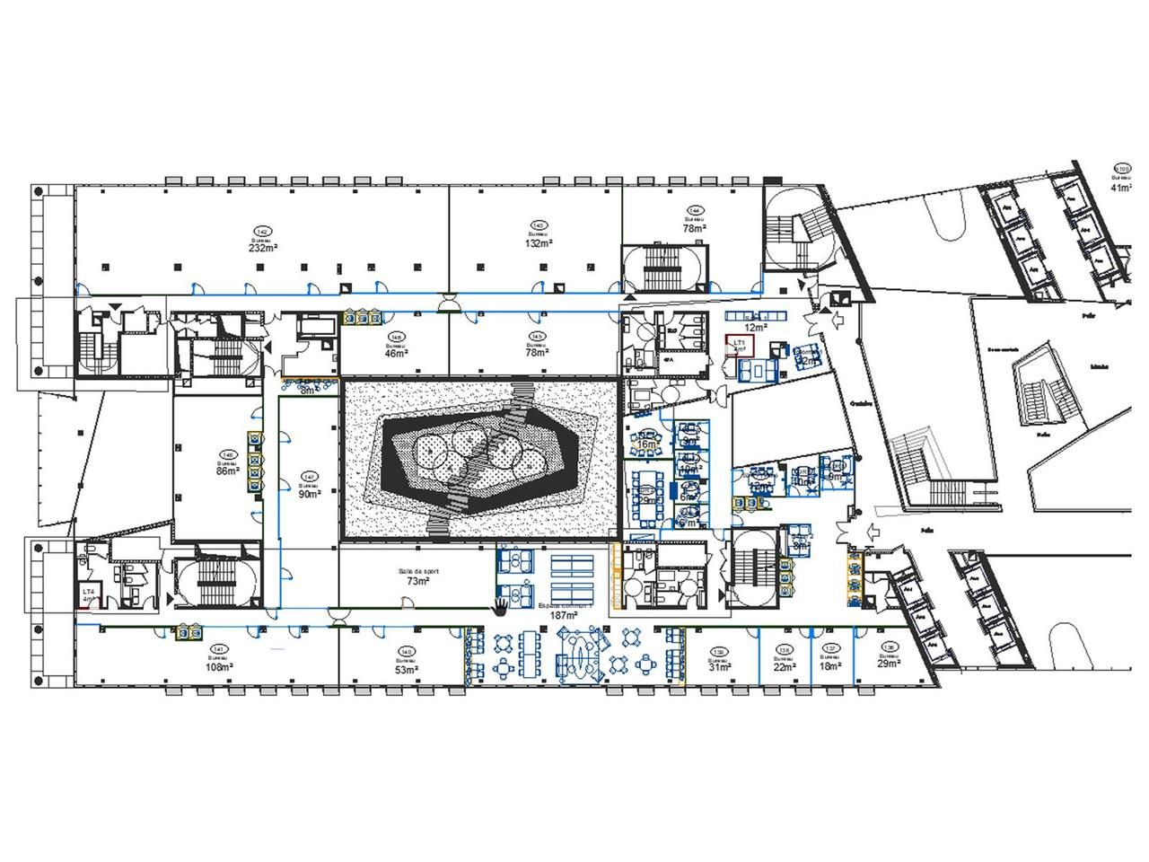
Cushman & Wakefield vous propose un plateau de bureaux au sein de l'immeuble SHIFT à Issy-les-Moulineaux, offrant un environnement de travail moderne, lumineux et immédiatement opérationnel.
L'immeuble bénéficie d'une double adresse 75014 Paris / Issy Les Moulineaux.
Entièrement Plug & Play, ce plateau en R+1 permet une installation rapide, avec aménagements de qualité dans un immeuble signé Arte Charpentier Achitecture, et dressé autour d'un hall cathédrale sur 8 niveaux.
Efficient et lumineux, le plateau développe 1981,60 m² (2279,26 m² en SUBL).
Le cloisonnement vitré toute hauteur apporte transparence et luminosité.
Le plateau dispose également d'un espace de convivialité privatif avec cuisine, et la possibilité d'accéder à des postes supplémentaires dans l'espace de coworking présent dans l'immeuble.
SHIFT se distingue par une offre de services prime : restaurant configuré en halle gastronomique avec plusieurs corners pour chaque type de cuisine, totalisant 574 places assises, 1 cafétéria, 1 auditorium de 200 places, rooftop paysager et espaces de coworking. L'ensemble permet une expérience utilisateur de très haut niveau.
Idéalement situé à Issy-les-Moulineaux, dans un pôle tertiaire dynamique et parfaitement desservi par la ligne 12 du métro, ce plateau est l'opportunité rare pour une entreprise en recherche d'une solution alliant flexibilité, efficacité opérationnelle, design et bien-être.
Impôt Foncier : 24,81 €//m²/an
Régime Fiscal : T.V.A.
Honoraires : à la charge du preneur
Taxe Bureau : 24,69 €/m²/an
Information sur le Bail :
Assurance : 4,4 euros
Prestations :
Accessibilité:
Métro Corentin Celton (ligne 12)
Bus Lignes 39, 169, TUVIM
Tram Porte d'Issy (T2)
Les informations sur les risques auxquels ce bien est exposé sont disponibles sur le site Géorisques : www.georisques.gouv.fr
Immeuble SHIFT
Cushman & Wakefield vous propose un plateau de bureaux au sein de l'immeuble SHIFT à Issy-les-Moulineaux, offrant un environnement de travail moderne, lumineux et immédiatement opérationnel.
L'immeuble bénéficie d'une double adresse 75014 Paris / Issy Les Moulineaux.
Entièrement Plug & Play, ce plateau en R+1 permet une installation rapide, avec aménagements de qualité dans un immeuble signé Arte Charpentier Achitecture, et dressé autour d'un hall cathédrale sur 8 niveaux.
Efficient et lumineux, le plateau développe 1981,60 m² (2279,26 m² en SUBL).
Le cloisonnement vitré toute hauteur apporte transparence et luminosité.
Le plateau dispose également d'un espace de convivialité privatif avec cuisine, et la possibilité d'accéder à des postes supplémentaires dans l'espace de coworking présent dans l'immeuble.
SHIFT se distingue par une offre de services prime : restaurant configuré en halle gastronomique avec plusieurs corners pour chaque type de cuisine, totalisant 574 places assises, 1 cafétéria, 1 auditorium de 200 places, rooftop paysager et espaces de coworking. L'ensemble permet une expérience utilisateur de très haut niveau.
Idéalement situé à Issy-les-Moulineaux, dans un pôle tertiaire dynamique et parfaitement desservi par la ligne 12 du métro, ce plateau est l'opportunité rare pour une entreprise en recherche d'une solution alliant flexibilité, efficacité opérationnelle, design et bien-être.
| Étage | Type | Surfaces | Dispo | Loyer | Charges | Type de bailRév. annuelle |
|---|---|---|---|---|---|---|
| R+1 | Bureaux | 3338 | 410 HT/HC/m²/an | 50,4 HT/m²/an | Sous locationSur l'indice ILAT | |
| R+1 | Bureaux | 2279,26 | 410 HT/HC/m²/an | 50,4 HT/m²/an | Sous locationSur l'indice ILAT |
Impôt Foncier : 24,81 €//m²/an
Régime Fiscal : T.V.A.
Honoraires : à la charge du preneur
Taxe Bureau : 24,69 €/m²/an
Information sur le Bail :
Assurance : 4,4 euros
Prestations :
- Immeuble en R+7 de 28 000 m² de bureaux et services
- Restructuré en 2020 par Arte Charpentier Architecture
- Double adresse : Issy Les Moulineaux / Paris 15
- Hall Cathédrale
- Atrium
- Jardin
- Rooftop et terrasses partagés
- HQE, Bâtiment Tertiaire -Millésime 2015
- BREEAM, International New Construction 2016
- Aire de livraison + monte charge
- Contrôle d'accès + PNG
- Conciergerie
- RIE / Cafétéria : 574 places
- Auditorium : 200 places
- Coworking
- Plateaux Plug & Play, en open space
- Cloisonnement vitré toute hauteur
- Climatisation réversible C/F
- Faux plancher technique
- Câblage (courants faibles / forts)
- Pavés leds
- Salles de réunion
- Espace de convivialité privatif avec cuisine équipée
- Possibilité de bénéficier de postes supplémentaires en coworking sur site
- Capacitaire 2279 m² : 200 p
- Capacitaire 3338 m² : 314 personnes
- Capa. total :514 p
Accessibilité:
Métro Corentin Celton (ligne 12)
Bus Lignes 39, 169, TUVIM
Tram Porte d'Issy (T2)
Les informations sur les risques auxquels ce bien est exposé sont disponibles sur le site Géorisques : www.georisques.gouv.fr
Voir plus
Afficher les consommations énergétiques
Localisation et transport aux alentours
Favoris
Exporter
Appeler
Contacter
Signaler cette annonce










