Pôle Implantation Entreprises est un service opérationnel dans toutes les régions de France pour accompagner les dirigeants d’entreprises dans leurs recherches immobilières, mais aussi sur l’ensemb ...
En savoir plus

200 m²
HT HC
Location bureau - 200 m²
Crépy-en-Valois (60800)
Dernière mise à jour : Il y a 2 jours
Location de bureaux à Crépy-en-Valois (60)
Les informations sur les risques auxquels ce bien est exposé sont disponibles sur le site Géorisques : www.georisques.gouv.fr
Les bureaux sont situés dans la zone industrielle de Crépy-en-Valois, proche de la RN2.Accessibilité : à 20mn de l'A1, 25mn de Roissy CDG et 50mn de Paris.
Disponibilité :
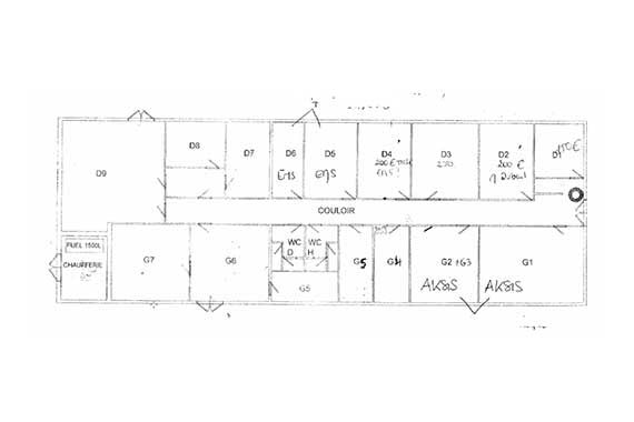
Le bâtiment contient 15 bureaux modulables.
Bâtiment de plain-pied.
Un parking est à disposition des locataires.
Loyer annuel : 24000 € HT
surface totale des bureaux : 200 m².
Bénéficiez de bureaux proches de l'A1, Roissy Charles de Gaulle ou Paris en vous implantant à Crépy-en-Valois.
Actuellement, 15 bureaux modulables sont disponibles à la location dans la zone industrielle de l'agglomération. Les bureaux disposent également d'un parking pour faciliter le stationnement de ses locataires.
Les informations sur les risques auxquels ce bien est exposé sont disponibles sur le site Géorisques : www.georisques.gouv.fr
Les bureaux sont situés dans la zone industrielle de Crépy-en-Valois, proche de la RN2.Accessibilité : à 20mn de l'A1, 25mn de Roissy CDG et 50mn de Paris.
Disponibilité :
Le bâtiment contient 15 bureaux modulables.
Bâtiment de plain-pied.
Un parking est à disposition des locataires.
Loyer annuel : 24000 € HT
surface totale des bureaux : 200 m².
Voir plus
Afficher les consommations énergétiques
Favoris
Exporter
Appeler
Contacter
Signaler cette annonce
