Desaulles Immobilier, est un cabinet de conseil en immobilier d'entreprise membre du réseau CBRE. Implanté à Mulhouse depuis plus de 60 ans, Desaulles Immobilier a répond aux attentes des entrepris ...
En savoir plus

340 m²
HT HC
Location bureau - 340 m²
Dernière mise à jour : Il y a 2 jours
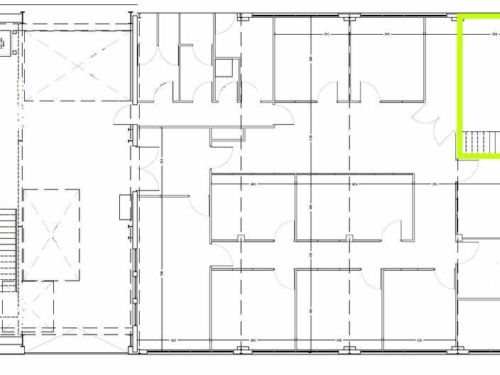
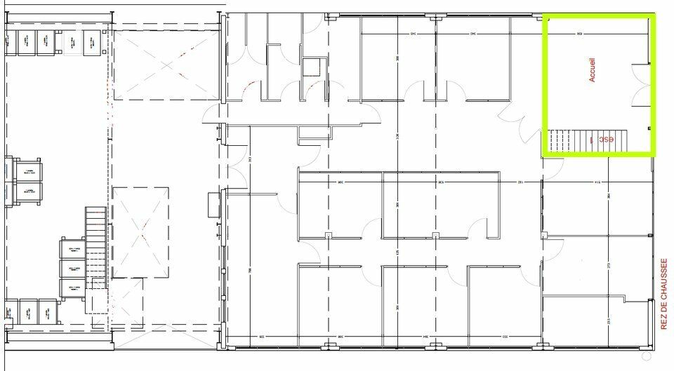
Au sein d'un bâtiment à destination de bureaux et de locaux d'activité, une cellule de bureaux d'environ 340 composé d'un accueil en RDC et de 9 bureaux à l'étage accessible par un escalier.
20 places de parking privées.
Les informations sur les risques auxquels ce bien est exposé sont disponibles sur le site Géorisques : www.georisques.gouv.fr
Accessibilité :
A proximité immédiate des entrées/sorties d'Autoroute A35.
Disponibilité : Immédiate
Prestations :
Chauffage Oui
Climatisation Oui
Kitchenette Oui
PMR Non
Loyer annuel : 47600 €
Type de bail : Commercial
Dépôt de garantie : 3 mois
Montant de la taxe foncière : 1904 €
Honoraires à la charge du preneur : 15 % HT
Voir plus
Afficher les consommations énergétiques
Favoris
Exporter
Appeler
Contacter
Signaler cette annonce










