Nous sommes Immprove, une grande équipe de plus de 200 experts en immobilier d’entreprise, implantés localement avec plus de 20 agences sur tout le territoire.Depuis 2009, notre proximité, notre ét ...
En savoir plus

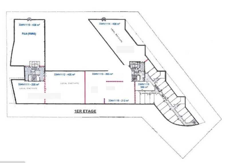
1 984 m² divisible dès 400 m²
HT HC
Location bureau - 1984 m²
Clichy (92110)
Dernière mise à jour : Il y a 2 mois
IMMPROVE vous propose 2 174 m² divisibles à partir de 400 m², à proximité du RER C et de la ligne 13. Bénéficiez d'un accès livraison pour ces surfaces de bureaux et d'activité. Ces locaux offrent un espace de travail moderne et fonctionnel, idéal pour répondre aux besoins de votre entreprise. Ne manquez pas cette opportunité d'installer votre activité dans un environnement dynamique et stratégique. A visiter sans plus tarder.
Impôt Foncier : 44 €//m²/an TEOM incluse
Régime Fiscal : T.V.A. (20%)
Dépôt de garantie : 3 mois de loyer HT HC
Honoraires : 15% HT du loyer annuel HT HC à la charge du preneur
Taxe Bureau : 21,7 €/m²/an
Information sur le Bail :
Les charges comprennent l'entretien du parking, de la climatisation, et l'assurance
Prestations :
Accessibilité:
Bus Citroën (341), Général Roguet (TUVIM)
Metro Mairie de Clichy (ligne 13)
RER St-Ouen (C)
Les informations sur les risques auxquels ce bien est exposé sont disponibles sur le site Géorisques : www.georisques.gouv.fr
| Étage | Type | Surfaces | Dispo | Loyer | Charges | Type de bailRév. annuelle |
|---|---|---|---|---|---|---|
| 2 | Bureaux | 792 | Immédiate | 150 m²/an HT HC | 29,46 an HT | Bail Dérogatoireselon l'indice du coût de la construction (ICC) |
| 1 | Bureaux | 792 | Immédiate | 150 m²/an HT HC | 29,46 an HT | Bail Dérogatoireselon l'indice du coût de la construction (ICC) |
| RDC | Activités | 400 | Immédiate | 150 m²/an HT HC | 29,46 an HT | Bail Dérogatoireselon l'indice du coût de la construction (ICC) |
| SS | Parkings | Immédiate | 800 HT/HC/U/An | Bail Dérogatoireselon l'indice du coût de la construction (ICC) |
Impôt Foncier : 44 €//m²/an TEOM incluse
Régime Fiscal : T.V.A. (20%)
Dépôt de garantie : 3 mois de loyer HT HC
Honoraires : 15% HT du loyer annuel HT HC à la charge du preneur
Taxe Bureau : 21,7 €/m²/an
Information sur le Bail :
Les charges comprennent l'entretien du parking, de la climatisation, et l'assurance
Prestations :
- Immeuble moderne
- Façade en pierres agrafées
- Aire de chargement
- Interphone
- Site clos
- R.I.E à proximité
- Bureaux fonctionnels et facilement aménageables
- Locaux du 2ème et 3ème étages sont cloisonnés
- Monte charge
- Parkings intérieurs
- Surface RDC : 400 m²
Accessibilité:
Bus Citroën (341), Général Roguet (TUVIM)
Metro Mairie de Clichy (ligne 13)
RER St-Ouen (C)
Les informations sur les risques auxquels ce bien est exposé sont disponibles sur le site Géorisques : www.georisques.gouv.fr
Voir plus
Afficher les consommations énergétiques
Favoris
Exporter
Appeler
Contacter
Signaler cette annonce










