Geolink Expansion propose un service simple et gratuit de recherche de locaux pour toutes les entreprises. Grâce à son réseau de collectivités locales et de gestionnaires de zones d’activités, Geol ...
En savoir plus

1 345 m² divisible dès 233 m²
HT HC
Location bureau - 1345 m²
Carpentras (84200)
Dernière mise à jour : Il y a 3 mois
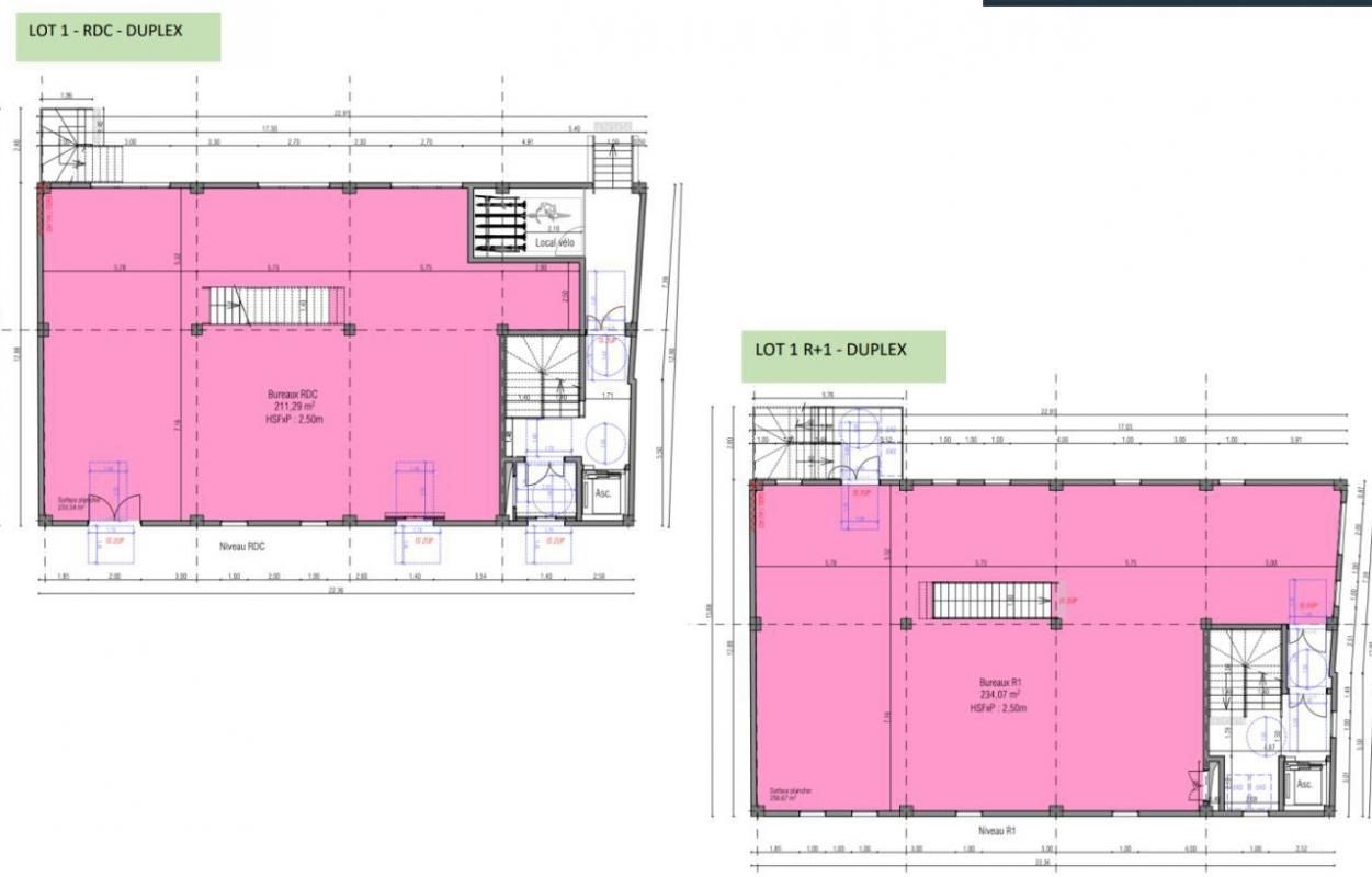
À louer - Bureaux de 1345 m² dans la zone d'activités Marché Gare - Vaucluse (84)
Découvrez des bureaux modernes et modulables dans la zone d'activités du Marché Gare à Carpentras. Ce bâtiment de 1345 m², réparti sur cinq étages, offre des surfaces divisibles en quatre lots distincts, permettant une flexibilité optimale. Les bureaux, livrés bruts, sont prêts à être aménagés selon vos besoins spécifiques. Le bâtiment, réhabilité selon les normes HQE (Haute Qualité Environnementale) et classé ERP (Établissement Recevant du Public), se distingue par une structure métallique, une isolation renforcée et des vitrages isolants. Les espaces sont éclairés par des dispositifs à basse consommation et entourés d'espaces verts. Le site dispose de 53 places de stationnement, dont 2 réservées aux PMR, et d'un local à vélos couvert et sécurisé.
Ils sont proposés à la vente à 2 410 HT/m² ou à la location de 216 à 238 HT/HC/m²/an.
Découvrez des bureaux modernes et modulables dans la zone d'activités du Marché Gare à Carpentras. Ce bâtiment de 1345 m², réparti sur cinq étages, offre des surfaces divisibles en quatre lots distincts, permettant une flexibilité optimale. Les bureaux, livrés bruts, sont prêts à être aménagés selon vos besoins spécifiques. Le bâtiment, réhabilité selon les normes HQE (Haute Qualité Environnementale) et classé ERP (Établissement Recevant du Public), se distingue par une structure métallique, une isolation renforcée et des vitrages isolants. Les espaces sont éclairés par des dispositifs à basse consommation et entourés d'espaces verts. Le site dispose de 53 places de stationnement, dont 2 réservées aux PMR, et d'un local à vélos couvert et sécurisé.
Ils sont proposés à la vente à 2 410 HT/m² ou à la location de 216 à 238 HT/HC/m²/an.
Voir plus
Afficher les consommations énergétiques
Localisation et transport aux alentours
Favoris
Exporter
Appeler
Contacter
Signaler cette annonce
