Arthur Loyd Bretagne est une société de conseil en immobilier d'entreprise de la métropole brestoise. Spécialiste de l’immobilier d’entreprise sur le Finistère, les Côtes-d’Armor, l’Ille et Vilaine ...
En savoir plus

260 m²
Loyer sur demande
Location bureau - 260 m²
Brest (29200)
Dernière mise à jour : Il y a 2 jours
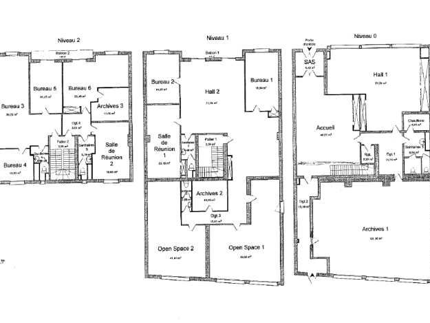
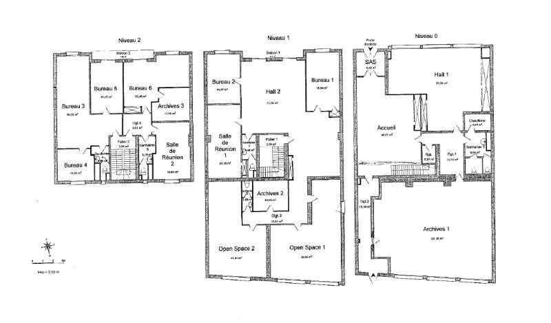
A LOUER - PLATEAU DE BUREAUX 260 M² - PORT DE COMMERCE DE BREST
L'agence Arthur Loyd vous propose à la location un plateau de bureaux de 260 m², situé au sein d'un bâtiment en monopropriété. Cet espace est idéal pour les entreprises cherchant à s'implanter dans un cadre de travail agréable et fonctionnel.
Superficie : 260 m², offrant un espace spacieux et lumineux pour vos activités professionnelles.
Open Spaces : Plusieurs espaces ouverts, parfaits pour le travail collaboratif et les échanges en équipe.
Bureaux Cloisonnés : Des bureaux privés pour un travail calme et confidentiel.
Salle de Réunion : Une salle de réunion aménagée pour accueillir vos équipes ou clients dans des conditions optimales.
Balcon avec Vue sur Mer : Un balcon offrant une vue dégagée sur la mer, apportant un cadre de travail agréable et valorisant.
Avantages :
Stationnement : Six places de parking privatives sur un parking sécurisé, entièrement clôturé et accessible via un portail.
Environnement Professionnel : Un bâtiment en monopropriété, assurant une gestion simplifiée et un environnement maîtrisé.
Emplacement : Un cadre de travail exceptionnel avec une vue sur mer, idéal pour inspirer et motiver vos équipes.
Pour plus d'informations ou pour organiser une visite, contactez-nous dès aujourd'hui. Ne manquez pas cette opportunité de vous installer dans un espace de bureaux bien équipé et offrant un cadre de travail unique.
Impôt Foncier : 3639 €/en 2024
Dépôt de garantie : 2 mois de loyer HT/HC
Prestations :
Accessibilité:
Bus Les Iles (23, 29, 30, 90, 5), Rampes (31, 2)
SNCF Brest (France)
Tram Château (A), Jean Moulin (C)
Les informations sur les risques auxquels ce bien est exposé sont disponibles sur le site Géorisques : www.georisques.gouv.fr
L'agence Arthur Loyd vous propose à la location un plateau de bureaux de 260 m², situé au sein d'un bâtiment en monopropriété. Cet espace est idéal pour les entreprises cherchant à s'implanter dans un cadre de travail agréable et fonctionnel.
Superficie : 260 m², offrant un espace spacieux et lumineux pour vos activités professionnelles.
Open Spaces : Plusieurs espaces ouverts, parfaits pour le travail collaboratif et les échanges en équipe.
Bureaux Cloisonnés : Des bureaux privés pour un travail calme et confidentiel.
Salle de Réunion : Une salle de réunion aménagée pour accueillir vos équipes ou clients dans des conditions optimales.
Balcon avec Vue sur Mer : Un balcon offrant une vue dégagée sur la mer, apportant un cadre de travail agréable et valorisant.
Avantages :
Stationnement : Six places de parking privatives sur un parking sécurisé, entièrement clôturé et accessible via un portail.
Environnement Professionnel : Un bâtiment en monopropriété, assurant une gestion simplifiée et un environnement maîtrisé.
Emplacement : Un cadre de travail exceptionnel avec une vue sur mer, idéal pour inspirer et motiver vos équipes.
Pour plus d'informations ou pour organiser une visite, contactez-nous dès aujourd'hui. Ne manquez pas cette opportunité de vous installer dans un espace de bureaux bien équipé et offrant un cadre de travail unique.
| Étage | Type | Surfaces | Dispo | Loyer | Charges | Type de bailRév. annuelle |
|---|---|---|---|---|---|---|
| 1 | Bureaux | 260 | Août 2025 |
Impôt Foncier : 3639 €/en 2024
Dépôt de garantie : 2 mois de loyer HT/HC
Prestations :
Accessibilité:
Bus Les Iles (23, 29, 30, 90, 5), Rampes (31, 2)
SNCF Brest (France)
Tram Château (A), Jean Moulin (C)
Les informations sur les risques auxquels ce bien est exposé sont disponibles sur le site Géorisques : www.georisques.gouv.fr
Voir plus
Afficher les consommations énergétiques
Favoris
Exporter
Appeler
Contacter
Signaler cette annonce










