L’équipe Bureaux Rive Gauche Sud Ouest vous accompagne dans tous vos projets immobiliers. Comme une centaine de clients l’an dernier, laissez-vous guider par nos 23 consultants spécialistes du sect ...
En savoir plus

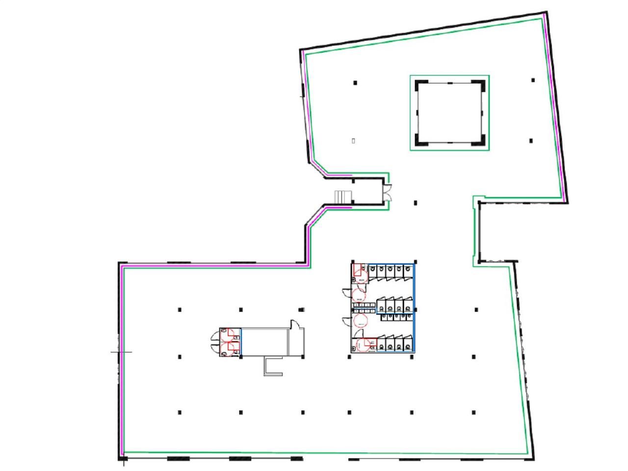
1 426 m²
HT HC
Location bureau - 1426 m²
Boulogne-Billancourt (92100)
Dernière mise à jour : Aujourd'hui
Dans un immeuble récent, BNP PARIBAS REAL ESTATE vous propose une surface de bureaux de 1400 m² environ qui sera livrée par le bailleur rénovée et entièrement décloisonnée. Le lot dispose d'un patio privatif ainsi que d'une terrasse sur l'arrière et de parkings en sous-sol. La surface est classée ERP 4 et peut accueillir 200 personnes.
Disponibilité: Immédiate
Honoraires: Nous consulter. à la signature du bail
Honoraires: Nous consulter. à la signature du bail
| Fiche technique du bien | |
|---|---|
| Métro | M10 Boulogne Pont de St Cloud |
| Gare | Saint Cloud |
| Parking(s) | Accès direct par ascenseur |
| Climatisation | Oui |
| Restauration | Grande cuisine aménagée |
| Sécurité | Gardiennage |
| Hall d'accueil | Oui |
| Salle informatique | Oui |
| Câblage informatique | Oui |
| Aménagement des bureaux | Cloisonnés/Ouverts cloisons sèches |
| Faux plafond | Oui |
| Sol bureaux | PVC |
| Sanitaire(s) | Privatif(s) |
| Autre élément bureau | Travaux à prévoir |
| Autre élément bureau | Local reprographie |
Voir plus
Afficher les consommations énergétiques
Favoris
Exporter
Appeler
Contacter
Signaler cette annonce
