Conseil en immobilier d'entreprise, Cushman & Wakefield est un acteur incontournable au rayonnement international. Cushman & Wakefield offre des solutions dans toutes les étapes que comporte un p ...
En savoir plus





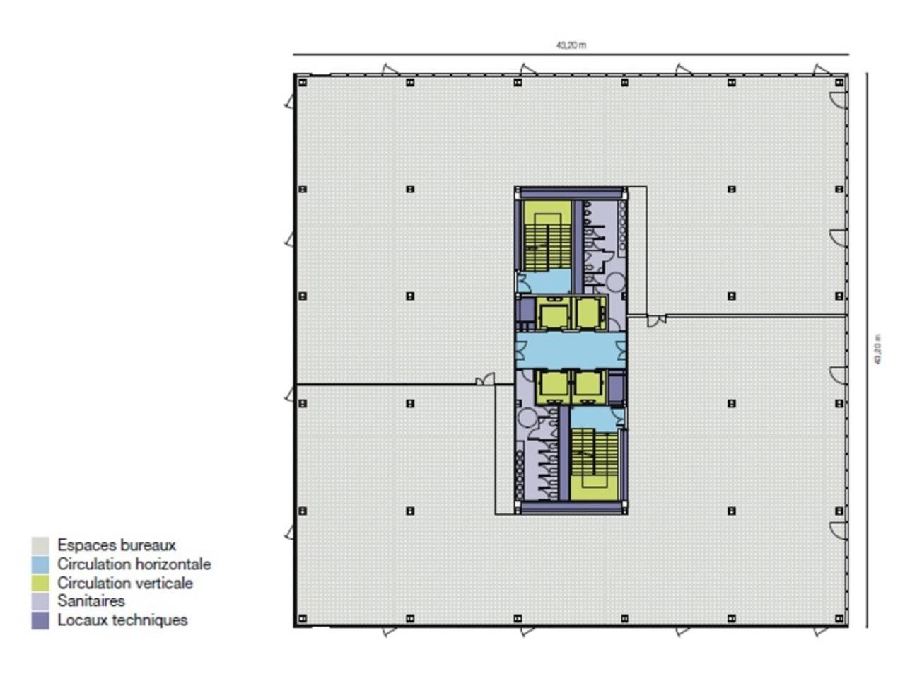
10 117 m² divisible dès 124 m²
HT HC
ARCS DE SEINE - Location bureau - 10117 m²
Boulogne-Billancourt (92100)
Dernière mise à jour : Il y a 2 mois
Arcs de Seine - Des bureaux premium et full services à Boulogne-Billancourt
Immeuble ARCS DE SEINE
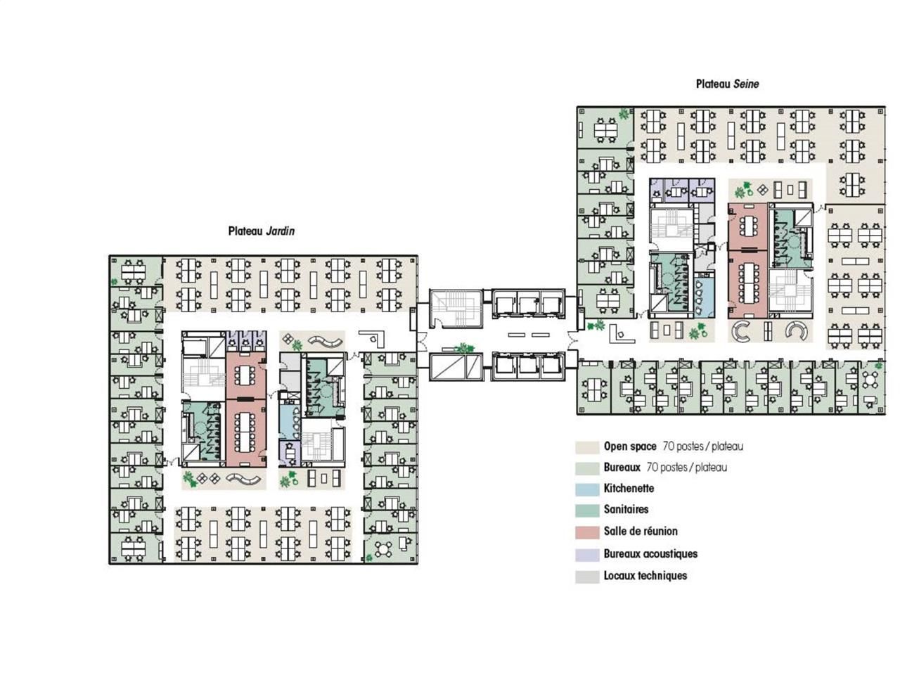
Cushman & Wakefield vous propose 9 118 m² de bureaux divisibles à partir de 124 m², disponibles immédiatement au sein du complexe Arcs de Seine, un ensemble moderne conçu par le cabinet d'architectes SOM avec des vues exceptionnelles sur la Seine.
Idéalement situé à Boulogne-Billancourt, à proximité immédiate du périphérique et parfaitement desservi par les transports en commun (métro ligne 9, RER C, tram T2), Arcs de Seine offre un environnement de travail exceptionnel dans un cadre verdoyant.
Des services haut de gamme pour vos équipes :
Restaurant d'entreprise, restaurant esprit Food Court avec enseignes variées, click & collect, frigos connectés.
Auditorium de 298 places.
Business center avec de nombreuses salles de réunion.
Salle de sport, espaces détente.
Contrôle d'accès sécurisé, PC sécurité, monte-charge et ascenseurs haute capacité
Surfaces disponibles :
Bâtiment A : 7 315 m² (plateaux jusqu'à 2 900 m²)
Bâtiment B : 482 m²
Bâtiment C : 1 321 m²
Total : 9 118 m²
Contactez nos équipes pour organiser une visite et découvrir cette opportunité unique à Boulogne-Billancourt.
Impôt Foncier : 25,43 €//m²/an
Régime Fiscal : T.V.A.
Dépôt de garantie : 3 mois de loyer HT/HC
Paiement Loyer : Trimestriel
Honoraires : à la charge du preneur
Taxe Bureau : 22,96 €/m²/an
Information sur le Bail :
Loyer archives : 250 euros/m²/an Total charges récupérables (2026) : 77,73 euros/m²
Prestations :
Accessibilité:
Métro Porte de Saint-Cloud (ligne 9)
RER Issy-Val de Seine (RER C)
Tram Issy Val de Seine (Tram 2)
Bus Lignes 126-189
Accès routier Bd périphérique à 200 m
Les informations sur les risques auxquels ce bien est exposé sont disponibles sur le site Géorisques : www.georisques.gouv.fr
Immeuble ARCS DE SEINE
Cushman & Wakefield vous propose 9 118 m² de bureaux divisibles à partir de 124 m², disponibles immédiatement au sein du complexe Arcs de Seine, un ensemble moderne conçu par le cabinet d'architectes SOM avec des vues exceptionnelles sur la Seine.
Idéalement situé à Boulogne-Billancourt, à proximité immédiate du périphérique et parfaitement desservi par les transports en commun (métro ligne 9, RER C, tram T2), Arcs de Seine offre un environnement de travail exceptionnel dans un cadre verdoyant.
Des services haut de gamme pour vos équipes :
Restaurant d'entreprise, restaurant esprit Food Court avec enseignes variées, click & collect, frigos connectés.
Auditorium de 298 places.
Business center avec de nombreuses salles de réunion.
Salle de sport, espaces détente.
Contrôle d'accès sécurisé, PC sécurité, monte-charge et ascenseurs haute capacité
Surfaces disponibles :
Bâtiment A : 7 315 m² (plateaux jusqu'à 2 900 m²)
Bâtiment B : 482 m²
Bâtiment C : 1 321 m²
Total : 9 118 m²
Contactez nos équipes pour organiser une visite et découvrir cette opportunité unique à Boulogne-Billancourt.
| Étage | Type | Surfaces | Dispo | Loyer | Charges | Type de bailRév. annuelle |
|---|---|---|---|---|---|---|
| 7 | Bureaux | 1481 | 480 HT/HC/m²/an | 73 HT/m²/an | 3-6-9 ansSur l'indice ILAT | |
| 7 | Bureaux | 1452 | 480 HT/HC/m²/an | 73 HT/m²/an | 3-6-9 ansSur l'indice ILAT | |
| 6 | Bureaux | 2933 | 480 HT/HC/m²/an | 73 HT/m²/an | 3-6-9 ansSur l'indice ILAT | |
| 4 | Bureaux | 676 | 480 HT/HC/m²/an | 73 HT/m²/an | 3-6-9 ansSur l'indice ILAT | |
| 2 | Bureaux | 678 | 460 HT/HC/m²/an | 73 HT/m²/an | 3-6-9 ansSur l'indice ILAT | |
| 1 | Bureaux | 1452 | 430 HT/HC/m²/an | 73 HT/m²/an | 3-6-9 ansSur l'indice ILAT | |
| RdC | Bureaux | 124 | 430 HT/HC/m²/an | 73 HT/m²/an | 3-6-9 ansSur l'indice ILAT | |
| 4 | Bureaux | 971 | 480 HT/HC/m²/an | 73 HT/m²/an | 3-6-9 ansSur l'indice ILAT | |
| RdC | Bureaux | 350 | 480 HT/HC/m²/an | 73 HT/m²/an | 3-6-9 ansSur l'indice ILAT | |
| Parkings | 2000 HT/HC/U/an | 3-6-9 ansSur l'indice ILAT |
Impôt Foncier : 25,43 €//m²/an
Régime Fiscal : T.V.A.
Dépôt de garantie : 3 mois de loyer HT/HC
Paiement Loyer : Trimestriel
Honoraires : à la charge du preneur
Taxe Bureau : 22,96 €/m²/an
Information sur le Bail :
Loyer archives : 250 euros/m²/an Total charges récupérables (2026) : 77,73 euros/m²
Prestations :
- Arcs de Seine est un ensemble de bureaux modernes conçu par le cabinet d'architectes SOM
- 3 bâtiments indépendants autour d'un parc verdoyant, visibilité exceptionnelle sur l'axe majeur de la Seine
- Hauteur libre de dalle à dalle : 2.50 m à 3.28 m dans l'immeuble A - 2.70 m dans l'immeuble B - 2.70 m à 3.00 m dans l'immeuble C
- Trame : 1.35 m
- Climatisation par ventilo convecteur
- Gestion Technique Centralisé
- Faux plancher technique et faux plafonds en fibre minérale
- Aire de livraison individualisée par immeuble
- Tous les niveaux en superstructure sont desservis par monte-charge
- Ascenseurs immeuble A : batterie sextuplex - Immeuble B et C : batterie quadruplex
- Nouveau restaurant esprit Food Court Cafétéria avec de nombreuses enseignes : Lenôtre, Wuwej, Columbus café,...
- Comptoir en Click & Collect - Frigos connectés 24h/24 - Stand de restauration éphémère - Stand thématique pays qui change chaque mois
- Auditorium de 298 places (bâtiment A)
- Fitness en RdC côté jardin
- Contrôle d'accès par badge
- Accès coursiers limité au local spécifique
- Contrôle vidéo
- Rénovation du Hall du bâtiment A
- Rénovation du bâtiment C
- Surface RDC : 474 m²
Accessibilité:
Métro Porte de Saint-Cloud (ligne 9)
RER Issy-Val de Seine (RER C)
Tram Issy Val de Seine (Tram 2)
Bus Lignes 126-189
Accès routier Bd périphérique à 200 m
Les informations sur les risques auxquels ce bien est exposé sont disponibles sur le site Géorisques : www.georisques.gouv.fr
Voir plus
Afficher les consommations énergétiques
Localisation et transport aux alentours
- Porte de Saint-Cloud494m (7min à pied)9
Favoris
Exporter
Appeler
Contacter
Signaler cette annonce










