Conseil en immobilier d'entreprise, Cushman & Wakefield est un acteur incontournable au rayonnement international. Cushman & Wakefield offre des solutions dans toutes les étapes que comporte un p ...
En savoir plus

143 m²
HT HC
Location bureau - 143 m²
Boulogne-Billancourt (92100)
Dernière mise à jour : Il y a 4 jours
**À LOUER : Locaux Exceptionnels à Boulogne Nord**
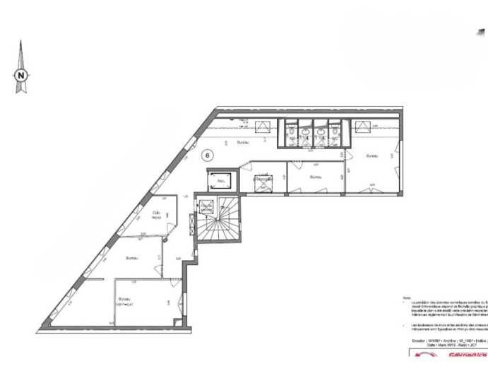
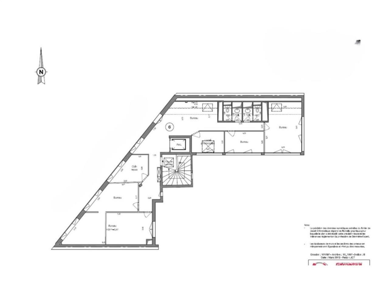
Découvrez cette surface à louer de 143m², idéalement située dans un immeuble récent à Boulogne Nord. Ces locaux, nichés au dernier étage privatif et traversant, bénéficient d'une luminosité exceptionnelle grâce à une exposition optimale. Récemment rénovés et cloisonnés, les aménagements sont en très bon état et prêts à accueillir vos activités professionnelles.
Les locaux comprennent une salle de réunion, différents bureaux privatifs et un open-space ainsi qu'une climatisation réversible . Vous disposerez également de trois places de parking et de locaux d'archive en sous-sol, offrant un espace de stockage supplémentaire.
L'immeuble est équipé d'un ascenseur desservant tous les étages, facilitant ainsi l'accès à vos bureaux et de parties communes en excellent état. De plus, les charges communes sont maîtrisées. Situés à moins de 3 minutes à pied du métro Boulogne - Pont de Saint-Cloud, ces locaux bénéficient d'une excellente accessibilité.
Ne manquez pas cette opportunité unique de louer des locaux d'exception dans un quartier prisé. Contactez-nous dès aujourd'hui pour plus d'informations et pour organiser une visite !
Impôt Foncier : 27 €//m²/an
Régime Fiscal : T.V.A.
Dépôt de garantie : 3 mois de loyer HT/HC
Paiement Loyer : Trimestriel
Honoraires : à la charge du preneur
Taxe Bureau : 24 €/m²/an
Prestations :
Accessibilité:
Métro Boulogne Pont de Saint-Cloud (ligne 10)
Bus Lignes 52-72-123-126-175-260-467-SUBB
Les informations sur les risques auxquels ce bien est exposé sont disponibles sur le site Géorisques : www.georisques.gouv.fr
Découvrez cette surface à louer de 143m², idéalement située dans un immeuble récent à Boulogne Nord. Ces locaux, nichés au dernier étage privatif et traversant, bénéficient d'une luminosité exceptionnelle grâce à une exposition optimale. Récemment rénovés et cloisonnés, les aménagements sont en très bon état et prêts à accueillir vos activités professionnelles.
Les locaux comprennent une salle de réunion, différents bureaux privatifs et un open-space ainsi qu'une climatisation réversible . Vous disposerez également de trois places de parking et de locaux d'archive en sous-sol, offrant un espace de stockage supplémentaire.
L'immeuble est équipé d'un ascenseur desservant tous les étages, facilitant ainsi l'accès à vos bureaux et de parties communes en excellent état. De plus, les charges communes sont maîtrisées. Situés à moins de 3 minutes à pied du métro Boulogne - Pont de Saint-Cloud, ces locaux bénéficient d'une excellente accessibilité.
Ne manquez pas cette opportunité unique de louer des locaux d'exception dans un quartier prisé. Contactez-nous dès aujourd'hui pour plus d'informations et pour organiser une visite !
| Étage | Type | Surfaces | Dispo | Loyer | Charges | Type de bailRév. annuelle |
|---|---|---|---|---|---|---|
| 5 | Bureaux | 143 | 350 HT/HC/m²/an | 39 HT/m²/an | 3-6-9 ansSur l'indice ILAT | |
| SS | Arch./Reser. | 31 | 90 HT/HC/m²/an | 580 /an | 3-6-9 ansSur l'indice ILAT | |
| Parkings | 1400 HT/HC/place/an | 150 /an/U | 3-6-9 ansSur l'indice ILAT |
Impôt Foncier : 27 €//m²/an
Régime Fiscal : T.V.A.
Dépôt de garantie : 3 mois de loyer HT/HC
Paiement Loyer : Trimestriel
Honoraires : à la charge du preneur
Taxe Bureau : 24 €/m²/an
Prestations :
- Immeuble récent situé dans un quartier recherché de Boulogne Nord
- Interphone
- Parties communes de bon standing
- Ascenseur desservant directement les bureaux
- Fibre optique
- Locaux en excellent état
- Dernier étage privatif et traversant offrant une grande luminosité
- Locaux composés d'un accueil, plusieurs bureaux cloisonnés, salle de réunion, sanitaires privatifs
- Cloisonnement amovible permettant un agencement "facile" des espaces
- Climatisation réversible
- Possibilité d'aménager un espace cuisine
- Possibilité de conserver le mobilier en place
Accessibilité:
Métro Boulogne Pont de Saint-Cloud (ligne 10)
Bus Lignes 52-72-123-126-175-260-467-SUBB
Les informations sur les risques auxquels ce bien est exposé sont disponibles sur le site Géorisques : www.georisques.gouv.fr
Voir plus
Afficher les consommations énergétiques
Localisation et transport aux alentours
- Boulogne Pont de Saint-Cloud535m (8min à pied)10
Favoris
Exporter
Appeler
Contacter
Signaler cette annonce










