Conseil en immobilier d'entreprise, Cushman & Wakefield est un acteur incontournable au rayonnement international. Cushman & Wakefield offre des solutions dans toutes les étapes que comporte un p ...
En savoir plus

43 059 m² divisible dès 6 005 m²
HT HC
Location activité/entrepôt - 43059 m²
Fos-sur-Mer (13270)
Dernière mise à jour : Il y a 2 mois
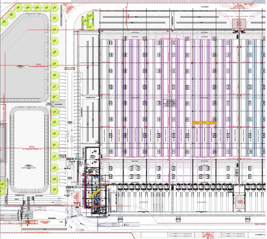
Nous vous proposons à la location un bâtiment logistique à louer, entièrement neuf et indépendant sur la commune de FOS SUR MER (13270).
Il bénéficie d'une situation géographique idéale du fait de sa proximité avec l'aéroport de Marseille ainsi que des autoroutes A54 et A55.
Le site est doté de 70 postes à quai équipés d'autodocks. Vous disposerez également d'une hauteur libre égale à 11,90 mètres et d'une charge au sol de 5 tonnes / m².
Parking VL : 73 places
Stationnement PL : 8 places
Régime Fiscal : T.V.A.
Dépôt de garantie : 3 mois de loyer HT/HC
Paiement Loyer : Trimestriel
Honoraires : Nous consulter
Information sur le Bail :
Loyer global : nous consulter Charges prévisionnelles hors fluides : 12,26 euros HT/m²/an Fluides (élec+gaz) : 4,11 eurosHT/m²/an
Prestations :
Accessibilité:
Aéroport Aéroport de Marseille
Accès routier A54 - A55
Accès routier Port de Fos-sur-Mer
Les informations sur les risques auxquels ce bien est exposé sont disponibles sur le site Géorisques : www.georisques.gouv.fr
Il bénéficie d'une situation géographique idéale du fait de sa proximité avec l'aéroport de Marseille ainsi que des autoroutes A54 et A55.
Le site est doté de 70 postes à quai équipés d'autodocks. Vous disposerez également d'une hauteur libre égale à 11,90 mètres et d'une charge au sol de 5 tonnes / m².
Parking VL : 73 places
Stationnement PL : 8 places
| Étage | Type | Surfaces | Dispo | Loyer | Charges | Type de bailRév. annuelle |
|---|---|---|---|---|---|---|
| Locaux spécifiques | 144 | Sur l'indice ILAT | ||||
| R+1 | Bureaux | 314 | Sur l'indice ILAT | |||
| RdC | Entrepôts | 11975 | Sur l'indice ILAT | |||
| RdC | Bureaux | 337 | Sur l'indice ILAT | |||
| Total Cellule Lot 1 | Entrepôts | 12770 | 56 HT/HC/m²/an | 12,26 HT/m²/an | 3-6-9 ansSur l'indice ILAT | |
| Locaux spécifiques | 146 | Sur l'indice ILAT | ||||
| Bureaux | 100 | Sur l'indice ILAT | ||||
| RdC | Entrepôts | 11946 | Sur l'indice ILAT | |||
| RdC | Entrepôts | 11939 | Sur l'indice ILAT | |||
| RdC | Entrepôts | 6005 | Sur l'indice ILAT | |||
| Total Cellule Lot 2 | Entrepôts | 30136 | 56 HT/HC/m²/an | 12,26 HT/m²/an | 3-6-9 ansSur l'indice ILAT | |
| Locaux spécifiques | 55 | Sur l'indice ILAT | ||||
| Locaux spécifiques | 52 | Sur l'indice ILAT | ||||
| Locaux techniques | 23 | Sur l'indice ILAT | ||||
| Locaux spécifiques | 23 | Sur l'indice ILAT | ||||
| Total Cellule PC | Entrepôts | 153 | 56 HT/HC/m²/an | 12,26 HT/m²/an | 3-6-9 ansSur l'indice ILAT |
Régime Fiscal : T.V.A.
Dépôt de garantie : 3 mois de loyer HT/HC
Paiement Loyer : Trimestriel
Honoraires : Nous consulter
Information sur le Bail :
Loyer global : nous consulter Charges prévisionnelles hors fluides : 12,26 euros HT/m²/an Fluides (élec+gaz) : 4,11 eurosHT/m²/an
Prestations :
- Entrepôt de classe A
- Charpente béton
- Hauteur libre : 11,90 m
- Chauffage : Hors Gel (+5°C par -7°C)
- Charge au sol : 5 t / m²
- Quais équipés d'autodocks
- Postes à quai : 70
- 1 rampe de plain-pied
- Cour de débord routière : 35 m de profondeur
- Autorisation ICPE : 1510, 1530, 1532, 2663, 2662
- Déclaration ICPE : 1436, 4320, 4321, 4330, 4331,2925,2910
- ICPE non classée : 4755, 4802
- Sprinkler ESFR
- RIA
- Alarme incendie
- Parking VL : 73 places
- Stationnement PL : 8 places
- Accès indépendants pour VL et PL
- Immeuble indépendant
- Surface RDC : 42202 m²
- Bâtiment classe :A
Accessibilité:
Aéroport Aéroport de Marseille
Accès routier A54 - A55
Accès routier Port de Fos-sur-Mer
Les informations sur les risques auxquels ce bien est exposé sont disponibles sur le site Géorisques : www.georisques.gouv.fr
Voir plus
Afficher les consommations énergétiques
Favoris
Exporter
Appeler
Contacter
Signaler cette annonce




