L’agence CBRE Lille conseille et accompagne les chefs d’entreprise dans leurs projets immobiliers quels que soient leur taille et leur secteur d’activité. Spécialistes de la transaction de bureaux, ...
En savoir plus

2 100 m²
HT HC
Location activité/entrepôt - 2100 m²
Carvin (62220)
Dernière mise à jour : Il y a 2 jours
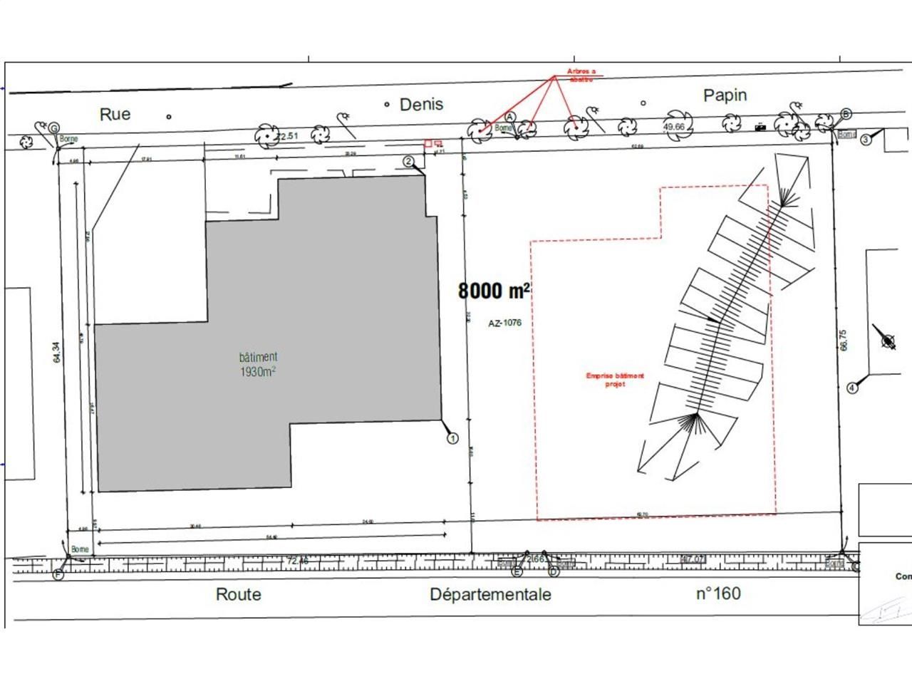
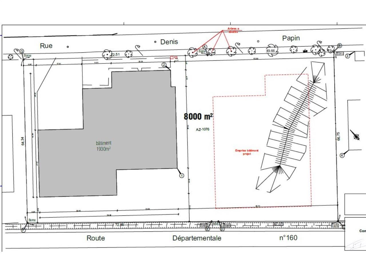
CBRE vous propose à la location, ce bâtiment d'activités de 2 100 m² sur un terrain de 8 000 m². L'entrepôt dispose de 2 portes sectionnelles, d'une hauteur sous plafond de 7 mètres et de 23 places de stationnement. Le site est clôturé et sécurisé. Idéalement situé en bordure de l'A1, n'hésitez pas à nous contacter pour de plus amples informations !
Le bâtiment est neuf et vient tout juste d'être livré ! L'accès se fait par la Rue Denis Papin.
Impôt Foncier : 11100 €/HT/an
Régime Fiscal : T.V.A.
Dépôt de garantie : 3 mois de loyer TTC
Paiement Loyer : trimestriel
Honoraires : 15% HT du loyer annuel HT HC à la charge du preneur
Prestations :
Accessibilité:
Autoroute Autoroute du Nord (A1)
Route D917
Les informations sur les risques auxquels ce bien est exposé sont disponibles sur le site Géorisques : www.georisques.gouv.fr
Le bâtiment est neuf et vient tout juste d'être livré ! L'accès se fait par la Rue Denis Papin.
| Étage | Type | Surfaces | Dispo | Loyer | Charges | Type de bailRév. annuelle |
|---|---|---|---|---|---|---|
| Activités | 1700 | Immédiate | 3-6-9 ansIndice ILAT | |||
| Activités | 400 | Immédiate | 3-6-9 ansIndice ILAT |
Impôt Foncier : 11100 €/HT/an
Régime Fiscal : T.V.A.
Dépôt de garantie : 3 mois de loyer TTC
Paiement Loyer : trimestriel
Honoraires : 15% HT du loyer annuel HT HC à la charge du preneur
Prestations :
- Alarme
- Bureaux cloisonnés
- 2 Blocs sanitaires dont 1 PMR
- Dalle béton
- Eclairage par voûte polycarbonate (zénithal)
- Faux plafond dans les bureaux
- Terrain clôturé
- 4 places de stationnement pour 2 roues à l'intérieur du bâtiment
- 23 places de stationnement (dalles gazon)
- Les charges comprennent l'assurance, l'entretien des espaces verts et l'entretien de la toiture.
- Surface terrain : 8000
- Haut. libre max. ss poutre : 7 m
- Accès bâtiment : moyens porteurs
gros porteurs - Nbr de portes plain pied : 2
- Chauffage : Gaz, Aérotherme
- Ossature : Métallique
- Couverture : Bac acier
Accessibilité:
Autoroute Autoroute du Nord (A1)
Route D917
Les informations sur les risques auxquels ce bien est exposé sont disponibles sur le site Géorisques : www.georisques.gouv.fr
Voir plus
Afficher les consommations énergétiques
Favoris
Exporter
Appeler
Contacter
Signaler cette annonce










