EVOLIS, votre partenaire en immobilier d’entreprise! Que vous soyez une entreprise, utilisateur de locaux professionnels, investisseur, ou propriétaire, EVOLIS met à votre service son expertise ...
En savoir plus

2 635 m²
Activité/Entrepôt à vendre - 2635 m²
Miribel (01700)
Dernière mise à jour : Il y a 3 jours
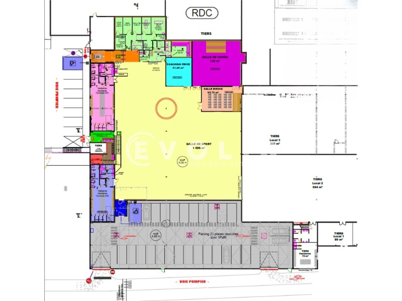
EVOLIS vous présente un local d'activités de 2 635 m² à vendre à Miribel.
Situé dans la ZI des Echets, ce bâtiment offre un accès rapide aux autoroutes A42 et A46. Il dispose de 33 places de parking, d'un accès plain-pied, de bureaux cloisonnés, de vestiaires et sanitaires, ainsi que d'une hauteur sous poutre de 4,5 à 6,5 m.
Idéal pour des activités de production ou de stockage, il est disponible immédiatement.
Impôt Foncier : 10836 €//an
Régime Fiscal : Droit d'enregistrement
Honoraires : 5% HT du prix de vente HD à la charge de l'acquéreur
Prestations :
Accessibilité:
Autoroute A46 / A432
Route Rocade Est
SNCF Les Échets (France)
Aéroport Lyon Saint Exupéry
Les informations sur les risques auxquels ce bien est exposé sont disponibles sur le site Géorisques : www.georisques.gouv.fr
Situé dans la ZI des Echets, ce bâtiment offre un accès rapide aux autoroutes A42 et A46. Il dispose de 33 places de parking, d'un accès plain-pied, de bureaux cloisonnés, de vestiaires et sanitaires, ainsi que d'une hauteur sous poutre de 4,5 à 6,5 m.
Idéal pour des activités de production ou de stockage, il est disponible immédiatement.
| Étage | Type | Surfaces | Dispo | Prix(m²) | Charges | Honoraires | Fiscal |
|---|---|---|---|---|---|---|---|
| RDC et R+1 | Activités | 2635 | Immédiate | n.c. | n.c. | 5% HT du prix de vente HD à la charge de l'acquéreur | Droit d'enregistrement |
| Parkings | Immédiate | n.c. | n.c. | 5% HT du prix de vente HD à la charge de l'acquéreur | Droit d'enregistrement | ||
| Total Cellule | Activités | 2635 | Immédiate | 755,22 m² HD | n.c. | 5% HT du prix de vente HD à la charge de l'acquéreur | Droit d'enregistrement |
Impôt Foncier : 10836 €//an
Régime Fiscal : Droit d'enregistrement
Honoraires : 5% HT du prix de vente HD à la charge de l'acquéreur
Prestations :
- Accès et circulation :
- Accès plain-pied et pour camionnettes
- Accès PMR (Personnes à Mobilité Réduite)
- Porte coulissante d'entrée
- Trappe de désenfumage
- Parking : 33 places
- Bureaux et espaces de travail :
- Bureaux cloisonnés
- Local informatique
- Archives
- Plinthes périphériques
- Éclairage adapté
- Ventilation d'air rafraîchi
- Climatisation
- Sanitaires et vestiaires :
- Vestiaires
- Sanitaires
- Sanitaires PMR (Personnes à Mobilité Réduite)
- Normes et sécurité :
- Conformité aux normes ERP
- Charpente métallique et béton
- Isolation thermique et phonique
- Couverture en bac acier
- Dalle béton (sol)
- Systèmes techniques :
- Arrivée des lignes téléphoniques
- Alimentation électrique : tarif jaune
- Puissance électrique : triphasé
- Chauffage : gaz par aérothermes
- Gaz
- 2 portes sectionnelles électriques
- Hauteur et volume :
- Hauteur libre sous poutre : min. 4,5 mètres, max. 6,5 mètres
Accessibilité:
Autoroute A46 / A432
Route Rocade Est
SNCF Les Échets (France)
Aéroport Lyon Saint Exupéry
Les informations sur les risques auxquels ce bien est exposé sont disponibles sur le site Géorisques : www.georisques.gouv.fr
Voir plus
Afficher les consommations énergétiques
Localisation et transport aux alentours
Favoris
Exporter
Appeler
Contacter
Signaler cette annonce





