A l’appui d’un réseau leader à l’international, I&L Solutions est une équipe de plus de 70 professionnels spécialisés en immobilier Logistique et Industriel au service des investisseurs, des propri ...
En savoir plus

4 052 m²
Prix sur demande
Activité/Entrepôt à vendre - 4052 m²
Domont (95330)
Dernière mise à jour : Hier
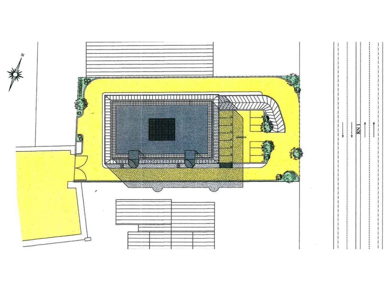
Rare sur le secteur ! CBRE vous propose à vendre un local d'activités dans un bâtiment indépendant situé sur la commune de Domont (95), dans le département de Val d'oise, à proximité de l'autoroute A15. Ce local industriel dispose d'une architecture et une configuration atypique idéale pour accueillir un siège social, un show-room, un centre de formation ou un laboratoire. Belle surface d'environ 4 000 m² non divisibles.
Vente idéal pour le développement de vos activités professionnelles. Disponibilité immédiate.
Mener à bien son projet d'implantation pour une activité industrielle doit passer par des locaux adaptés à ses besoins. Si cet entrepôt/local d'activités à vendre dans le 95 vous intéresse ou si vous souhaitez obtenir plus d'informations, n'hésitez pas à me contacter aujourd'hui pour organiser une visite et bénéficier de toutes les informations nécessaires pour votre projet immobilier.
En tant qu'expert en immobilier industriel, je suis à votre disposition pour vous aider à trouver le bien disponible à la vente ou à la location, adapté à vos activités professionnelles et à votre coeur de métier, que ce soit un entrepôt, un local industriel, de stockage ou bien un local d'activités.
Régime Fiscal : Droits d'enregistrement
Honoraires : 5% HT du prix de vente HD à la charge de l'acquéreur
Prestations :
Accessibilité:
Transilien Domont (H) (à 5 min à pied)
Route D301 - D11
Les informations sur les risques auxquels ce bien est exposé sont disponibles sur le site Géorisques : www.georisques.gouv.fr
Vente idéal pour le développement de vos activités professionnelles. Disponibilité immédiate.
Mener à bien son projet d'implantation pour une activité industrielle doit passer par des locaux adaptés à ses besoins. Si cet entrepôt/local d'activités à vendre dans le 95 vous intéresse ou si vous souhaitez obtenir plus d'informations, n'hésitez pas à me contacter aujourd'hui pour organiser une visite et bénéficier de toutes les informations nécessaires pour votre projet immobilier.
En tant qu'expert en immobilier industriel, je suis à votre disposition pour vous aider à trouver le bien disponible à la vente ou à la location, adapté à vos activités professionnelles et à votre coeur de métier, que ce soit un entrepôt, un local industriel, de stockage ou bien un local d'activités.
| Étage | Type | Surfaces | Dispo | Prix(m²) | Charges | Honoraires | Fiscal |
|---|---|---|---|---|---|---|---|
| SS | Activités | 850,47 | Immédiate | n.c. | n.c. | 5% HT du prix de vente HD à la charge de l'acquéreur | Droits d'enregistrement |
| RDC | Activités | 830,03 | Immédiate | n.c. | n.c. | 5% HT du prix de vente HD à la charge de l'acquéreur | Droits d'enregistrement |
| 1 | Bureaux | 275,48 | Immédiate | n.c. | n.c. | 5% HT du prix de vente HD à la charge de l'acquéreur | Droits d'enregistrement |
| 2 | Bureaux | 833,92 | Immédiate | n.c. | n.c. | 5% HT du prix de vente HD à la charge de l'acquéreur | Droits d'enregistrement |
| 3 | Bureaux | 760,36 | Immédiate | n.c. | n.c. | 5% HT du prix de vente HD à la charge de l'acquéreur | Droits d'enregistrement |
| 4 | Bureaux | 502,06 | Immédiate | n.c. | n.c. | 5% HT du prix de vente HD à la charge de l'acquéreur | Droits d'enregistrement |
Régime Fiscal : Droits d'enregistrement
Honoraires : 5% HT du prix de vente HD à la charge de l'acquéreur
Prestations :
- Immeuble de standing
- Parois internes en briques et parpaings
- Terrasse 360° au dernier étage
- Belle luminosité (baie vitrée)
- Patios
- Portes et huisseries de qualité supérieure, en bois
- Immeuble indépendant
- Surface RDC : 830,03 m²
- Surface terrain : 0
- Haut. libre max. ss poutre : 5 m
- Accès bâtiment : partie entrepôt accessible aux véhicules
Accessibilité:
Transilien Domont (H) (à 5 min à pied)
Route D301 - D11
Les informations sur les risques auxquels ce bien est exposé sont disponibles sur le site Géorisques : www.georisques.gouv.fr
Voir plus
Afficher les consommations énergétiques
Favoris
Exporter
Appeler
Contacter
Signaler cette annonce
