Cap Transactions est une agence indépendante spécialisée en immobilier d’entreprise et en fonds de commerce sur l’ensemble du territoire breton. Depuis plus de 20 ans, elle accompagne dirigeants, e ...
En savoir plus

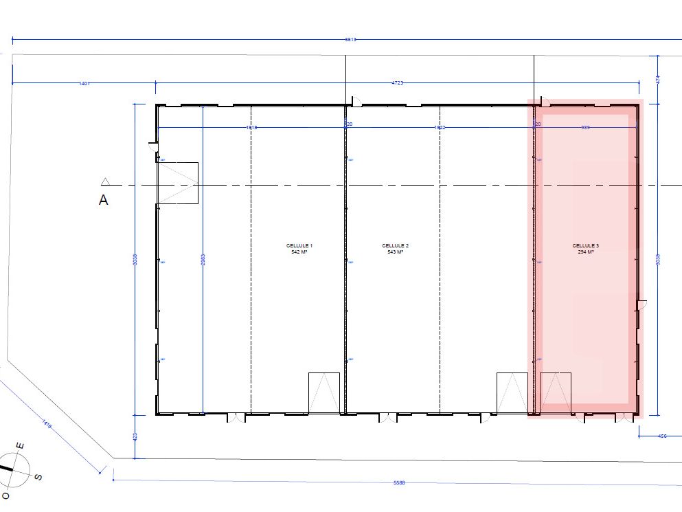
374 m²
Activité/Entrepôt à vendre - 374 m²
Caudan (56850)
Dernière mise à jour : Il y a 2 mois
A VENDRE EXCLUSIVITE LOCAL D'ACTIVITE NEUF A CAUDAN, ZONE DE KERPONT.
Proposé en exclusivité, ce local d'activité neuf se situe au sein de la zone de Kerpont à Caudan, dans un environnement professionnel dynamique et structuré.
La cellule, intégrée à un ensemble immobilier récent, offre une surface fonctionnelle avec un espace principal et une mezzanine, adaptée aux besoins d'activités artisanales, industrielles ou de stockage. Livré brut de béton avec les fluides en attente, le bien laisse une totale liberté d'aménagement. Les huisseries sont posées et le local est équipé d'une porte sectionnelle. Frais de notaire réduits.
Les + du bien :
- Local d'activité neuf
- Zone d'activités recherchée
- Surface avec mezzanine (env.)
- Porte sectionnelle
- Frais de notaire réduits
Prix de vente : 475 000 € HT
Honoraires d'agence : 33 250 € HT
Pour plus d'informations sur ce bien, contactez Julien HELLO
CAP TRANSACTIONS : 20 ans d'expertise pour vous accompagner dans votre recherche d'achat d'un LOCAL D'ACTIVITE à Caudan.
Proposé en exclusivité, ce local d'activité neuf se situe au sein de la zone de Kerpont à Caudan, dans un environnement professionnel dynamique et structuré.
La cellule, intégrée à un ensemble immobilier récent, offre une surface fonctionnelle avec un espace principal et une mezzanine, adaptée aux besoins d'activités artisanales, industrielles ou de stockage. Livré brut de béton avec les fluides en attente, le bien laisse une totale liberté d'aménagement. Les huisseries sont posées et le local est équipé d'une porte sectionnelle. Frais de notaire réduits.
Les + du bien :
- Local d'activité neuf
- Zone d'activités recherchée
- Surface avec mezzanine (env.)
- Porte sectionnelle
- Frais de notaire réduits
Prix de vente : 475 000 € HT
Honoraires d'agence : 33 250 € HT
Pour plus d'informations sur ce bien, contactez Julien HELLO
CAP TRANSACTIONS : 20 ans d'expertise pour vous accompagner dans votre recherche d'achat d'un LOCAL D'ACTIVITE à Caudan.
Voir plus
Afficher les consommations énergétiques
Localisation et transport aux alentours
Favoris
Exporter
Appeler
Contacter
Signaler cette annonce





