Arnold Entreprise est une agence immobilière spécialiste de la transaction et location de bureaux, de locaux commerciaux, d'entrepôts, de locaux d'activités, d'hôtels, d'ateliers, de terrains et de ...
En savoir plus

300 m²
Activité/Entrepôt à vendre - 300 m²
Saint-Avé (56890)
Dernière mise à jour : Il y a 2 jours
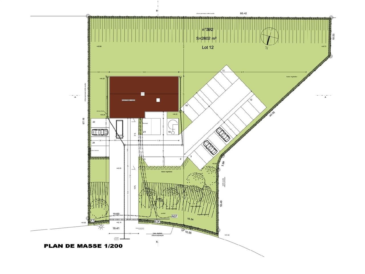
Location vente Local d'activité 300 m2 SAINT-AVÉ
Située dans la ZAC du Poteau à Saint-Avé, nous vous proposons à la location un bâtiment indépendant niché dans un cadre verdoyant. Vous y découvrirez un entrepôt d'environ 150 m² et des bureaux de même superficie. Profitez d'un emplacement stratégique à proximité immédiate de la voie rapide. Nombreuses places de stationnement. Possibilité d'extension.
Impôt Foncier : 1763 €//an
Régime Fiscal : TVA
Dépôt de garantie : 3 mois de loyer HT/HC
Honoraires : 6 % HT du prix net vendeur à la charge de l'acquéreur
Prestations :
Les informations sur les risques auxquels ce bien est exposé sont disponibles sur le site Géorisques : www.georisques.gouv.fr
Située dans la ZAC du Poteau à Saint-Avé, nous vous proposons à la location un bâtiment indépendant niché dans un cadre verdoyant. Vous y découvrirez un entrepôt d'environ 150 m² et des bureaux de même superficie. Profitez d'un emplacement stratégique à proximité immédiate de la voie rapide. Nombreuses places de stationnement. Possibilité d'extension.
| Étage | Type | Surfaces | Dispo | Prix(m²) | Charges | Honoraires | Fiscal |
|---|---|---|---|---|---|---|---|
| RDC | Activités | 150 | Immédiate | n.c. | n.c. | 6 % HT du prix net vendeur à la charge de l'acquéreur | TVA |
| RDC | Activités | 150 | Immédiate | n.c. | n.c. | 6 % HT du prix net vendeur à la charge de l'acquéreur | TVA |
Impôt Foncier : 1763 €//an
Régime Fiscal : TVA
Dépôt de garantie : 3 mois de loyer HT/HC
Honoraires : 6 % HT du prix net vendeur à la charge de l'acquéreur
Prestations :
- Local d'une superficie de 300 m2 environ composé :
- 150 m2 de bureaux
- 150 m2 entrepôt
- Site clos et sécurisé
- 24 places de stationnement extérieur
- Possibilité d'extension
- Surface RDC : 300 m²
Les informations sur les risques auxquels ce bien est exposé sont disponibles sur le site Géorisques : www.georisques.gouv.fr
Voir plus
Afficher les consommations énergétiques
Localisation et transport aux alentours
Favoris
Exporter
Appeler
Contacter
Signaler cette annonce
