Spécialiste de Toulouse, LOCO² est une société de conseil en immobilier d'entreprise qui accompagne ses clients à l'achat ou à la location, qu'ils soient propriétaires, investisseurs ou utilisateur ...
En savoir plus

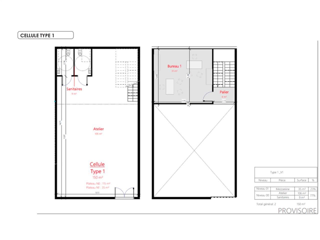
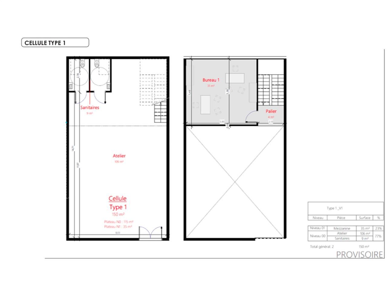
150 m²
Activité/Entrepôt à vendre - 150 m²
Le Fauga (31410)
Dernière mise à jour : Il y a 2 jours
Local d'activité à vendre - MURET Sud LOCO² vous propose d'acquérir votre surface d'activité sur la commune du FAUGA avec accès immédiat à l'A64.
Il s'agit du programme neuf à construire appelé LA MANDRE.
Possibilité d'acquérir un ou plusieurs lots ou de réaliser un bâtiment clé en main.
Certification BREEAM ( Récompense l'architecture et les méthodes les plus écologiques).
Tableau des surfaces:
Aspects financiers :
Description honoraires : 7 % HT du prix de vente HT à la charge de l'acquéreur
Taxe foncière : €
Il s'agit du programme neuf à construire appelé LA MANDRE.
Possibilité d'acquérir un ou plusieurs lots ou de réaliser un bâtiment clé en main.
Certification BREEAM ( Récompense l'architecture et les méthodes les plus écologiques).
Tableau des surfaces:
| Niveau | Nom | Surface | Commentaires | Loyer | Prix |
| Local d'activité | 150m² m² | dont 44 m² de bur/L.soc | 1700 €/HT/m² | ||
Aspects financiers :
Description honoraires : 7 % HT du prix de vente HT à la charge de l'acquéreur
Taxe foncière : €
Voir plus
Afficher les consommations énergétiques
Localisation et transport aux alentours
Favoris
Exporter
Appeler
Contacter
Signaler cette annonce







