Notre agence est spécialisée en immobilier professionnel, commercial et d'entreprise. Notre équipe est composée de 5 professionnels. Fort d'une expérience sur le marché depuis 14 ans, nous accompag ...
En savoir plus

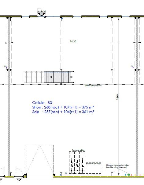
361 m²
Activité/Entrepôt à vendre - 361 m²
Ifs (14123)
Dernière mise à jour : Il y a 4 jours
Local d'activité sud de CAEN de 361 m² A vendre local d'activité neuf, de qualité, situé aux abords du bd périphérique sud. Livré brut de béton, fluides en attente, mezzanine de 104 m². Porte sectionnelle, porte vitrée. 2 Places de parking privatives. Prix de vente 404.250 € HT, frais de notaire réduits.
Aspects financiers :
Description honoraires :
Taxe foncière : €
Aspects financiers :
Description honoraires :
Taxe foncière : €
Voir plus
Afficher les consommations énergétiques
Favoris
Exporter
Appeler
Contacter
Signaler cette annonce


