BNP Paribas Real Estate Lille, qui revendique plus de 40 ans de présence sur le marché lillois, est composé d''une équipe expérimentée aux expertises diversifiées. Elle est principalement composée ...
En savoir plus

Location activité/entrepôt - 2049 m²
A la recherche d'un espace professionnel idéal ? Découvrez ce local d'activité situé sur la commune de Villeneuve d'Ascq. L'actif bénéficie d'une localisation privilégiée. Idéalement situées, ses 3 cellules d'activité, offrent un accès facile aux principaux axes routiers et transports en commun, facilitant ainsi la mobilité de votre entreprise. Profitez de cette desserte optimale pour attirer vos clients et collaborateurs.
Accessibilité :
Hub de transports des Gares de Lille à environ 20 min en vélo
La station de métro " Fort de Mons " à quelques minutes à pied
Arrêt de bus "Chanterelle" à 10 m soit 6 min à pied
Gare TER "Pont de bois" à quelques minutes en vélo
Un accès rapide aux axes routiers et autoroutiers de la métropole : VRU, A1, A22, A23, A25, A27
L'actif est idéal pour faire du stockage et de la logistique urbaine. Il dispose également de 120 places de parking communes en extérieur.
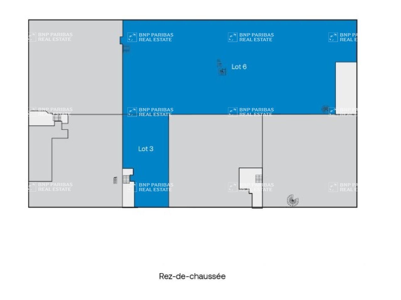
Lot 6 :
Surface disponible : 1 816 m²
Entrepôt : 1 347 m² (5 portes sectionnelles)
Bureaux : 469 m²
Loyer : 168 888 € HT/HC/an
Lot 3 :
Surface disponible: 233 m²
Entrepôt : 202 m² (1 porte sectionnelle)
Bureaux : 31 m²
Loyer : 20.038 € HT/HC/an
Disponibilité immédiate
Pour étudier l'implantation de votre projet sur ce site, appelez-nous pour organiser une visite !
Trouvez votre futur local, entrepôt, hangar, cellule de stockage ou votre foncier dans les parcs d'activités de Lille et du Nord Pas de Calais. Disponibles à la location ou à la vente, nos offres s'adaptent à vos besoins en cellules industrielles ou artisanales. Ne manquez pas nos opportunités sur les surfaces à louer ou à vendre de la Métropole Lilloise.
Toutes nos offres sur https://www.bnppre.fr/local-activite/nord-59/
Disponibilité: ImmédiateHonoraires: 15% HT du loyer HT/HC. à la signature du bail
| Fiche technique du bien | |
|---|---|
| Métro | Station "Fort de Mons" - Ligne M2 3 km |
| Bus | Arrêt "Chanterelle" à 6 min à pied et 2 min en vélo - Lignes : 36 et L6 1 m |
| TER | Gare TER "Pont de Bois" à 15 min en bus et 8 min en vélo 2 km |
| Desserte routière | Proximité A22 et A25 |
| Gare | Europe 30 min en transports en communs et 21 min en vélo 5 km |
| Gare | Flandre 30 min en transports en communs et 20 min en vélo 6 km |
| Etat des locaux | Etat d'usage |
| Enseignes à proximité | CC Auchan V2, restaurations rapides, commerces de proximité |
| Environnement de proximité | Parc du Héron |
| Charpente | Béton |
| Couverture | Bac acier isolé |
| Murs | Béton |
| Sols du bâtiment | Béton |
| Hauteur sous poutre | 7,50 mètre(s) |
| Porte(s) d'accès à quai | 3 |
| Eclairage intérieur | LED |
| Locaux sociaux | Sanitaires |
Surfaces divisibles : 4
| Surface | LoyerHT/HC/m²/an | Étage / Batiment | Infos complémentaires |
| 469 m² | N.C | RDC | LOT 6 |
| 1347 m² | N.C | RDC | LOT 6 |
| 31 m² | N.C | RDC | LOT 3 |
| 202 m² | N.C | RDC | LOT 3 |







