Nous sommes Immprove, une grande équipe de plus de 200 experts en immobilier d’entreprise, implantés localement avec plus de 20 agences sur tout le territoire.Depuis 2009, notre proximité, notre ét ...
En savoir plus



270 m²
HT HC
Location activité/entrepôt - 270 m²
Scherwiller (67750)
Dernière mise à jour : Il y a 6 jours
DERNIER LOT !
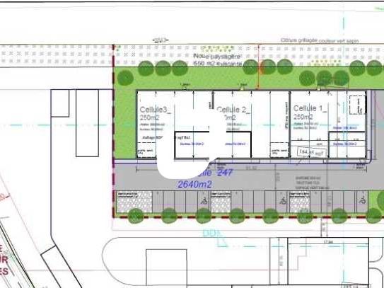
IMMPROVE vous propose à la vente ou à la location, dans le Parc d'Activité du Giessen de Scherwiller (Près de Sélestat), des locaux d'activités de 225 m² en rez-de-chaussée en cours de construire. Ces locaux seront livrés brut de béton, avec fluides en attente, offrant ainsi la possibilité de les aménager selon vos besoins et vos préférences. Ce dernier lot est à l'avant du bâtiment et dispose d'une mezzanine de 45 m². 5 places de parking sont affectées à ce lot.
À l'entrée sud du Bas-Rhin, le Parc d'activité intercommunal du Giessen à Scherwiller se distingue par son cadre agréable et verdoyant, situé à proximité immédiate de Sélestat. Ce parc accueille exclusivement des entreprises industrielles, artisanales et de services, garantissant ainsi une diversité et une complémentarité des activités. D'une superficie de 23 hectares, il est idéalement situé en bordure de l'autoroute A35, offrant un accès facilité par la route départementale D1059, à proximité immédiate de l'échangeur autoroutier, sortie 17.
La zone bénéficie d'une excellente desserte routière : elle se trouve à seulement 20 minutes de Colmar, à 30 minutes de Strasbourg et à une heure de Mulhouse. Cette accessibilité constitue un atout majeur pour les entreprises installées, facilitant ainsi le transport des marchandises et l'accessibilité pour les employés.
Le Parc d'activité intercommunal du Giessen abrite déjà un éventail d'entreprises renommées, parmi lesquelles Emma France, Mondial Relay, Services Acro Alsace, Vogel TP, Metal Services Forster, Estelec Industrie, Transports Riester, et bien d'autres. Ces entreprises témoignent de la dynamique et de l'attractivité du parc, qui continue de se développer et d'attirer de nouvelles implantations.
En plus de son emplacement stratégique, le parc offre un environnement de travail agréable, entouré de paysages naturels, propices à la concentration et au bien-être des employés. Les infrastructures modernes et les aménagements paysagers contribuent à créer un cadre harmonieux, favorisant le développement des activités économiques dans des conditions optimales.
Ainsi, le Parc d'activité intercommunal du Giessen à Scherwiller se présente comme un lieu d'implantation idéal pour les entreprises à la recherche d'un cadre à la fois stratégique et agréable, alliant accessibilité, qualité de vie et dynamisme économique.
Régime Fiscal : T.V.A. (20%)
Dépôt de garantie : 3 mois de loyer HT HC
Honoraires : 15% HT du loyer annuel HT HC à la charge du preneur
Prestations :
Accessibilité:
SNCF Gare de Scherwiller
Autoroute A35 Sortie Saint-Dié - D424
Les informations sur les risques auxquels ce bien est exposé sont disponibles sur le site Géorisques : www.georisques.gouv.fr
IMMPROVE vous propose à la vente ou à la location, dans le Parc d'Activité du Giessen de Scherwiller (Près de Sélestat), des locaux d'activités de 225 m² en rez-de-chaussée en cours de construire. Ces locaux seront livrés brut de béton, avec fluides en attente, offrant ainsi la possibilité de les aménager selon vos besoins et vos préférences. Ce dernier lot est à l'avant du bâtiment et dispose d'une mezzanine de 45 m². 5 places de parking sont affectées à ce lot.
À l'entrée sud du Bas-Rhin, le Parc d'activité intercommunal du Giessen à Scherwiller se distingue par son cadre agréable et verdoyant, situé à proximité immédiate de Sélestat. Ce parc accueille exclusivement des entreprises industrielles, artisanales et de services, garantissant ainsi une diversité et une complémentarité des activités. D'une superficie de 23 hectares, il est idéalement situé en bordure de l'autoroute A35, offrant un accès facilité par la route départementale D1059, à proximité immédiate de l'échangeur autoroutier, sortie 17.
La zone bénéficie d'une excellente desserte routière : elle se trouve à seulement 20 minutes de Colmar, à 30 minutes de Strasbourg et à une heure de Mulhouse. Cette accessibilité constitue un atout majeur pour les entreprises installées, facilitant ainsi le transport des marchandises et l'accessibilité pour les employés.
Le Parc d'activité intercommunal du Giessen abrite déjà un éventail d'entreprises renommées, parmi lesquelles Emma France, Mondial Relay, Services Acro Alsace, Vogel TP, Metal Services Forster, Estelec Industrie, Transports Riester, et bien d'autres. Ces entreprises témoignent de la dynamique et de l'attractivité du parc, qui continue de se développer et d'attirer de nouvelles implantations.
En plus de son emplacement stratégique, le parc offre un environnement de travail agréable, entouré de paysages naturels, propices à la concentration et au bien-être des employés. Les infrastructures modernes et les aménagements paysagers contribuent à créer un cadre harmonieux, favorisant le développement des activités économiques dans des conditions optimales.
Ainsi, le Parc d'activité intercommunal du Giessen à Scherwiller se présente comme un lieu d'implantation idéal pour les entreprises à la recherche d'un cadre à la fois stratégique et agréable, alliant accessibilité, qualité de vie et dynamisme économique.
| Étage | Type | Surfaces | Dispo | Loyer | Charges | Type de bailRév. annuelle |
|---|---|---|---|---|---|---|
| R+1 | Mezzanine | 45 | selon l'indice des loyers des activités tertiaires (ILAT) | |||
| RDC | Activités | 225 | selon l'indice des loyers des activités tertiaires (ILAT) | |||
| Total Cellule LOT 01 | Activités | 270 | Immédiate | 70,83 m²/an HT HC | Bail Commercial 3-6-9 ansselon l'indice des loyers des activités tertiaires (ILAT) |
Régime Fiscal : T.V.A. (20%)
Dépôt de garantie : 3 mois de loyer HT HC
Honoraires : 15% HT du loyer annuel HT HC à la charge du preneur
Prestations :
- ERP : Catégorie non définie
- Toiture bac acier isolé
- Bardage double peau
- Sol béton
- Ossature métallique
- 1 porte sectionnelle de plain-pied/lot
- Hauteur 6,5 m
- Locaux livrés bruts
- Fluides en attente
- Surface RDC : 225 m²
- Surface terrain : 0
Accessibilité:
SNCF Gare de Scherwiller
Autoroute A35 Sortie Saint-Dié - D424
Les informations sur les risques auxquels ce bien est exposé sont disponibles sur le site Géorisques : www.georisques.gouv.fr
Voir plus
Afficher les consommations énergétiques
Localisation et transport aux alentours
Favoris
Exporter
Appeler
Contacter
Signaler cette annonce





