Evolis, votre partenaire en immobilier d’entreprise! Que vous soyez une entreprise, utilisateur de locaux professionnels, investisseur, ou propriétaire, Evolis met à votre service son expertise ...
En savoir plus

600 m²
HT HC
Location activité/entrepôt - 600 m²
Saint-Rémy-de-Provence (13210)
Dernière mise à jour : Il y a 2 jours
600 d'Activités à Louer
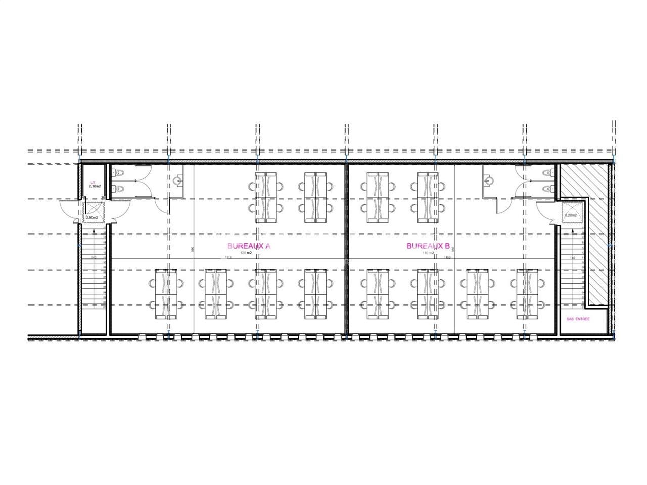
EVOLIS vous propose une opportunité de location de locaux d'activité à Saint Rémy de Provence, offrant 600 m² divisibles à partir de 300 m². Idéalement situés, ces espaces offrent une grande flexibilité d'aménagement pour répondre aux besoins spécifiques de votre entreprise.
Impôt Foncier : 3,27 €/m²/an
Régime Fiscal : T.V.A.
Dépôt de garantie : 3 mois de loyer HT HC
Honoraires : A la charge du preneur
Information sur le Bail :
Honoraires Preneur 15 % HT du loyer annuel HT
Prestations :
Accessibilité:
Autoroute A54 25 kms
Autoroute A7 Cavaillon 7 kms
TGV Avignon TGV 15 kms
Les informations sur les risques auxquels ce bien est exposé sont disponibles sur le site Géorisques : www.georisques.gouv.fr
EVOLIS vous propose une opportunité de location de locaux d'activité à Saint Rémy de Provence, offrant 600 m² divisibles à partir de 300 m². Idéalement situés, ces espaces offrent une grande flexibilité d'aménagement pour répondre aux besoins spécifiques de votre entreprise.
| Étage | Type | Surfaces | Dispo | Loyer | Charges | Type de bailRév. annuelle |
|---|---|---|---|---|---|---|
| RDC | Activités | 300 | Après accord | 125 m²/an/ HT/HC | 2,02 m²/an HT | Bail commercial 3-6-9 ansILAT Indice des Loyers des Activités Tertiaires |
| 1 | Bureaux | 300 | Après accord | 125 m²/an/ HT/HC | 2,02 m²/an HT | Bail commercial 3-6-9 ansILAT Indice des Loyers des Activités Tertiaires |
Impôt Foncier : 3,27 €/m²/an
Régime Fiscal : T.V.A.
Dépôt de garantie : 3 mois de loyer HT HC
Honoraires : A la charge du preneur
Information sur le Bail :
Honoraires Preneur 15 % HT du loyer annuel HT
Prestations :
- La zone d'activités de la Massane se déploie sur près de 80 Ha. 64 entreprises et 440 personnes sont présentes sur cette
- zone à dominante Commerce de Gros.
- Le local neuf de 600 m² disposera d'un plateau tertiaire de 300 m².
- Surface RDC : 300 m²
- Haut. libre min. ss poutre : 3,9 m
- Résistance sol : 1,5 T/m²
- Accès bâtiment : Moyens et gros porteurs
- Nbr de portes plain pied : 1
- Ossature : Métallique
Accessibilité:
Autoroute A54 25 kms
Autoroute A7 Cavaillon 7 kms
TGV Avignon TGV 15 kms
Les informations sur les risques auxquels ce bien est exposé sont disponibles sur le site Géorisques : www.georisques.gouv.fr
Voir plus
Afficher les consommations énergétiques
Localisation et transport aux alentours
Favoris
Exporter
Appeler
Contacter
Signaler cette annonce





