L’agence CBRE Lille conseille et accompagne les chefs d’entreprise dans leurs projets immobiliers quels que soient leur taille et leur secteur d’activité. Spécialistes de la transaction de bureaux, ...
En savoir plus

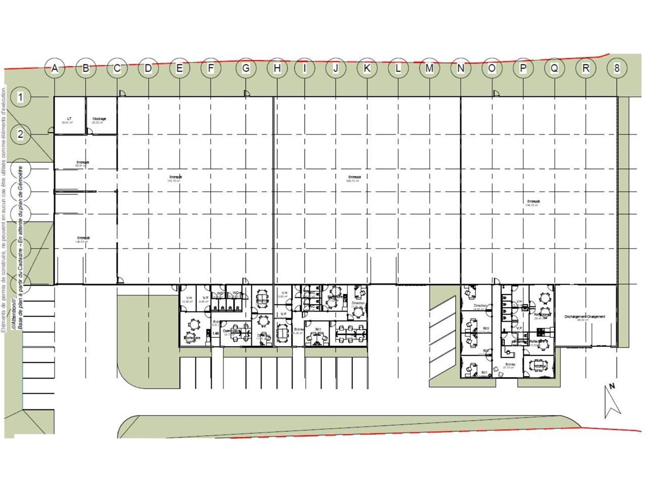
2 192 m² divisible dès 1 016 m²
HT HC
Location activité/entrepôt - 2192 m²
Saint-Nicolas (62223)
Dernière mise à jour : Il y a 9 mois
CBRE Lille spécialiste de l'immobilier d'entreprise, vous propose un local d'activité de 2 192 m² divisible à partir de 1 016 m² la location au sein de la zone d'activité "Les Alouettes" à Saint Nicolas Les Arras. Le bâtiment dispose de deux accès quais, trois accès plain pied et de vingt places de parking. Le site bénéficie d'une excellente desserte routière grâce à la proximité de l'autoroute A1 et de l'autoroute A26.
Impôt Foncier : 7,5 €/m²/an
Régime Fiscal : T.V.A.
Dépôt de garantie : 3 mois de loyer HT/HC
Honoraires : 15% à la charge du preneur
Prestations :
Accessibilité:
Aeroport A1/A22
Les informations sur les risques auxquels ce bien est exposé sont disponibles sur le site Géorisques : www.georisques.gouv.fr
| Étage | Type | Surfaces | Dispo | Loyer | Charges | Type de bailRév. annuelle |
|---|---|---|---|---|---|---|
| Activités | 1036 | Immédiate | 60 m²/an HT HC | 3-6-9 ansIndice ILAT | ||
| Activités | 894 | Immédiate | 60 m²/an HT HC | 3-6-9 ansIndice ILAT | ||
| Bureaux | 140 | Immédiate | 130 m²/an HT HC | 3-6-9 ansIndice ILAT | ||
| Bureaux | 122 | Immédiate | 130 m²/an HT HC | 3-6-9 ansIndice ILAT |
Impôt Foncier : 7,5 €/m²/an
Régime Fiscal : T.V.A.
Dépôt de garantie : 3 mois de loyer HT/HC
Honoraires : 15% à la charge du preneur
Prestations :
- Surface RDC : 0 m²
- Haut. libre max. ss poutre : 4 m
- Accès bâtiment : moyens porteurs
gros porteurs - Nbr de portes à quai : 2
- Nbr de portes plain pied : 2
- Equipements entrepôts : . Sol béton, carrelage
. Eclairage néon
. Chauffage
. Climatisation
. Accueil - Ossature : Métallique
- Murs périmétriques : Bardage double peau
- Couverture : Bac acier isolé étanchéité multicouche
Accessibilité:
Aeroport A1/A22
Les informations sur les risques auxquels ce bien est exposé sont disponibles sur le site Géorisques : www.georisques.gouv.fr
Voir plus
Afficher les consommations énergétiques
Favoris
Exporter
Appeler
Contacter
Signaler cette annonce
