Elyade regroupe tous les services liés à l’administration de biens pour accompagner ses clients et assurer, avec sérieux et implication, le meilleur service, quelle que soit l’activité : gestion lo ...
En savoir plus

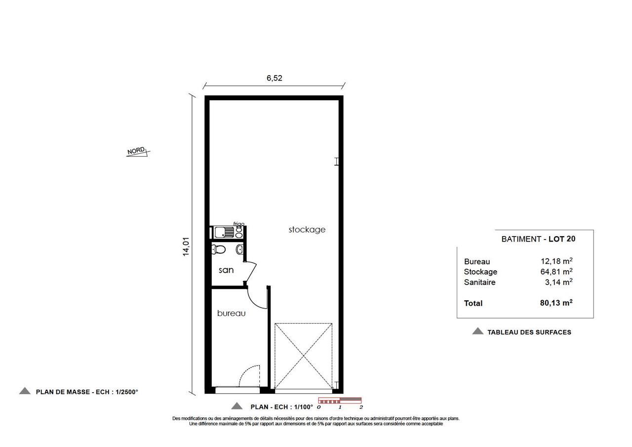
Location activité/entrepôt - 80 m²
MONTAUBAN SUD ZONE D'ACTIVITES ALBASUD
À la recherche d'un espace idéal pour développer votre activité ? Ne cherchez plus !
Nous sommes ravi de vous proposer à la location un local d'activité idéalement situé au coeur de la zone commerciale et d'activités Albasud - proche de l'autoroute A20.
Le local d'une superficie de 80 m² dispose d'un bureau climatisé avec vitrine de 12.18m² équipé de prise RG45 , d'un espace de stockage de 64.81m²avec porte sectionnelle motorisé et d'un espace sanitaire.Les + :
- Place de parking privée
- Attractivité et dynamisme de la zone Albasud
- Possibilité d'enseigne sur façade
- Espaces modulables
Vous aurez ainsi la possibilité de faire de ce local un atelier, un lieu d'archivage ou de stockage, etc. Vous pourrez de même installer une vitrine à la place de la porte sectionnelle.
Dépôt de Garantie : 2 mois de loyer HC/HT.
Photos non contractuelles.
06.10.19.51.22 (*Appel non surtaxé) ou par mail : [email protected]
Les informations sur les risques auxquels ce bien est exposé sont disponibles sur le site Géorisques : www.georisques.gouv.fr
