L’agence CBRE Nantes conseille et accompagne les chefs d’entreprise dans leurs projets immobiliers quels que soient leur taille et leur secteur d’activité. Spécialistes de la transaction de bureaux ...
En savoir plus

808 m²
HT HC
Location activité/entrepôt - 808 m²
Carquefou (44470)
Dernière mise à jour : Il y a 2 jours
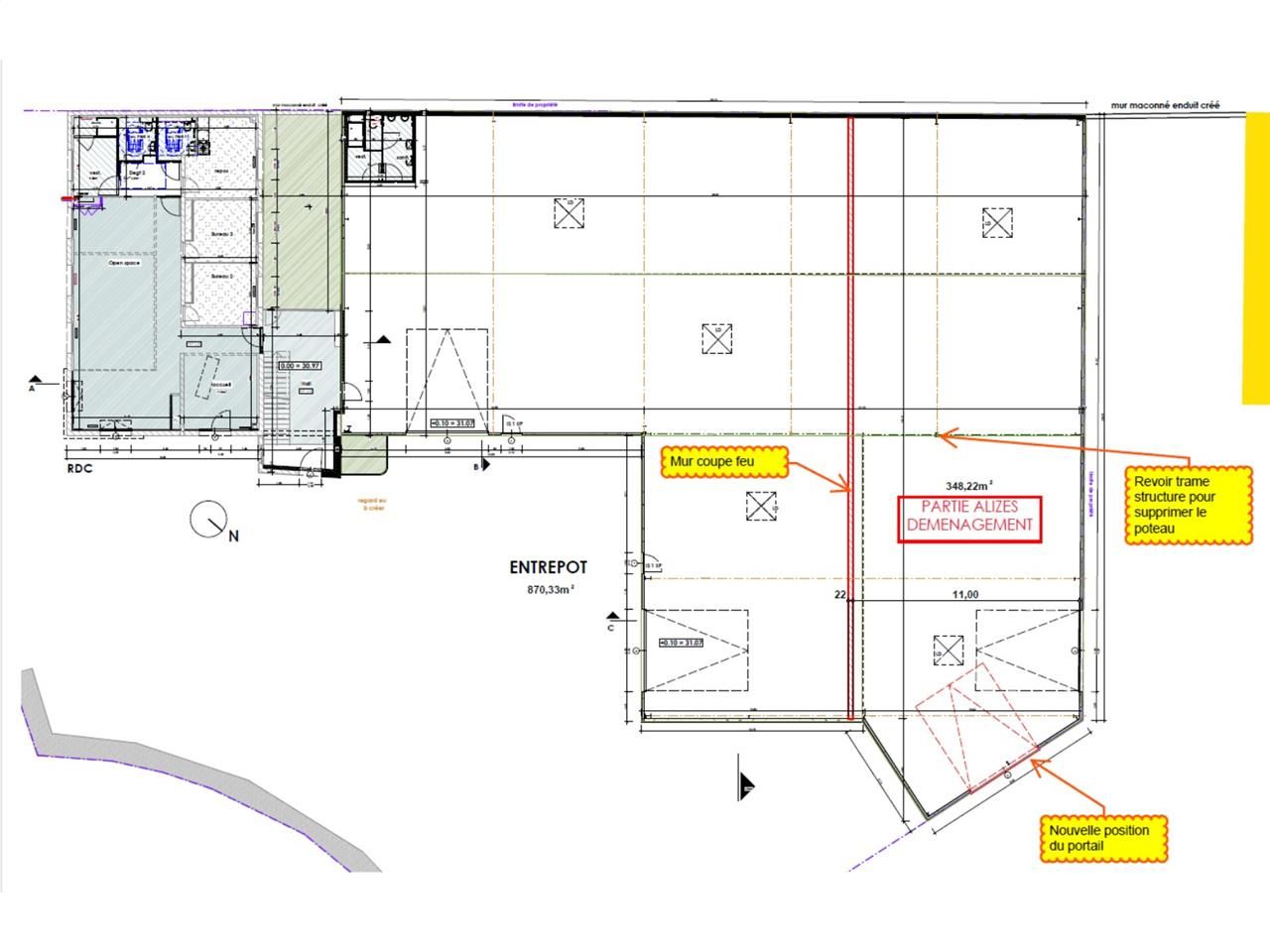
Dans la zone industrielle de Carquefou, à proximité des axes routiers majeurs et du périphérique, CBRE vous propose un bâtiment d'activités à la location de 808m². Le site comprend, une surface de bureaux refaite à neuf de 286m²sur 2 niveaux comprenant une partie bureaux en RDC de 155m² et un surface en R+1 de bureaux individuels. Les locaux comprennent également une surface neuve de stockage de 522m², avec grande hauteur libre et vestiaire.
CBRE vous propose à la location un bâtiment d'activité d'environ 800 m², comprenant 286 m² de bureaux, attenant , un local de stockage de 522 m² environ.
Régime Fiscal : T.V.A.
Dépôt de garantie : 3 mois de loyer HT/HC
Honoraires : 30 % HT du loyer annuel HT/HC
Prestations :
Accessibilité:
Bus Lefeuvre (77)
Les informations sur les risques auxquels ce bien est exposé sont disponibles sur le site Géorisques : www.georisques.gouv.fr
CBRE vous propose à la location un bâtiment d'activité d'environ 800 m², comprenant 286 m² de bureaux, attenant , un local de stockage de 522 m² environ.
| Étage | Type | Surfaces | Dispo | Loyer | Charges | Type de bailRév. annuelle |
|---|---|---|---|---|---|---|
| R1 | Activités | 808 | Immédiate | 3-6-9 ansIndice ILAT |
Régime Fiscal : T.V.A.
Dépôt de garantie : 3 mois de loyer HT/HC
Honoraires : 30 % HT du loyer annuel HT/HC
Prestations :
- Bureaux neufs en RDC et R+1
- Chauffage électrique
- Sanitaires PMR : 2
- Bureaux en open space et bureaux individuels
- Entrepôt avec grande hauteur libre
- 2 Portes sectionnelles électriques : 4 x 4,5m
- Charpente métallique
- Bardage double peau
- Patio paysager
- Locaux lumineux
- 13 places de parkings
- Site clos par un portail éléctrique
- 2 vestiaires avec douches
- Eclairage LED sur la totalité du site
- Immeuble indépendant
- Surface terrain : 0
Accessibilité:
Bus Lefeuvre (77)
Les informations sur les risques auxquels ce bien est exposé sont disponibles sur le site Géorisques : www.georisques.gouv.fr
Voir plus
Afficher les consommations énergétiques
Favoris
Exporter
Appeler
Contacter
Signaler cette annonce










