MCarré Conseil est une agence spécialiste de l'immobilier d’entreprise du sud de l’Île-de-France (en Essonne et dans le sud de la Seine-et-Marne et du Val-De-Marne). Elle vous accompagne à chaque é ...
En savoir plus

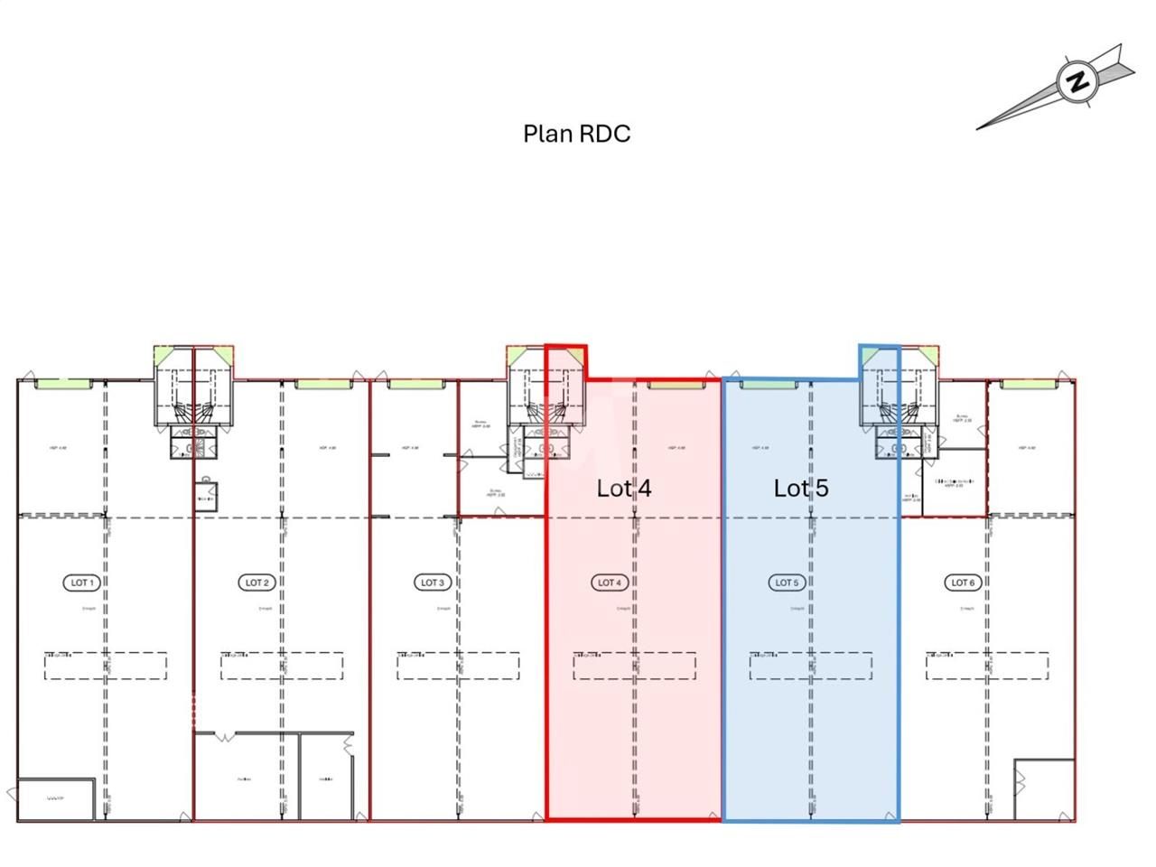
1 168 m² divisible dès 584 m²
HT HC
Location activité/entrepôt - 1168 m²
Buc (78530)
Dernière mise à jour : Il y a 1 mois
Au sein du Parc de Buc, nous vous proposons des lots à usage d'activité et bureaux d'accompagnement à la location
Impôt Foncier : 8,48 €/HT/m²/an
Régime Fiscal : TVA
Dépôt de garantie : 3 mois de loyer HT/HC
Honoraires : 15% HT du loyer annuel HT HC
Taxe Bureau : 11,37 €/m²/an
Prestations :
Accessibilité:
Autoroute Autoroute A86
Route Nationale 12
Route Nationale 118
Bus Fourny (BUS-10, BUS-262, BUS-261), Morane Saulnier (BUS-264)
Les informations sur les risques auxquels ce bien est exposé sont disponibles sur le site Géorisques : www.georisques.gouv.fr
| Étage | Type | Surfaces | Dispo | Loyer | Charges | Type de bailRév. annuelle |
|---|---|---|---|---|---|---|
| 1 | Bureaux | 134 | Indice ILAT | |||
| Rdc | Activités | 450 | Indice ILAT | |||
| Total Cellule LOT 4 | Activités | 584 | Immédiate | 110 m²/an HT HC | 7,95 HT/m²/an | 3/6/9 ansIndice ILAT |
| 1 | Bureaux | 134 | Indice ILAT | |||
| Rdc | Activités | 450 | Indice ILAT | |||
| Total Cellule LOT 5 | Activités | 584 | 1er février 2025 | 110 m²/an HT HC | 7,95 HT/m²/an | 3/6/9 ansIndice ILAT |
Impôt Foncier : 8,48 €/HT/m²/an
Régime Fiscal : TVA
Dépôt de garantie : 3 mois de loyer HT/HC
Honoraires : 15% HT du loyer annuel HT HC
Taxe Bureau : 11,37 €/m²/an
Prestations :
- Surface RDC : 900 m²
- Surface terrain : 0
- Haut. libre min. ss poutre : 5,4 m
- Haut. libre max. ss poutre : 6 m
- Accès bâtiment : Gros Porteurs
- Nbr de portes plain pied : 1
- Equipements entrepôts : Aire de manoeuvre
- Ossature : Métallique
- Murs périmétriques : Double bardage
Accessibilité:
Autoroute Autoroute A86
Route Nationale 12
Route Nationale 118
Bus Fourny (BUS-10, BUS-262, BUS-261), Morane Saulnier (BUS-264)
Les informations sur les risques auxquels ce bien est exposé sont disponibles sur le site Géorisques : www.georisques.gouv.fr
Voir plus
Afficher les consommations énergétiques
Localisation et transport aux alentours
Favoris
Exporter
Appeler
Contacter
Signaler cette annonce
