BNP Paribas Real Estate, N°1 de la transaction en immobilier d'entreprise en France, vous propose un accompagnement de qualité pour l'acquisition, la vente ou la location d'un bien immobilier.Vous ...
En savoir plus

260 m²
Local commercial à vendre - 260 m²
Suresnes (92150)
Dernière mise à jour : Il y a 2 jours
Nous consulter : Raphaël PIC - 07.88.68.22.18
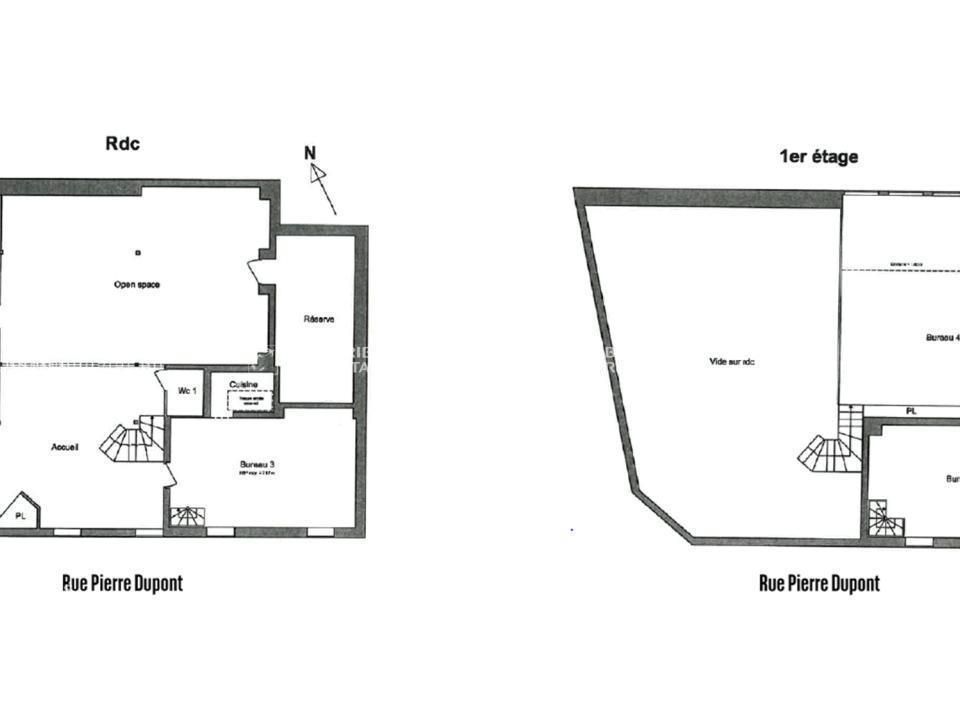
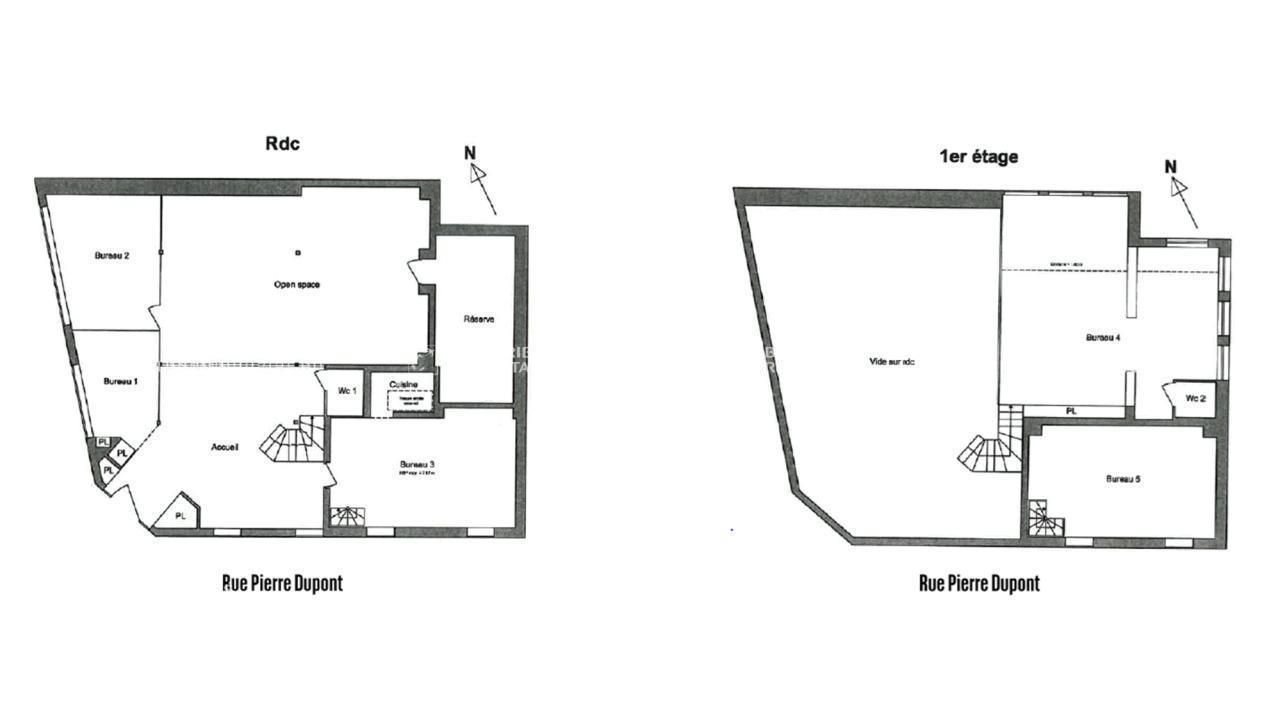
Il s'agit d'un btiment indépendant d'environ 260 m², disposé sur deux niveaux (RDC et R+1), entièrement reconcu par un architecte, avec un niveau de standing haut de gamme et des matériaux premium. Le bien présente les caractéristiques suivantes :
- Locaux rénovés, climatisés et chauffés au sol
- Espace d'accueil, cuisine, salles de réunion, bureaux cloisonnés et espaces ouverts
- Hauteur sous plafond de 5,50 m, double exposition
- Aire de livraison avec accès palette
- Système d'alarme et vidéosurveillance
- Le btiment est en parfait état et bénéficie d'un accès sécurisé ainsi qu'une bonne visibilité
- Actif loué à un locataire de qualité : Urban COD, spécialiste de location de Tesla auprès des chauffeurs VTC Francais
- Locataire qui double son chiffre d'affaires chaque année
- Loyer annuel de 93 385€
- Bail neuf signé en 2024
- Permis de construire obtenu pour la création d'un immeuble en R+5V
Honoraires: 5% HT du prix HT/HD. à la signature de l'acte
Afficher les consommations énergétiques
Localisation et transport aux alentours
Favoris
Exporter
Appeler
Contacter
Signaler cette annonce
