Leader mondial des services dédiés à l'immobilier d'entreprise, Cushman & Wakefield accompagne ses clients dans la transformation de leurs modes de travail, de consommation et de vie. Nos 43 000 co ...
En savoir plus



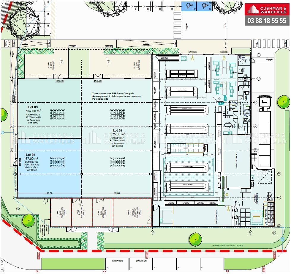
334 m² divisible dès 167 m²
Local commercial à vendre - 334 m²
Ittenheim (67117)
Dernière mise à jour : Il y a 7 mois
Deux cellules commerciales, disponibles à l'acquisition, au sein d'un btiment neuf. Architecture moderne et prestations de qualité adaptées à votre activité. Conformité thermique RT 2012. Idéalement situé sur le tracet du GCO, ce site bénéficie d''un accès par l'A355, l'A35, la RN4 et la ligne de bus 230. Vous trouverez dans ce parc, un cadre de travail idéal avec toutes les commodités, une accessibilité facile au centre-ville et des paysages arborés. Ces locaux d'activité, à vendre, sont localisés au sein du nouveau parc d'activités "Le Bonaparc", dans la ville d''Ittenheim, à 15 minutes de Strasbourg. Cushman & Wakefield Strasbourg vous propose des locaux commerciaux, disponibles à l'acquisition, au sein d'un btiment neuf. Architecture moderne et prestations de qualité adaptées à votre activité. Nous nous tenons à votre disposition pour tout renseignement complémentaire, n'hésitez pas à nous contacter. Locaux livrés bruts clos couvert, fluides en attente Aménagement sur mesure, selon vos besoins, en sus . Bardage métallique double peau isolé . Grande surface vitrée et menuiserie aluminium Parkings extérieurs sur site . Surcharge d'exploitation 1T/m² pour le commerce et 2T/m² pour la partie stockage . 1 Porte vitrée Accès routier : GCO, A355, A35 et RN4 direction Saverne, à 15' de Strasbourg Bus : Réseau Fluo Ligne 230
Voir plus
Afficher les consommations énergétiques
Surfaces divisibles : 2
| Surface | PrixHD/HH/m² | Étage / Batiment |
| 167 m² | 347125 € | 0 |
| 167 m² | 376125 € | 0 |
Localisation et transport aux alentours
Favoris
Exporter
Appeler
Contacter
Signaler cette annonce
