Nous sommes Immprove, une grande équipe de plus de 200 experts en immobilier d’entreprise, implantés localement avec plus de 20 agences sur tout le territoire.Depuis 2009, notre proximité, notre ét ...
En savoir plus

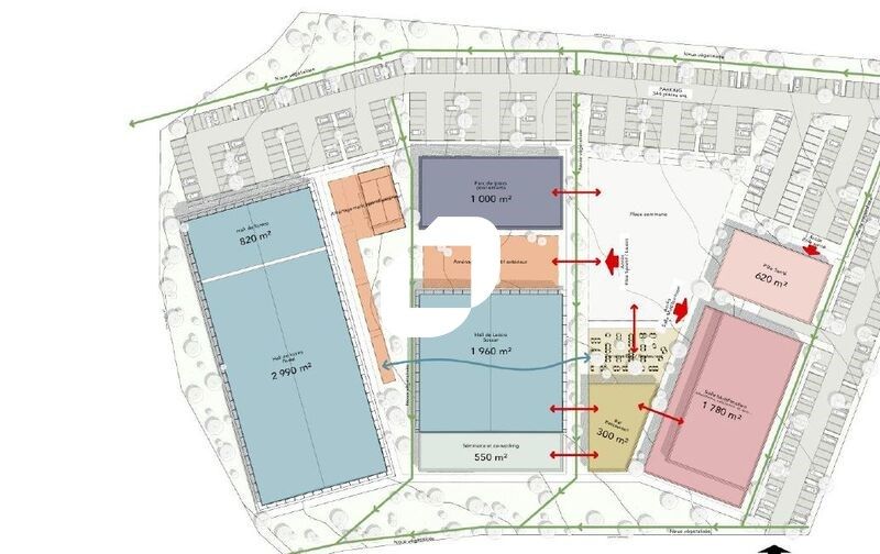
8 860 m² divisible dès 300 m²
Local commercial à vendre - 8860 m²
Grandchamp-des-Fontaines (44119)
Dernière mise à jour : Il y a 12 jours
IMMPROVE propose à la vente ou à la location des locaux commerciaux d'exception à Grandchamp-des-Fontaines, totalisant 8 860 m², divisibles à partir de 300 m². Ces espaces neufs, en brut de béton, bénéficient d'une hauteur libre de 7 m, d'un accès PMR, d'une fibre optique, et d'un jardin paysager, offrant un cadre idéal pour votre entreprise.
Régime Fiscal : Droits d'enregistrement
Honoraires : 5% du prix de vente HD HH à la charge de l'acquéreur
Prestations :
Les informations sur les risques auxquels ce bien est exposé sont disponibles sur le site Géorisques : www.georisques.gouv.fr
| Étage | Type | Surfaces | Dispo | Prix(m²) | Charges | Honoraires | Fiscal |
|---|---|---|---|---|---|---|---|
| Locaux Commerciaux | 1240 | 2700 m² HD | n.c. | 5% du prix de vente HD HH à la charge de l'acquéreur | Droits d'enregistrement | ||
| Locaux Commerciaux | 820 | 1350 m² HD | n.c. | 5% du prix de vente HD HH à la charge de l'acquéreur | Droits d'enregistrement | ||
| RDC | Locaux Commerciaux | 2990 | 1350 m² HD | n.c. | 5% du prix de vente HD HH à la charge de l'acquéreur | Droits d'enregistrement | |
| RDC | Locaux Commerciaux | 1960 | 1350 m² HD | n.c. | 5% du prix de vente HD HH à la charge de l'acquéreur | Droits d'enregistrement | |
| RDC | Locaux Commerciaux | 1000 | 1350 m² HD | n.c. | 5% du prix de vente HD HH à la charge de l'acquéreur | Droits d'enregistrement | |
| RDC | Locaux Commerciaux | 550 | 2000 m² HD | n.c. | 5% du prix de vente HD HH à la charge de l'acquéreur | Droits d'enregistrement | |
| RDC | Locaux Commerciaux | 300 | 2400 m² HD | n.c. | 5% du prix de vente HD HH à la charge de l'acquéreur | Droits d'enregistrement |
Régime Fiscal : Droits d'enregistrement
Honoraires : 5% du prix de vente HD HH à la charge de l'acquéreur
Prestations :
- Accès PMR
- Ascenseur
- Fibre optique
- Jardin paysager
- Neuf/Restructuré
- Brut de béton
- Locaux E.R.P.
- Hauteur libre : 7 m
- Surface RDC : 6800 m²
Les informations sur les risques auxquels ce bien est exposé sont disponibles sur le site Géorisques : www.georisques.gouv.fr
Voir plus
Afficher les consommations énergétiques
Favoris
Exporter
Appeler
Contacter
Signaler cette annonce
