MCarré Conseil est une agence spécialiste de l'immobilier d’entreprise du sud de l’Île-de-France (en Essonne et dans le sud de la Seine-et-Marne et du Val-De-Marne). Elle vous accompagne à chaque é ...
En savoir plus

127 m²
HT HC
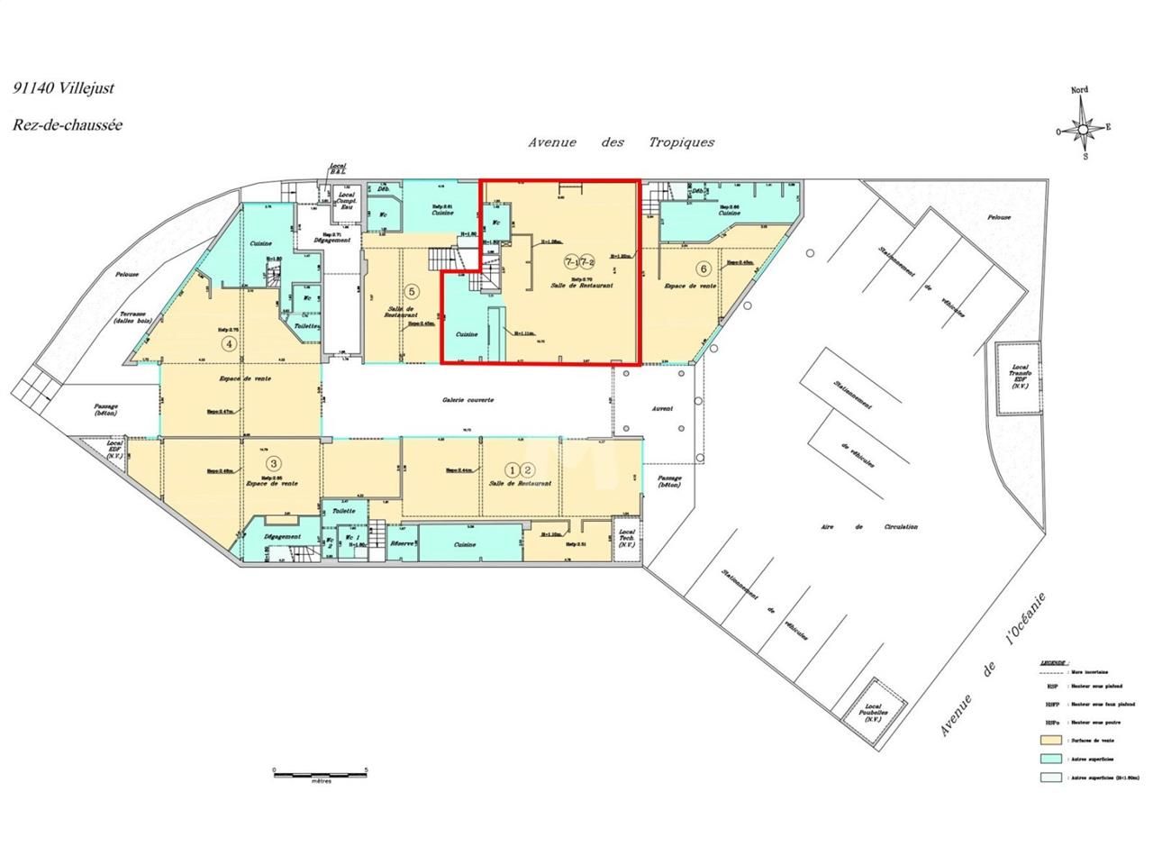
RESTO'S CENTER - Location local commercial - 127 m²
Villejust (91140)
Dernière mise à jour : Hier
Immeuble RESTO'S CENTER
Rare sur le secteur
Au coeur de la zone de Courtaboeuf, nous vous proposons la location d'un local commercial de 127 m² dont une mezzanine de 20 m² et bénéficiant d'une excellente visibilité.
Nombreux emplacements de stationnement à proximité.
Impôt Foncier : 2500 €/HT/an
Régime Fiscal : TVA
Dépôt de garantie : 3 mois de loyer HT/HC
Honoraires : 15% HT du loyer annuel HT/HC
Information sur le Bail :
Loyer annuel : 37 000 euros HT/HC
Prestations :
Accessibilité:
Autoroute Autoroute A10
Route Nationale 118
Bus Mairie (Ligne DM11A)
Les informations sur les risques auxquels ce bien est exposé sont disponibles sur le site Géorisques : www.georisques.gouv.fr
Rare sur le secteur
Au coeur de la zone de Courtaboeuf, nous vous proposons la location d'un local commercial de 127 m² dont une mezzanine de 20 m² et bénéficiant d'une excellente visibilité.
Nombreux emplacements de stationnement à proximité.
| Étage | Type | Surfaces | Dispo | Loyer | Charges | Type de bailRév. annuelle |
|---|---|---|---|---|---|---|
| Rdc | Locaux Commerciaux | 127 | Immédiate | 291,34 m²/an HT HC | 40 HT/m²/an | 3/6/9 ansIndice ILAT |
Impôt Foncier : 2500 €/HT/an
Régime Fiscal : TVA
Dépôt de garantie : 3 mois de loyer HT/HC
Honoraires : 15% HT du loyer annuel HT/HC
Information sur le Bail :
Loyer annuel : 37 000 euros HT/HC
Prestations :
- Local de 127 m² dont 20 m² de mezzanine
- Climatisation réversible
- Hauteur sous plafond maximum : 3 m
- Fluides en attente
- Parkings extérieurs
- Activités autorisées : Tous commerces
- Immeuble indépendant
- Surface RDC : 127 m²
- Sanitaires : oui
Accessibilité:
Autoroute Autoroute A10
Route Nationale 118
Bus Mairie (Ligne DM11A)
Les informations sur les risques auxquels ce bien est exposé sont disponibles sur le site Géorisques : www.georisques.gouv.fr
Voir plus
Afficher les consommations énergétiques
Localisation et transport aux alentours
Favoris
Exporter
Appeler
Contacter
Signaler cette annonce

