Conseil en immobilier d'entreprise à Toulouse, le cabinet ADE Immo Pro propose des locaux professionnels (bureaux, locaux commerciaux, fonds de commerces, terrains, commerces, biens à l'investissem ...
En savoir plus

1 936 m²
HT HC
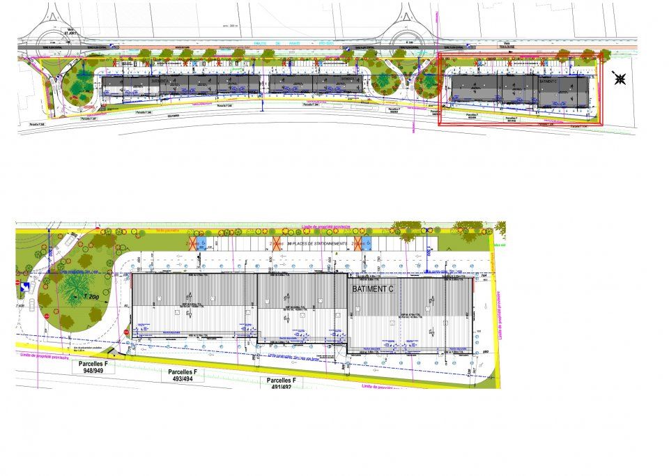
Location local commercial - 1936 m²
Saint-Jory (31790)
Dernière mise à jour : Il y a 5 mois
Local commercial
NORD EST TOULOUSE - ST JORY - LOCATION LOCAL COMMERCIAL 1936M² Divisible à partir de 704M², Visible sur un axe passant et très accessible, 20 000 véhicules/jour. Ce local d'activité est situé dans un ensemble de locaux d'activités. Vitrine sur l'avant. Parking. Nous consulter pour les loyer des autres surfaces disponibles. Nos annonces similaires sur le site : immobilier-entreprise-31
NORD EST TOULOUSE - ST JORY - LOCATION LOCAL COMMERCIAL 1936M² Divisible à partir de 704M², Visible sur un axe passant et très accessible, 20 000 véhicules/jour. Ce local d'activité est situé dans un ensemble de locaux d'activités. Vitrine sur l'avant. Parking. Nous consulter pour les loyer des autres surfaces disponibles. Nos annonces similaires sur le site : immobilier-entreprise-31
Voir plus
Afficher les consommations énergétiques
Favoris
Exporter
Appeler
Contacter
Signaler cette annonce
