MALSH Realty accompagne les entreprises dans leurs projets immobiliers, qu’il s’agisse de locaux d’activités, de bureaux, de commerces, d’entrepôts ou de terrains. L’agence intervient aussi bien au ...
En savoir plus

555 m² divisible dès 135 m²
HT HC
Location local commercial - 555 m²
La Côte-Saint-André (38260)
Dernière mise à jour : Il y a 9 mois
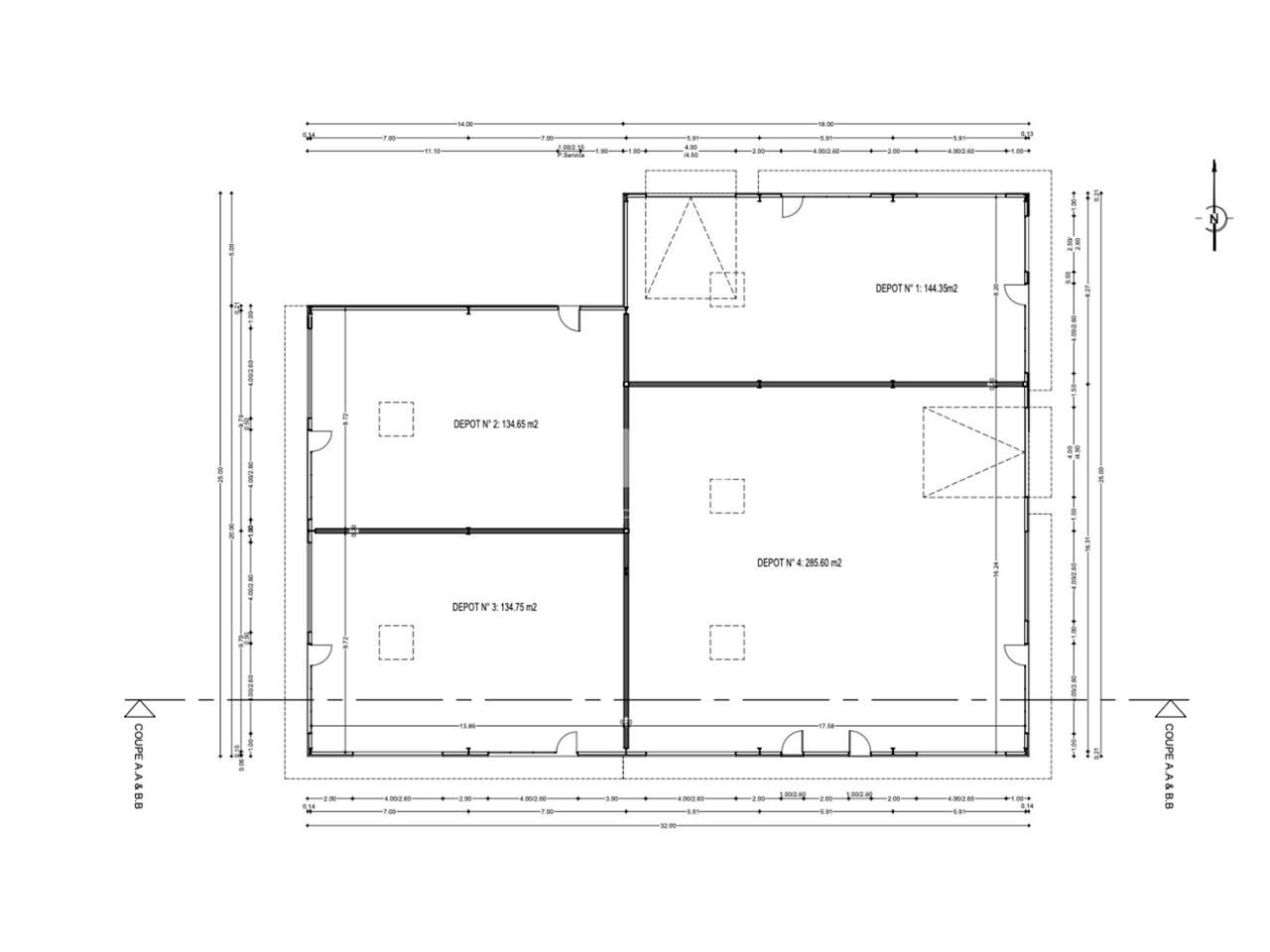
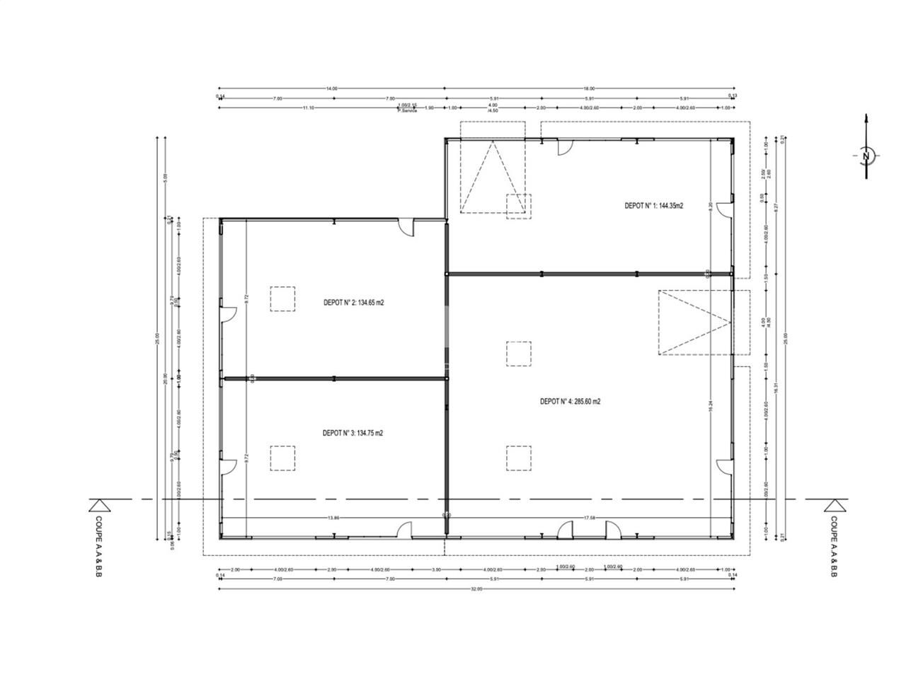
Locaux commerciaux à LA CÔTE SAINT ANDRÉ - A LOUER - 555 m² divisibles à partir de 135 m²
Au sein d'un nouveau bâtiment, nous vous proposons à la location, des locaux commerciaux d'une surface totale d'environ 555 m² divisibles en 3 lots à partir de 135 m².
Ces locaux neufs sont livrés brut de béton et fluides en attente.
Location Locaux commerciaux - La Côte Saint André (38260) - 555 m² divisibles à partir de 135 m²
Régime Fiscal : T.V.A. (20%)
Dépôt de garantie : 3 mois de loyer HT/HC
Honoraires : 20 % HT du loyer annuel HT/HC à la charge du preneur, payables à la signature du bail
Prestations :
Accessibilité:
Autoroute Accès par l'A48 et l'A49
Les informations sur les risques auxquels ce bien est exposé sont disponibles sur le site Géorisques : www.georisques.gouv.fr
Au sein d'un nouveau bâtiment, nous vous proposons à la location, des locaux commerciaux d'une surface totale d'environ 555 m² divisibles en 3 lots à partir de 135 m².
Ces locaux neufs sont livrés brut de béton et fluides en attente.
Location Locaux commerciaux - La Côte Saint André (38260) - 555 m² divisibles à partir de 135 m²
| Étage | Type | Surfaces | Dispo | Loyer | Charges | Type de bailRév. annuelle |
|---|---|---|---|---|---|---|
| RDC | Locaux Commerciaux | 285 | Livraison Novembre 2024 | 168,42 HT/HC/m²/an | commercial 3-6-9 ansILC Indice des Loyers Commerciaux | |
| RDC | Locaux Commerciaux | 135 | Livraison Novembre 2024 | 207,41 HT/HC/m²/an | commercial 3-6-9 ansILC Indice des Loyers Commerciaux | |
| RDC | Locaux Commerciaux | 135 | Livraison Novembre 2024 | 207,41 HT/HC/m²/an | commercial 3-6-9 ansILC Indice des Loyers Commerciaux |
Régime Fiscal : T.V.A. (20%)
Dépôt de garantie : 3 mois de loyer HT/HC
Honoraires : 20 % HT du loyer annuel HT/HC à la charge du preneur, payables à la signature du bail
Prestations :
- Livrés brut de béton et fluides en attente
Accessibilité:
Autoroute Accès par l'A48 et l'A49
Les informations sur les risques auxquels ce bien est exposé sont disponibles sur le site Géorisques : www.georisques.gouv.fr
Voir plus
Afficher les consommations énergétiques
Localisation et transport aux alentours
Favoris
Exporter
Appeler
Contacter
Signaler cette annonce
